Half open BEN woning met 3 slaapkamer en zuid tuin op ruim perceel 320m² (LOT2)
€ 443.000
Een pand van Van Hoye Vastgoed
Overzicht
- 170 m² bewoonbaar
- 320 m² grond
- 3 Slaapkamer(s)
- 1 Badkamer(s)
- 2 Toilet(ten)
- 1 Garage(s)
Beschrijving
Nieuwbouwzondag? Bij ons wordt dat een volledige Nieuwbouwweek! Bel nu vrijblijvend naar 0470/30.20.10 voor meer info of om een afspraak in te plannen.
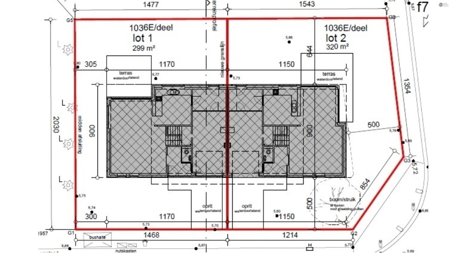
Dit prachtige, kleinschalige nieuwbouwproject gelegen in een rustige wijk, omringd door velden en nabij het centrum van Stekene. Het project bestaat uit 2 halfopen bebouwingen op een terrein van 300 en 320m². Het project bevindt zich op een gunstige locatie, met eenvoudige verbinding tot E34 (Antwerpen-Knokke) en Waaslandhaven en toch op een rustige locatie in een groene omgeving.
LOT 1 wordt volledig afgewerkt verkocht aan 471.000 euro (excl).
LOT 2 wordt verkocht aan 443.000 euro (excl), in winddichte situatie. De afwerking (badkamer, keuken, vloeren, ...) kunnen dus nog naar eigen keuze worden geïnstalleerd.
INDELING:
Gelijkvloers: inkomhal met gastentoilet met handenwasser, doorzon-leefruimte (42m²) met veel lichtinval door de grote raampartijen die tevens uitzicht bieden op de gezellige zuid-gerichte, afgesloten tuin. Aansluitend aan de woonkamer vinden we de moderne, open leefkeuken (spoelbak, oven, kookplaat met ingebouwde afzuiging) met ontbijthoek. Inpandige garage met automatische sectionaalpoort, geïntegreerde wasplaats met ruime bergruimte.
Verdieping: bereikbaar via prachtige bordestrap op tegel, die doorgang biedt tot de lichtrijke nachthal met vide voor extra ruimtelijk gevoel. 3 slaapkamers (9, 13, 14 m²) met laminaat. Badkamer (2de toilet, dubbel wasmeubel, inloopdouche)
EXTRA:
BEN woningen: de woningen beschikken over een geschat e-peil van < 10, dit resulteert niet alleen in een lagere energiefactuur maar ook in een korting op de onroerende voorheffing!
Dit e-peil wordt bereikt door de zonnepanelen (3450kWh/jaar) die op het plat dak liggen en door de warmtepomp (Panasonic high performance lucht/water) met vloerverwarming. Daarnaast beschikken de woningen ook over ventilatiesystemen D met warmteterugwinning om er voor te zorgen dat er geen warmte verloren gaat! Beglazing: dubbel HR/PVC.
LOT 1 (links) wordt volledig afgewerkt verkocht (471.000 euro), dit pand beschikt over keuken en sanitair van hogere kwaliteit. De projectontwikkelaars hebben een royaal budget vrijgehouden voor keuken en sanitair van de woning, om te garanderen dat de potentiële kopers in alle gemak en luxe kunnen genieten van hun nieuwbouwwoning.
LOT 2 (rechts) wordt aangeboden aan 443.000 euro, in deze prijs zijn keuken, badkamer, binnendeuren en vloer niet inbegrepen, deze zaken kunnen dus nog naar eigen keuze worden geïnstalleerd. De projectontwikkelaars hebben gekozen voor deze aanpak om de eigenaar de kans te geven de woning zelf naar eigen smaak en behoeften uit te rusten om hen meer vrijheid te bieden en er voor te zorgen dat ze een waar droomhuis kunnen aanbieden, op maat van de klant.
Voor info, lastenboek, budgetten en plannen maken wij graag een afspraak : 0497/62.96.05 of martine@vanhoyevastgoed.be
Energie
![]() |
- Energieverbruik: 50 kWh/m²/jaar
- E-peil: E0
- Beglazing: Onbekend
Op de kaart

Financieel
| Prijs | |
|---|---|
| Kadastraal inkomen (niet geïndexeerd) | € 0 |
| Kadastraal inkomen (geïndexeerd) | € 0 |
Bijkomende info
Gebouw
| Bouwjaar | 2024 |
|---|---|
| Staat | Nieuw |
| Bouwcertificaat | Nee |
| Bewoonbaar (m²) | 170 |
| Verdieping | 0 |
| Badkamers | 1 |
| Slaapkamers | 3 |
| Verdiepingen | 0 |
| Garages | 1 |
| Parkeerplaatsen | 1 |
| Doucheruimtes | 0 |
| Toiletten | 2 |
Faciliteiten
| Keuken uitrusting | Luxueus uitgerust |
|---|---|
| Elektrisch keuringsattest | Ja |
Perceel
| Overstromingsgevoelig | Geen |
|---|---|
| P-score | A |
| G-score | A |
| Voorkeurrecht | Nee |
| Totale oppervlakte (m²) | 320 |
| Bebouwde oppervlakte (m²) | 100 |
| Tuin oppervlakte (m²) | 0 |
| Oppervlakte terras (m²) | 0 |
Vergunning
| Vergunning | Vergunning beschikbaar |
|---|---|
| Verkavelingsvergunning | Vergunning beschikbaar |
Uitrusting
| Investeringspand | Nee |
|---|---|
| Geschikt voor praktijk | Nee |
| Parking | Ja |
| Garage | Ja |
| Thuiskantoor | Nee |
| Kelder | Nee |
| Zolder | Nee |
| Tuin | Nee |
| Terras | Nee |
| Lift | Nee |
| Rioolaansluiting | Nee |
| Gasaansluiting | Nee |
| Wateraansluiting | Nee |
| Elektriciteitsaansluiting | Nee |
| TV aansluiting | Nee |
| Internetaansluiting | Nee |
| Telefoonaansluiting | Nee |
