Uiterst unieke recreatiewoning
€ 125.000
Een pand van Van Hoye Vastgoed
Overzicht
- 60 m² bewoonbaar
- 1000 m² grond
- 1 Slaapkamer(s)
- 1 Badkamer(s)
- 1 Toilet(ten)
- 1 Tuin
Beschrijving
In een rustige, groene omgeving in Stekene bevindt zich deze unieke recreatiewoning, gebouwd in 2002 en gelegen op een mooi perceel van 1.000 m². Omringd door bomen en natuur geniet u hier van rust, privacy en een echt buitengevoel.
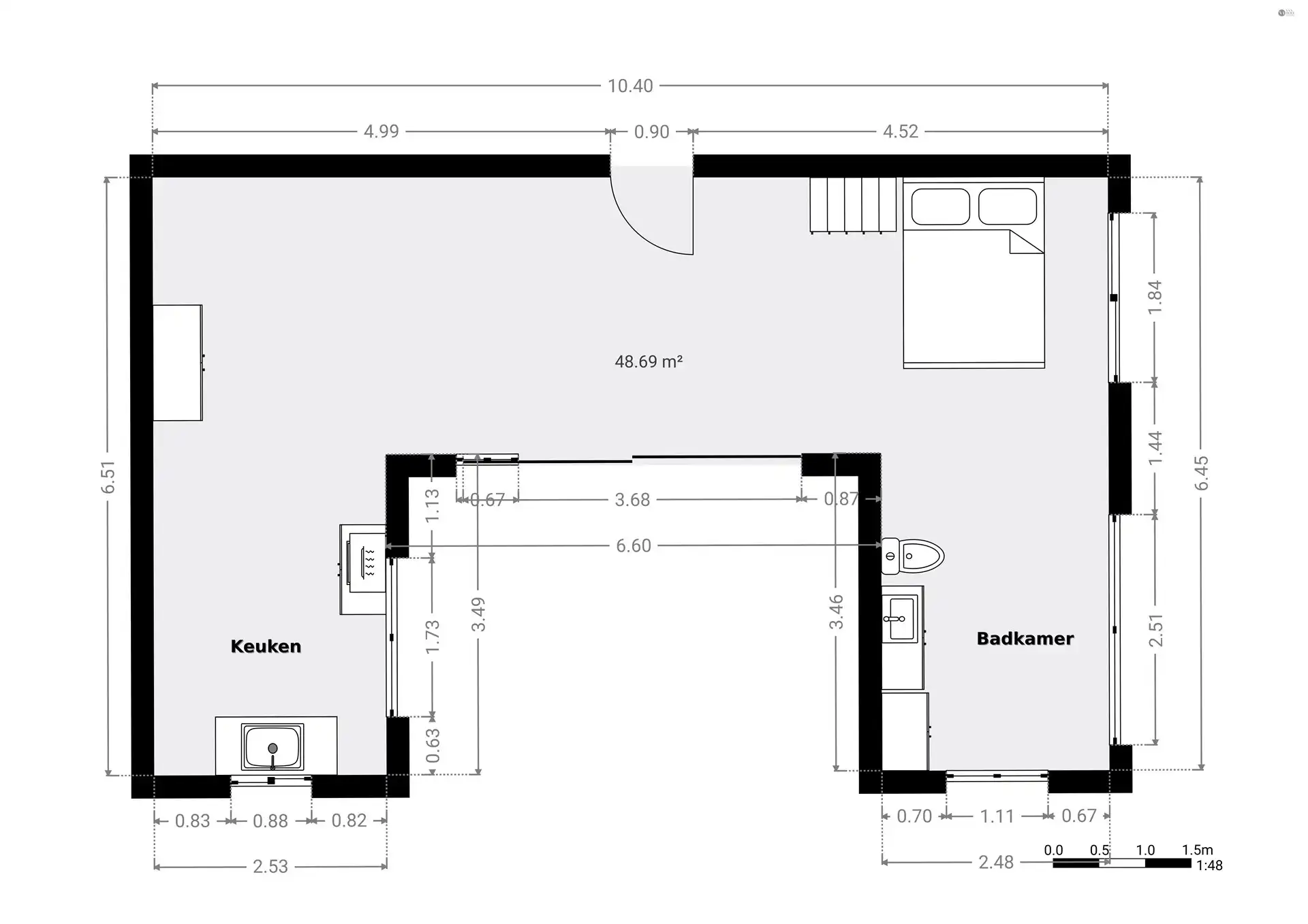
De woning onderscheidt zich door haar bijzondere L-vormige architectuur, wat niet alleen zorgt voor een speelse indeling maar ook voor een aangename verbinding tussen binnen- en buitenruimte. Dankzij de combinatie van hoge plafonds en grote raampartijen voelt het interieur ruim en licht aan.
Hoewel de woning momenteel nog wat opknapwerk kan gebruiken, biedt dit net een mooie kans om ze volledig naar eigen smaak en stijl in te richten. Mits de juiste aanpak kan dit uitgroeien tot een bijzonder charmante en eigentijdse recreatiewoning.
De verwarming gebeurt vandaag via een kachel op propaangas, wat bijdraagt aan een gezellige, landelijke sfeer. Achteraan het perceel bevindt zich bovendien een extra berging, ideaal voor tuinmateriaal, fietsen of extra opslag.
Bij interesse, Bel Laurens op 0471/36.49.78
Energie
- E-peil: E0
- Beglazing: Standaard dubbel
Op de kaart

Financieel
| Prijs | |
|---|---|
| Kadastraal inkomen (niet geïndexeerd) | € 0 |
| Kadastraal inkomen (geïndexeerd) | € 0 |
Berekening kosten
Je aankoopkosten? Die heb je snel berekend via de knop hieronder.
Bijkomende info
Gebouw
| Bouwjaar | 2002 |
|---|---|
| Staat | Op te frissen |
| Bouwcertificaat | Nee |
| Bewoonbaar (m²) | 60 |
| Verdieping | 0 |
| Badkamers | 1 |
| Slaapkamers | 1 |
| Verdiepingen | 0 |
| Garages | 0 |
| Parkeerplaatsen | 0 |
| Doucheruimtes | 0 |
| Toiletten | 1 |
Faciliteiten
| Beglazing | Standaard dubbel |
|---|---|
| Elektrisch keuringsattest | Nee |
Perceel
| Overstromingsgevoelig | Geen |
|---|---|
| P-score | A |
| G-score | A |
| Voorkeurrecht | Nee |
| Totale oppervlakte (m²) | 1000 |
| Bebouwde oppervlakte (m²) | 0 |
| Tuin oppervlakte (m²) | 0 |
| Oppervlakte terras (m²) | 0 |
Vergunning
| Vergunning | Aanvraag ingediend |
|---|---|
| Verkavelingsvergunning | Aanvraag ingediend |
Uitrusting
| Investeringspand | Nee |
|---|---|
| Geschikt voor praktijk | Nee |
| Parking | Nee |
| Garage | Nee |
| Thuiskantoor | Nee |
| Kelder | Nee |
| Zolder | Nee |
| Tuin | Ja |
| Terras | Nee |
| Lift | Nee |
| Rioolaansluiting | Nee |
| Gasaansluiting | Nee |
| Wateraansluiting | Nee |
| Elektriciteitsaansluiting | Nee |
| TV aansluiting | Nee |
| Internetaansluiting | Nee |
| Telefoonaansluiting | Nee |
Appartementsblok
| Lift | Nee |
|---|