Instapklare en energiezuinige rijwoning
€ 274.500
Een pand van Janssen en Janssen
Overzicht
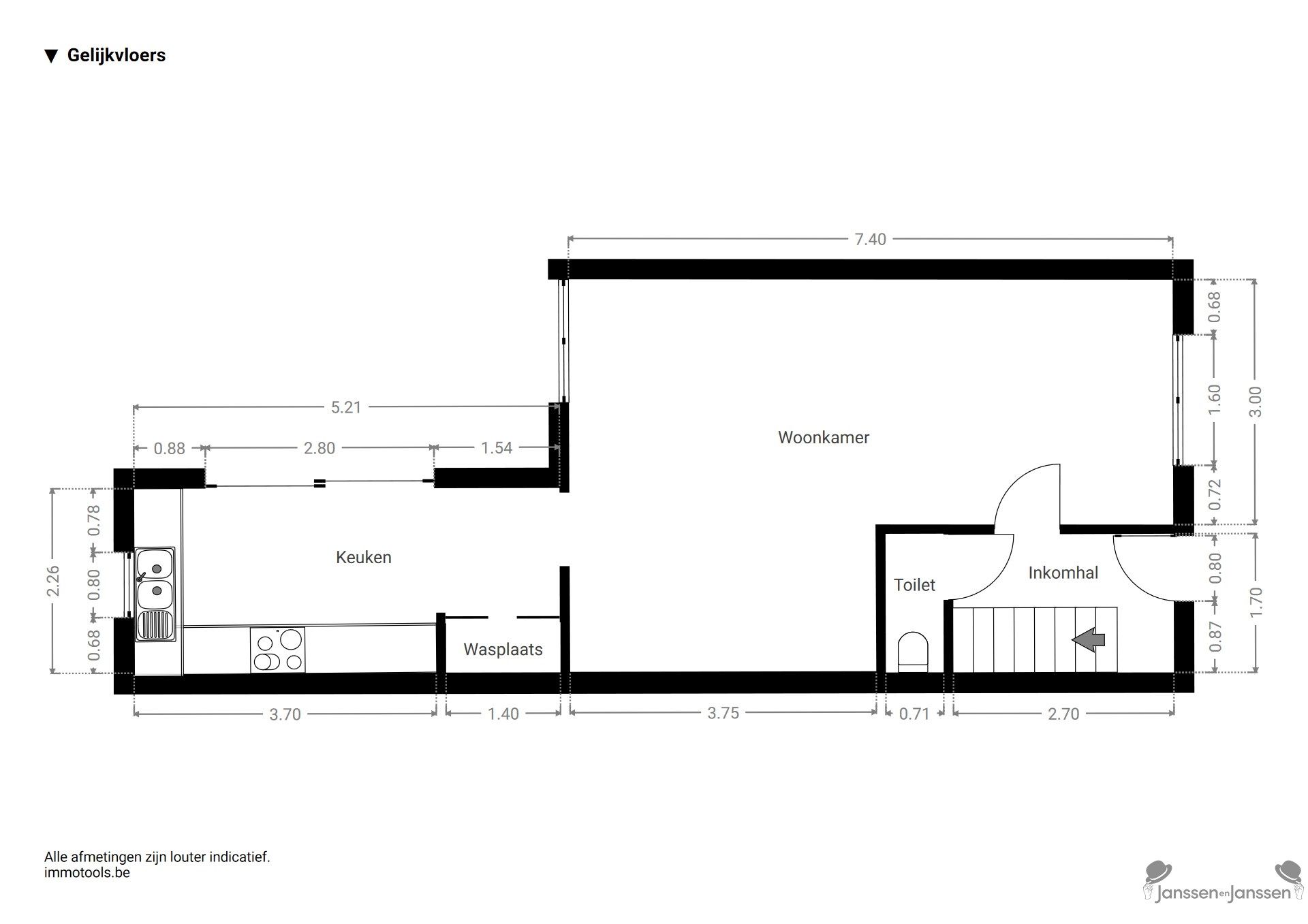
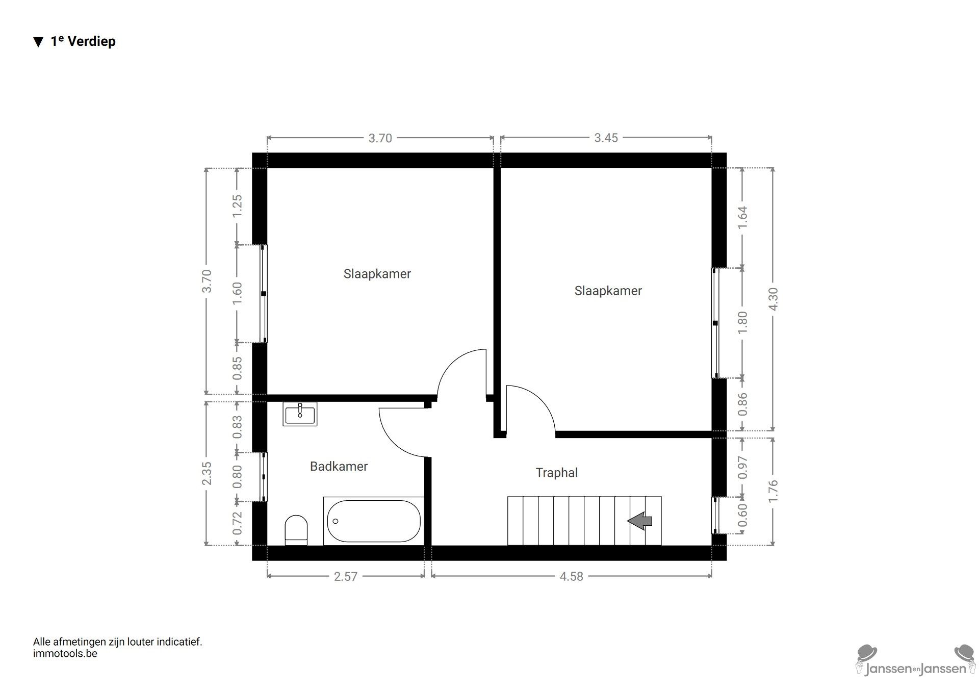
- 154 m² bewoonbaar
- 4 Slaapkamer(s)
- 1 Badkamer(s)
- 2 Toilet(ten)
Beschrijving
Welkom in deze instapklare gezinswoning waar licht, ruimte en gezelligheid hand in hand gaan. Met een bewoonbare oppervlakte van ca. 154 m² biedt dit huis alles wat je nodig hebt voor een comfortabel en eigentijds leven.
De woning telt vier slaapkamers en een hedendaagse badkamer, verdeeld over twee verdiepingen met een overvloed aan daglicht en een frisse, moderne afwerking.
Bij het binnenkomen word je verwelkomd in een lichtrijke inkomhal die uitkomt op de open leefruimte een plek waar wonen, koken en genieten samenkomen.
De moderne keuken is volledig uitgerust met kwalitatieve inbouwtoestellen (oven, vaatwasser, enz.), veel kastruimte en een handig werkblad. Dankzij de grote schuifraam vloeien binnen en buiten mooi in elkaar over: je stapt zo het zuidwestgerichte terras en de onderhoudsvriendelijke tuin in, waar het heerlijk vertoeven is in de zon.
Op de eerste verdieping vind je twee ruime slaapkamers en een stijlvolle badkamer met ligbad, douchefunctie, toilet en wastafelmeubel met extra bergruimte. De twee kamers op zolder bieden volop mogelijkheden ideaal als extra slaapkamer, thuiskantoor of hobbyruimte.
Buiten vind je een ruim terras met zij-ingang, handig voor fietsen of afval.
Deze woning combineert moderne afwerking, een doordachte indeling en een gunstige ligging in het hart van Hamme.
Een warme, instapklare thuis waar elk detail klopt.
Interesse? Neem snel contact op en laat je overtuigen door de charme en het wooncomfort van deze woning!
Bekijk ook onze visuele tour: https://web-player.walkly.app/VoT9ChdTkk3ayg4RKdVj/Dll1TRTnTBAijuoIvZi5/ww/public
Energie
![]() |
- Energieverbruik: 193 kWh/m²/jaar
- E-peil: E0
- Verwarming: Gas
- Beglazing: Standaard dubbel
Op de kaart

Virtual tour
Ontdek het hele pand alvorens je bezoek via de virtuele tour, werkelijkheid gemaakt door Walkly. Geen verassingen tijdens het bezoek!
Beleef de virtuele tourFinancieel
| Prijs | |
|---|---|
| Kadastraal inkomen (niet geïndexeerd) | € 297 |
| Kadastraal inkomen (geïndexeerd) | € 0 |
Berekening kosten
Je aankoopkosten? Die heb je snel berekent via de knop hieronder.
Bijkomende info
Gebouw
| Staat | Goed onderhouden |
|---|---|
| Bouwcertificaat | Nee |
| Bewoonbaar (m²) | 154 |
| Verdieping | 1 |
| Badkamers | 1 |
| Slaapkamers | 4 |
| Verdiepingen | 0 |
| Garages | 0 |
| Parkeerplaatsen | 0 |
| Doucheruimtes | 0 |
| Toiletten | 2 |
Faciliteiten
| Materiaal ramenomlijstingen | PVC |
|---|---|
| Beglazing | Standaard dubbel |
| Brandstof primaire verwarming | Gas |
| Elektrisch keuringsattest | Ja |
Perceel
| Overstromingsgevoelig | Geen |
|---|---|
| P-score | C |
| G-score | C |
| Voorkeurrecht | Nee |
| Bebouwde oppervlakte (m²) | 0 |
| Tuin oppervlakte (m²) | 0 |
| Oppervlakte terras (m²) | 0 |
| Oriëntatie tuin | Zuidwest |
Uitrusting
| Investeringspand | Nee |
|---|---|
| Geschikt voor praktijk | Nee |
| Parking | Nee |
| Garage | Nee |
| Thuiskantoor | Nee |
| Kelder | Nee |
| Zolder | Nee |
| Tuin | Nee |
| Terras | Nee |
| Lift | Nee |
| Rioolaansluiting | Ja |
| Gasaansluiting | Ja |
| Wateraansluiting | Ja |
| Elektriciteitsaansluiting | Ja |
| TV aansluiting | Ja |
| Internetaansluiting | Ja |
| Telefoonaansluiting | Ja |
