Serviceflat (65+)
€ 292.000
Een pand van Janssen en Janssen
Overzicht
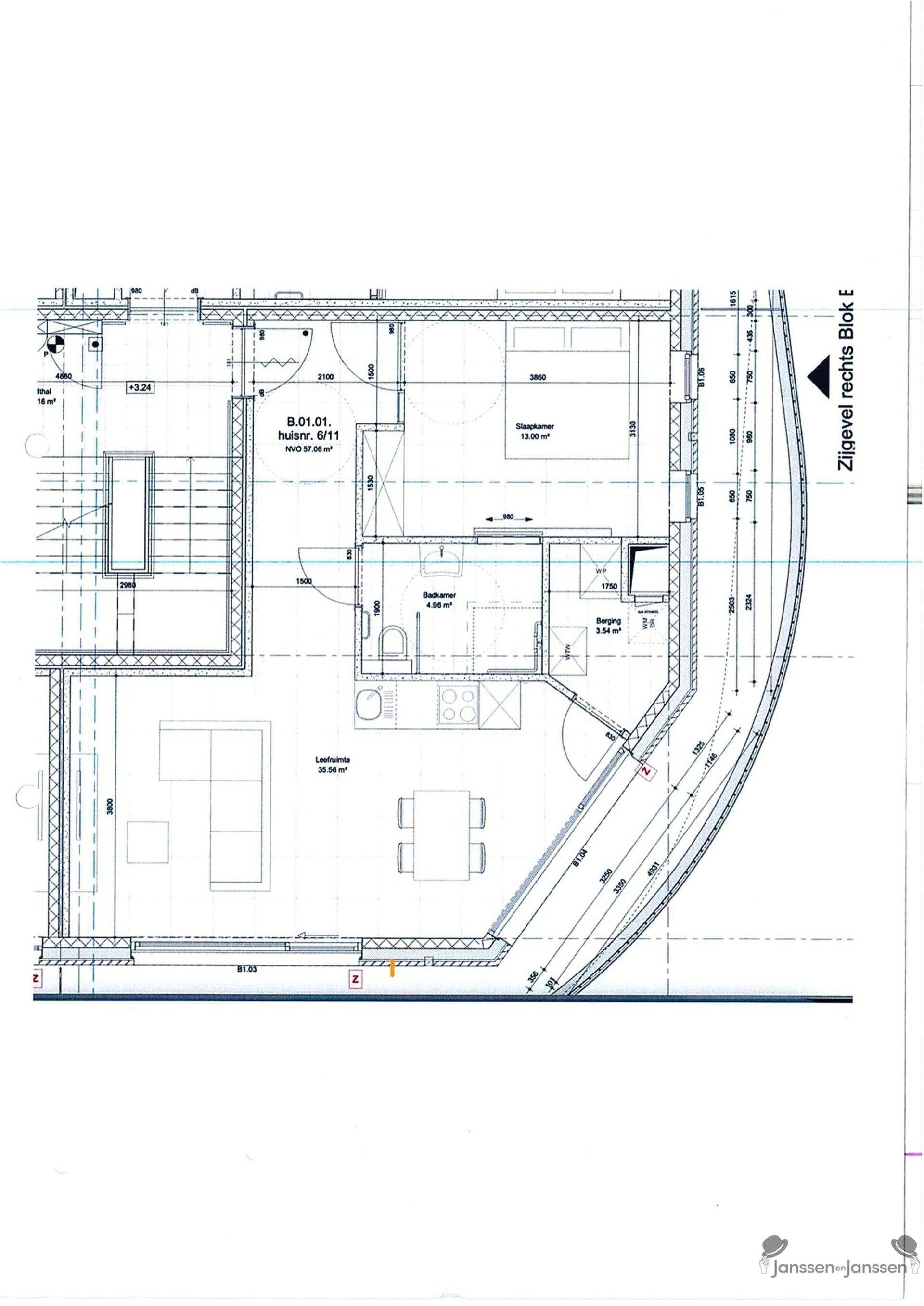
- 69 m² bewoonbaar
- 1 Slaapkamer(s)
- 1 Badkamer(s)
- 1 Toilet(ten)
Beschrijving
Prachtige serviceflat te huur in groene omgeving
Gelegen aan de prachtige Mirabrug in Hamme, biedt deze nieuwe assistentiewoning de ideale thuis voor senioren die op zoek zijn naar comfort, rust en een groene omgeving. De woning beschikt over een ruime en lichte open leefruimte met een keuken, voorzien van verdiepingshoge ramen die het prachtige uitzicht over het park en het water optimaal tot hun recht laten komen.
De woning bevat een ruime slaapkamer, een moderne badkamer, en een technische ruimte voor extra gemak. Het grote leefterras biedt de perfecte plek om van de buitenlucht te genieten. De brede gangen en de aanwezigheid van liften maken de woning ideaal voor minder mobiele senioren. Er is ook een ruime parkeermogelijkheid.
De polyvalente zit- & ontspanningsruimte, alsook de private tuinzone met aangelegde groenzones & zitbanken bieden een fijne plek voor sociale interactie of rustige ontspanning. Bovendien is er een woonassistente aanwezig voor extra zorg en ondersteuning. De nabijheid van fiets- en wandelwegen maakt het mogelijk om dagelijks te genieten van de natuurlijke omgeving.
Een unieke kans om in een veilige en aangename omgeving te wonen met alle nodige voorzieningen binnen handbereik. Neem vandaag nog contact met ons op voor meer informatie of een bezichtiging!
Bekijk onze visuele tour: https://web-player.walkly.app/VoT9ChdTkk3ayg4RKdVj/GvA32VoSX4HhDKFARN6m/ww/public
Energie
![]() |
- E-peil: E0
- Beglazing: Hoog efficient driedubbel
Op de kaart

Virtual tour
Ontdek het hele pand alvorens je bezoek via de virtuele tour, werkelijkheid gemaakt door Walkly. Geen verassingen tijdens het bezoek!
Beleef de virtuele tourFinancieel
| Prijs | |
|---|---|
| Kadastraal inkomen (niet geïndexeerd) | € 0 |
| Kadastraal inkomen (geïndexeerd) | € 0 |
Berekening kosten
Je aankoopkosten? Die heb je snel berekent via de knop hieronder.
Bijkomende info
Gebouw
| Bouwjaar | 2024 |
|---|---|
| Staat | Nieuw |
| Bouwcertificaat | Nee |
| Bewoonbaar (m²) | 69 |
| Verdieping | 1 |
| Badkamers | 1 |
| Slaapkamers | 1 |
| Verdiepingen | 2 |
| Garages | 0 |
| Parkeerplaatsen | 0 |
| Doucheruimtes | 0 |
| Toiletten | 1 |
Faciliteiten
| Materiaal ramenomlijstingen | Aluminium |
|---|---|
| Beglazing | Hoog efficient driedubbel |
| Elektrisch keuringsattest | Ja |
Perceel
| Overstromingsgevoelig | Geen |
|---|---|
| P-score | A |
| G-score | A |
| Voorkeurrecht | Nee |
| Bebouwde oppervlakte (m²) | 0 |
| Tuin oppervlakte (m²) | 0 |
| Oppervlakte terras (m²) | 22 |
Vergunning
| Vergunning | Vergunning beschikbaar |
|---|---|
| Verkavelingsvergunning | Geen beschikbaar |
Uitrusting
| Investeringspand | Nee |
|---|---|
| Geschikt voor praktijk | Nee |
| Parking | Nee |
| Garage | Nee |
| Thuiskantoor | Nee |
| Kelder | Nee |
| Zolder | Nee |
| Tuin | Nee |
| Terras | Ja |
| Lift | Nee |
| Rioolaansluiting | Ja |
| Gasaansluiting | Nee |
| Wateraansluiting | Ja |
| Elektriciteitsaansluiting | Ja |
| TV aansluiting | Ja |
| Internetaansluiting | Ja |
| Telefoonaansluiting | Ja |
Appartementsblok
| Naam residentie | MIRAB'EAU |
|---|---|
| Aantal verdiepingen | 2 |
| Lift | Nee |
