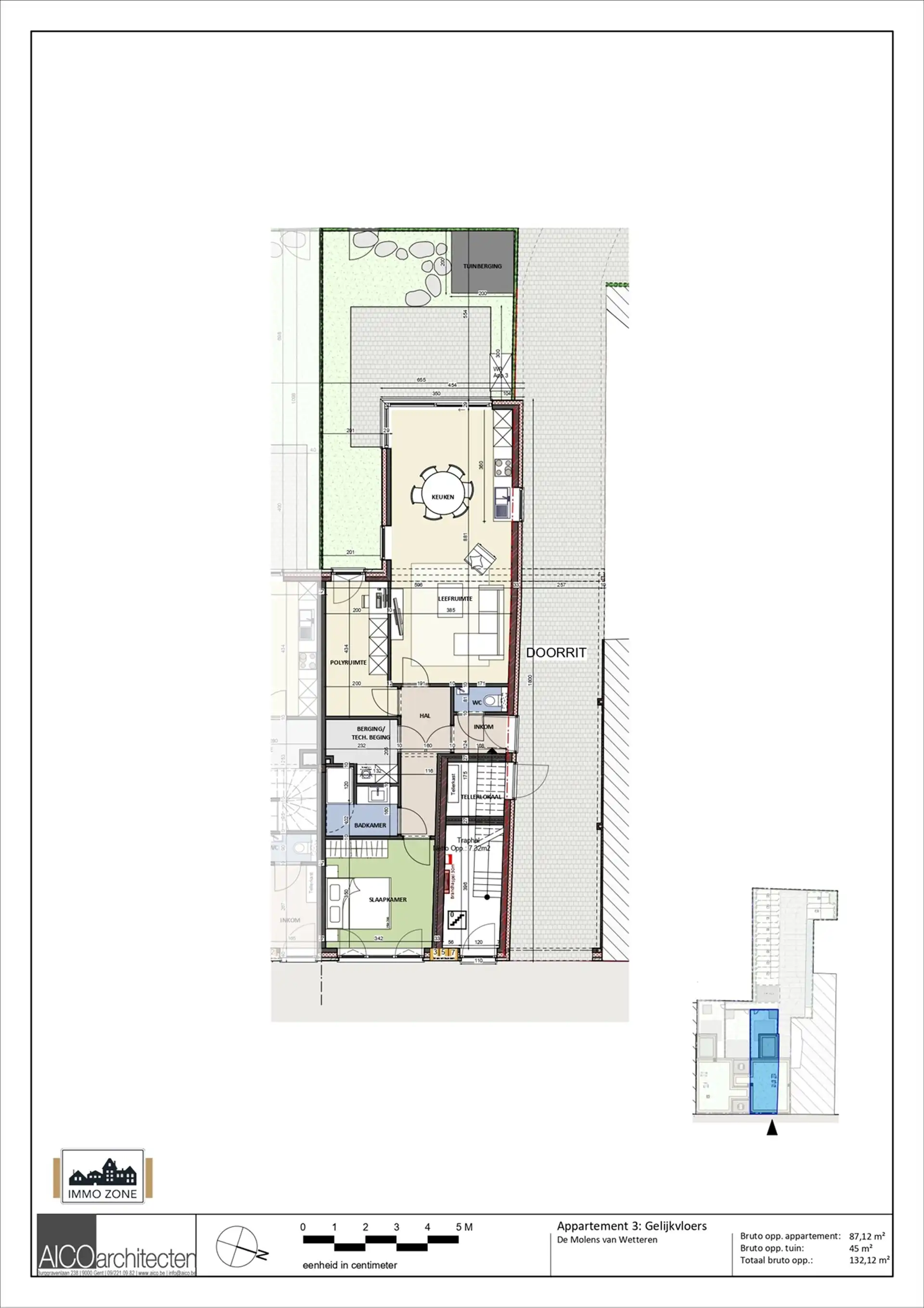
Gelijkvloers appartement met tuin in Wetteren
€ 262.584
Een pand van Immo Zone
Jouw zoektocht
Overzicht
- 87 m² bewoonbaar
- 132 m² grond
- 2 Slaapkamer(s)
- 1 Badkamer(s)
- 1 Toilet(ten)
- 1 Tuin
Beschrijving
In het centrum van Wetteren verrijst residentie De Molens van Wetteren, een kleinschalig en kwalitatief nieuwbouwproject dat modern wooncomfort combineert met een vlotte bereikbaarheid en een aangename leefomgeving.
De ligging in Wetteren zorgt voor een perfecte balans tussen rust en bereikbaarheid. Winkels, scholen, openbaar vervoer en belangrijke invalswegen bevinden zich op korte afstand, waardoor u geniet van alle comfort van het stadsleven zonder in te boeten aan woonkwaliteit.
Het project omvat slechts 7 ruime en doordacht ingedeelde appartementen, variërend van gelijkvloerse appartementen met privatieve tuin, een duplex appartement met tuin tot comfortabele appartementen met terras of dakterras. Dankzij deze variatie is het project ideaal voor zowel eigen bewoning als investering.
Elke woonentiteit geniet van:
- Lichtrijke leefruimtes met open keuken
- 2 tot 3 slaapkamers (afhankelijk van het type)
- Een privatieve buitenruimte (tuin, terras of dakterras)
- Moderne badkamers en aparte toiletten
- Hoogwaardige en duurzame afwerking
Daarnaast beschikt de residentie over parkeerplekken op eigen terrein en een gemeenschappelijke fietsenberging.
De Molens van Wetteren staat garant voor tijdloos wonen, energiezuinigheid en een aangename leefomgeving – een toekomstgerichte keuze voor wie op zoek is naar kwaliteit en duurzaamheid.
Alle prijzen zijn telkens exclusief aankoopkosten en BTW.
Voor meer informatie, contacteer Quinten van Immo Zone op 0485/02.48.04 of per mail op quinten@immo-zone.be
Energie
![]() |
- E-peil: E35
- Beglazing: Onbekend
Op de kaart

Financieel
| Prijs | |
|---|---|
| Kadastraal inkomen (niet geïndexeerd) | € 0 |
| Kadastraal inkomen (geïndexeerd) | € 0 |
Bijkomende info
Gebouw
| Bouwjaar | 2027 |
|---|---|
| Bouwcertificaat | Nee |
| Bewoonbaar (m²) | 87 |
| Verdieping | 0 |
| Gevelbreedte | 6 |
| Badkamers | 1 |
| Slaapkamers | 2 |
| Verdiepingen | 0 |
| Garages | 0 |
| Parkeerplaatsen | 0 |
| Doucheruimtes | 0 |
| Toiletten | 1 |
Faciliteiten
| Keuken uitrusting | Luxueus uitgerust |
|---|---|
| Materiaal ramenomlijstingen | PVC |
| Elektrisch keuringsattest | Ja |
Perceel
| Diepte (m) | 25 |
|---|---|
| Breedte (m) | 6 |
| Overstromingsgevoelig | Geen |
| P-score | C |
| G-score | C |
| Voorkeurrecht | Nee |
| Totale oppervlakte (m²) | 132 |
| Bebouwde oppervlakte (m²) | 0 |
| Tuin oppervlakte (m²) | 35 |
| Oppervlakte terras (m²) | 10 |
| Oriëntatie tuin | West |
Vergunning
| Vergunning | Vergunning beschikbaar |
|---|---|
| Verkavelingsvergunning | Geen beschikbaar |
Uitrusting
| Investeringspand | Nee |
|---|---|
| Geschikt voor praktijk | Nee |
| Parking | Nee |
| Garage | Nee |
| Thuiskantoor | Nee |
| Kelder | Nee |
| Zolder | Nee |
| Tuin | Ja |
| Terras | Ja |
| Lift | Nee |
| Rioolaansluiting | Nee |
| Gasaansluiting | Nee |
| Wateraansluiting | Nee |
| Elektriciteitsaansluiting | Nee |
| TV aansluiting | Nee |
| Internetaansluiting | Nee |
| Telefoonaansluiting | Nee |
Appartementsblok
| Lift | Nee |
|---|
