NIEUWE VOORWAARDEN - Opbrengsteigendom met 3 entiteiten
€ 599.980
Een pand van Altro Vastgoed Wetteren
Overzicht
- 285 m² bewoonbaar
- 176 m² grond
- 5 Slaapkamer(s)
- 3 Badkamer(s)
- 3 Toilet(ten)
- 1 Tuin
Beschrijving
NIEUWE VOORWAARDEN - Op wandelafstand van het station, treft u deze opbrengsteigendom.
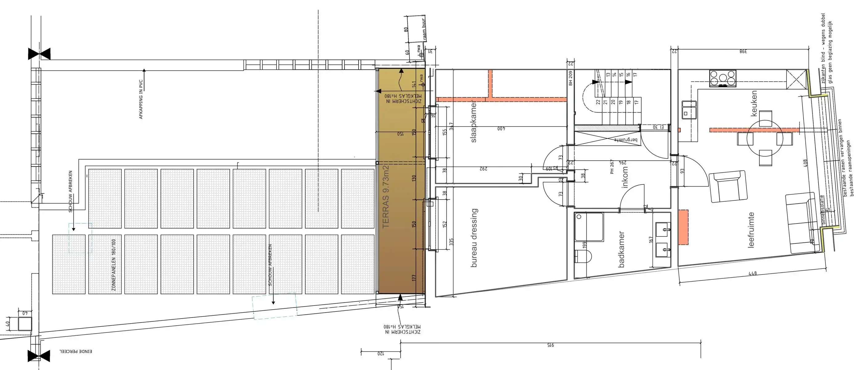
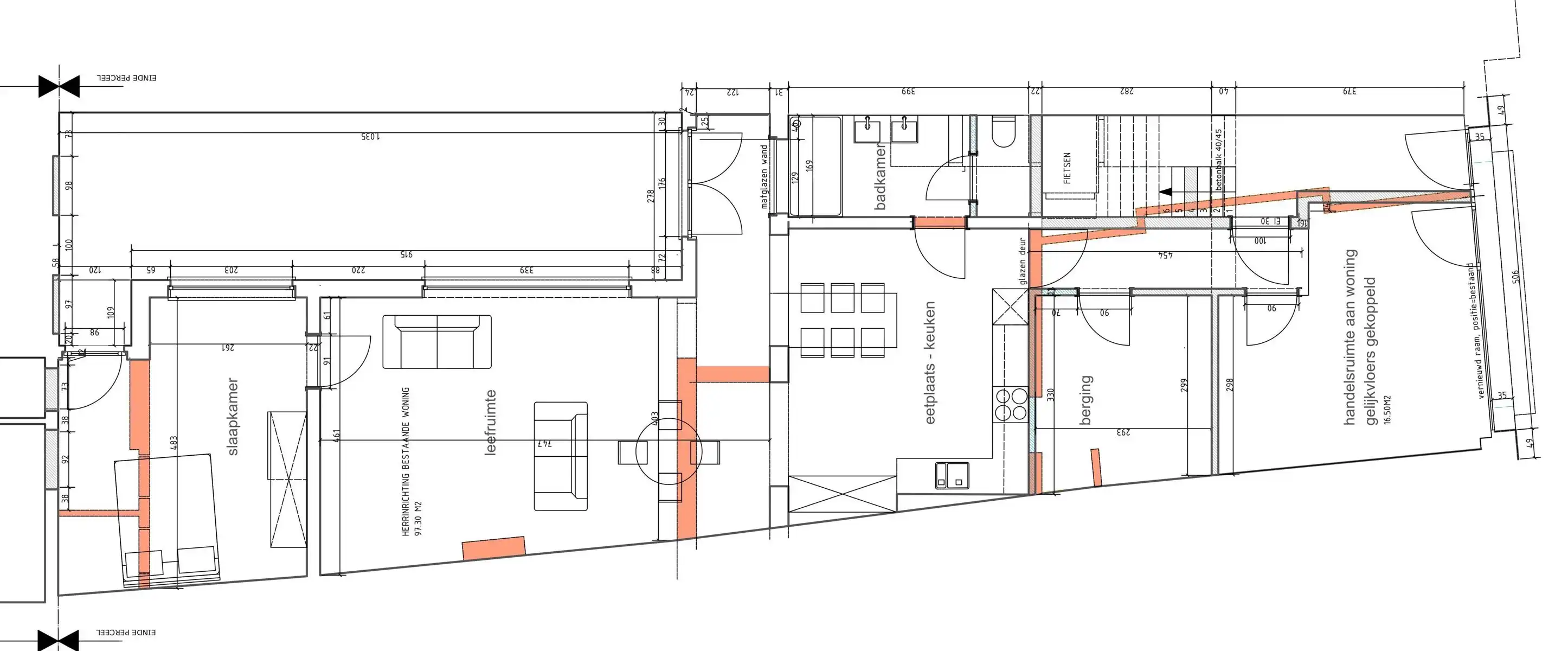
Het gebouw bestaat slechts uit 3 entiteiten: gelijkvloers (nog in te vullen appartement / commercieel), 1e en 2e verdieping bevat elk een appartement met 2 slaapkamers.
Driedubbele beglazing, condenserende gaswandketel, gevel-, vloer- en plafond-isolatie aanwezig om een zeer gunstig energiepeil te ontvangen.
Gelijkvloers: momenteel zijn de ramen vooraan vernieuwd, is er een nieuwe hoofdleiding gas, water en elektriciteit voorzien. De nieuwe, condenserende gasverwarmingsketel werd geïnstalleerd en er is een nieuwe afvoer voor wc, sanitair en cv-ketel. Indeling/afwerking nog zelf verder te bepalen.
De indeling van de appartementen: ruime inkomhal, leefruimte en open keuken met SMEG-kookvuur en Amerikaanse koelkast. 2 ruime slaapkamers en badkamer met inloop-regen-douche, wastafel en hangtoilet + voorzieningen voor wasmachine/droogkast.
Geen lift in het gebouw, weinig entiteiten, bijgevolg zeer lage gemeenschappelijke kosten.
Er is een gemeenschappelijke fietsenberging voor de appartementen. De gevel wordt nog verder afgewerkt.
Beide appartementen zijn verhuurd aan 800 euro/maand, voor het gelijkvloers is er een kandidaat na afwerking om te huren aan 1300 euro/maand.
Wenst u graag een bezoek, neem dan contact op met Daniel.
Het gebouw bestaat slechts uit 3 entiteiten: gelijkvloers (nog in te vullen appartement / commercieel), 1e en 2e verdieping bevat elk een appartement met 2 slaapkamers.
Driedubbele beglazing, condenserende gaswandketel, gevel-, vloer- en plafond-isolatie aanwezig om een zeer gunstig energiepeil te ontvangen.
Gelijkvloers: momenteel zijn de ramen vooraan vernieuwd, is er een nieuwe hoofdleiding gas, water en elektriciteit voorzien. De nieuwe, condenserende gasverwarmingsketel werd geïnstalleerd en er is een nieuwe afvoer voor wc, sanitair en cv-ketel. Indeling/afwerking nog zelf verder te bepalen.
De indeling van de appartementen: ruime inkomhal, leefruimte en open keuken met SMEG-kookvuur en Amerikaanse koelkast. 2 ruime slaapkamers en badkamer met inloop-regen-douche, wastafel en hangtoilet + voorzieningen voor wasmachine/droogkast.
Geen lift in het gebouw, weinig entiteiten, bijgevolg zeer lage gemeenschappelijke kosten.
Er is een gemeenschappelijke fietsenberging voor de appartementen. De gevel wordt nog verder afgewerkt.
Beide appartementen zijn verhuurd aan 800 euro/maand, voor het gelijkvloers is er een kandidaat na afwerking om te huren aan 1300 euro/maand.
Wenst u graag een bezoek, neem dan contact op met Daniel.
NIEUWE VOORWAARDEN - Op wandelafstand van het station, treft u deze opbrengsteigendom.
Het gebouw bestaat slechts uit 3 entiteiten: gelijkvloers (nog in te vullen appartement / commercieel), 1e en 2e verdieping bevat elk een appartement met 2 slaapkamers.
Driedubbele beglazing, condenserende gaswandketel, gevel-, vloer- en plafond-isolatie aanwezig om een zeer gunstig energiepeil te ontvangen.
Gelijkvloers: momenteel zijn de ramen vooraan vernieuwd, is er een nieuwe hoofdleiding gas, water en elektriciteit voorzien. De nieuwe, condenserende gasverwarmingsketel werd geïnstalleerd en er is een nieuwe afvoer voor wc, sanitair en cv-ketel. Indeling/afwerking nog zelf verder te bepalen.
De indeling van de appartementen: ruime inkomhal, leefruimte en open keuken met SMEG-kookvuur en Amerikaanse koelkast. 2 ruime slaapkamers en badkamer met inloop-regen-douche, wastafel en hangtoilet + voorzieningen voor wasmachine/droogkast.
Geen lift in het gebouw, weinig entiteiten, bijgevolg zeer lage gemeenschappelijke kosten.
Er is een gemeenschappelijke fietsenberging voor de appartementen. De gevel wordt nog verder afgewerkt.
Beide appartementen zijn verhuurd aan 800 euro/maand, voor het gelijkvloers is er een kandidaat na afwerking om te huren aan 1300 euro/maand.
Wenst u graag een bezoek, neem dan contact op met Hanne.
Het gebouw bestaat slechts uit 3 entiteiten: gelijkvloers (nog in te vullen appartement / commercieel), 1e en 2e verdieping bevat elk een appartement met 2 slaapkamers.
Driedubbele beglazing, condenserende gaswandketel, gevel-, vloer- en plafond-isolatie aanwezig om een zeer gunstig energiepeil te ontvangen.
Gelijkvloers: momenteel zijn de ramen vooraan vernieuwd, is er een nieuwe hoofdleiding gas, water en elektriciteit voorzien. De nieuwe, condenserende gasverwarmingsketel werd geïnstalleerd en er is een nieuwe afvoer voor wc, sanitair en cv-ketel. Indeling/afwerking nog zelf verder te bepalen.
De indeling van de appartementen: ruime inkomhal, leefruimte en open keuken met SMEG-kookvuur en Amerikaanse koelkast. 2 ruime slaapkamers en badkamer met inloop-regen-douche, wastafel en hangtoilet + voorzieningen voor wasmachine/droogkast.
Geen lift in het gebouw, weinig entiteiten, bijgevolg zeer lage gemeenschappelijke kosten.
Er is een gemeenschappelijke fietsenberging voor de appartementen. De gevel wordt nog verder afgewerkt.
Beide appartementen zijn verhuurd aan 800 euro/maand, voor het gelijkvloers is er een kandidaat na afwerking om te huren aan 1300 euro/maand.
Wenst u graag een bezoek, neem dan contact op met Hanne.
Energie
Op de kaart

Financieel
| Prijs |
|---|
Berekening kosten
Je aankoopkosten? Die heb je snel berekent via de knop hieronder.
Bijkomende info
Gebouw
| Renovatie jaar | 2023 |
|---|---|
| Staat | Op te frissen |
| Bewoonbaar (m²) | 285 |
| Gevels | 2 |
| Badkamers | 3 |
| Slaapkamers | 5 |
| Verdiepingen | 3 |
| Parkeerplaatsen | 0 |
| Doucheruimtes | 3 |
| Toiletten | 3 |
Faciliteiten
| Type vloer | |
|---|---|
| Keuken uitrusting | Standaard |
| Elektrisch keuringsattest | Ja |
Perceel
| Overstromingsgevoelig | Geen |
|---|---|
| P-score | A |
| G-score | A |
| Totale oppervlakte (m²) | 176 |
| Tuin oppervlakte (m²) | 30 |
Vergunning
| Vergunning | Geen beschikbaar |
|---|---|
| Verkavelingsvergunning | Geen beschikbaar |
Uitrusting
| Geschikt voor rolstoelgebruikers | Nee |
|---|---|
| Parking | Nee |
| Garage | Nee |
| Tuin | Ja |
| Terras | Ja |
| Lift | Nee |
| Gasaansluiting | Ja |
| Wateraansluiting | Ja |
| Elektriciteitsaansluiting | Ja |
| TV aansluiting | Ja |
| Telefoonaansluiting | Ja |
| Zwembad | Nee |
| Zwemvijver | Nee |
Een pand van
Altro Vastgoed Wetteren
Wij verkopen uw vastgoed, anders én beter!
Bij Altro Vastgoed vinden we een persoonlijke aanpak erg belangrijk, hierbij stellen we de klant steeds centraal en staan we hem/haar bij in het complexe proces van verkopen, aankopen, verhuren en huren van vastgoed. We beschikken over een kwalitatief kantorennetwerk in Vlaanderen en Brussel met een sterke, lokale verankering.
Leer meer over vastgoed
24 November 2025
Uitgezocht voor jouw gemeente: Hoeveel stijgt de waarde van je woning door een renovatie?
22 October 2025
Hoeveel kan ik lenen om een huis te kopen?
11 June 2025
Huis kopen met bouwovertreding? Dit moet je weten
11 May 2025