Aangename bouwgrond op rustige locatie in Massemen
€ 139.500
Een pand van Immo Zone
Overzicht
- 366 m² grond
Beschrijving
Ontdek deze aantrekkelijke bouwgrond van 366 m² in een rustige straat in het landelijke Massemen (Wetteren). Deze bouwgrond biedt een perceelbreedte van 9 meter en een diepte van 40 meter – ideaal voor een gezinswoning met tuin.
Gelegen in het landelijke Massemen en omgeven door groen, vormt dit perceel de perfecte plek om jouw woondroom waar te maken. De ligging combineert rust en privacy met een vlotte verbinding naar Wetteren, Gent en de E40.
Troeven:
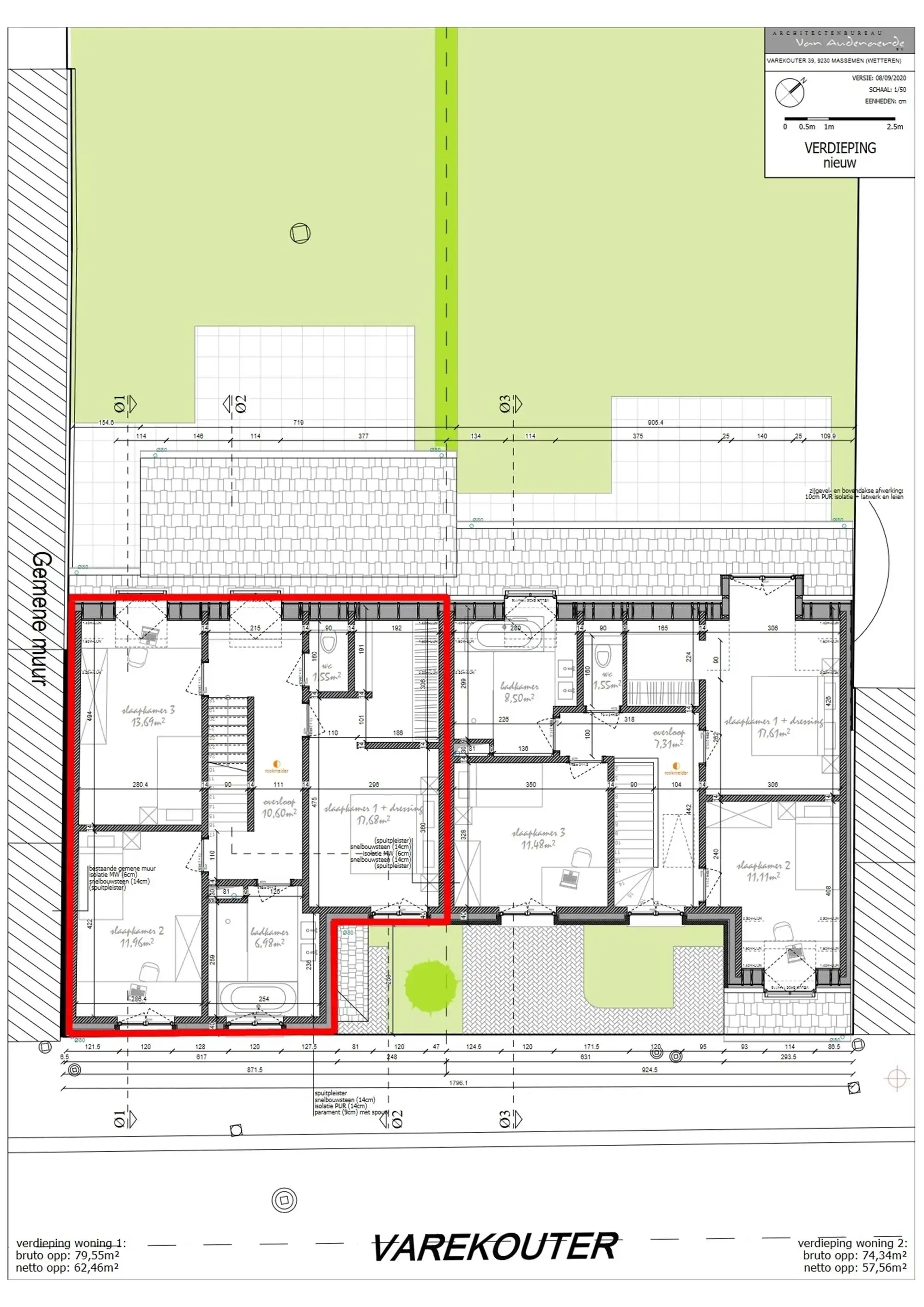
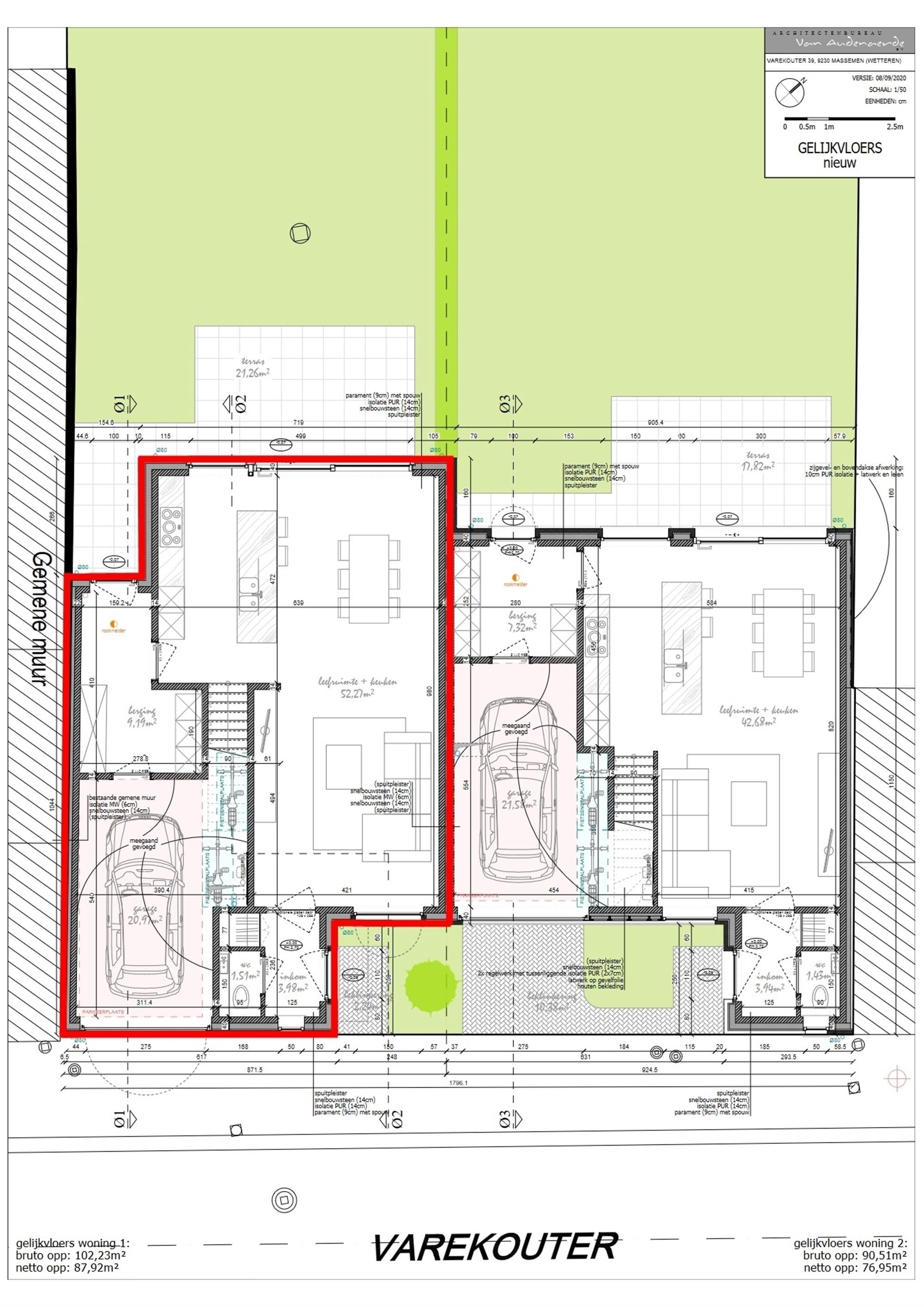
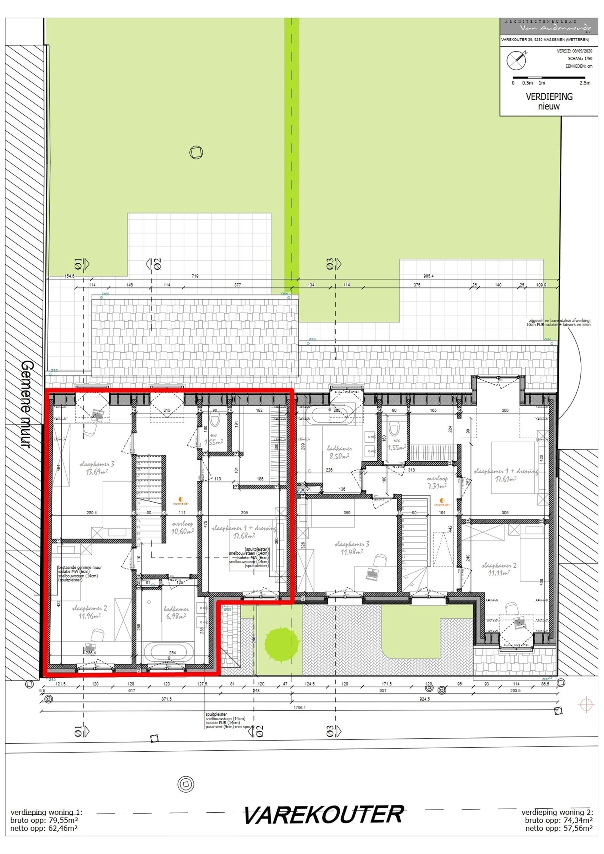
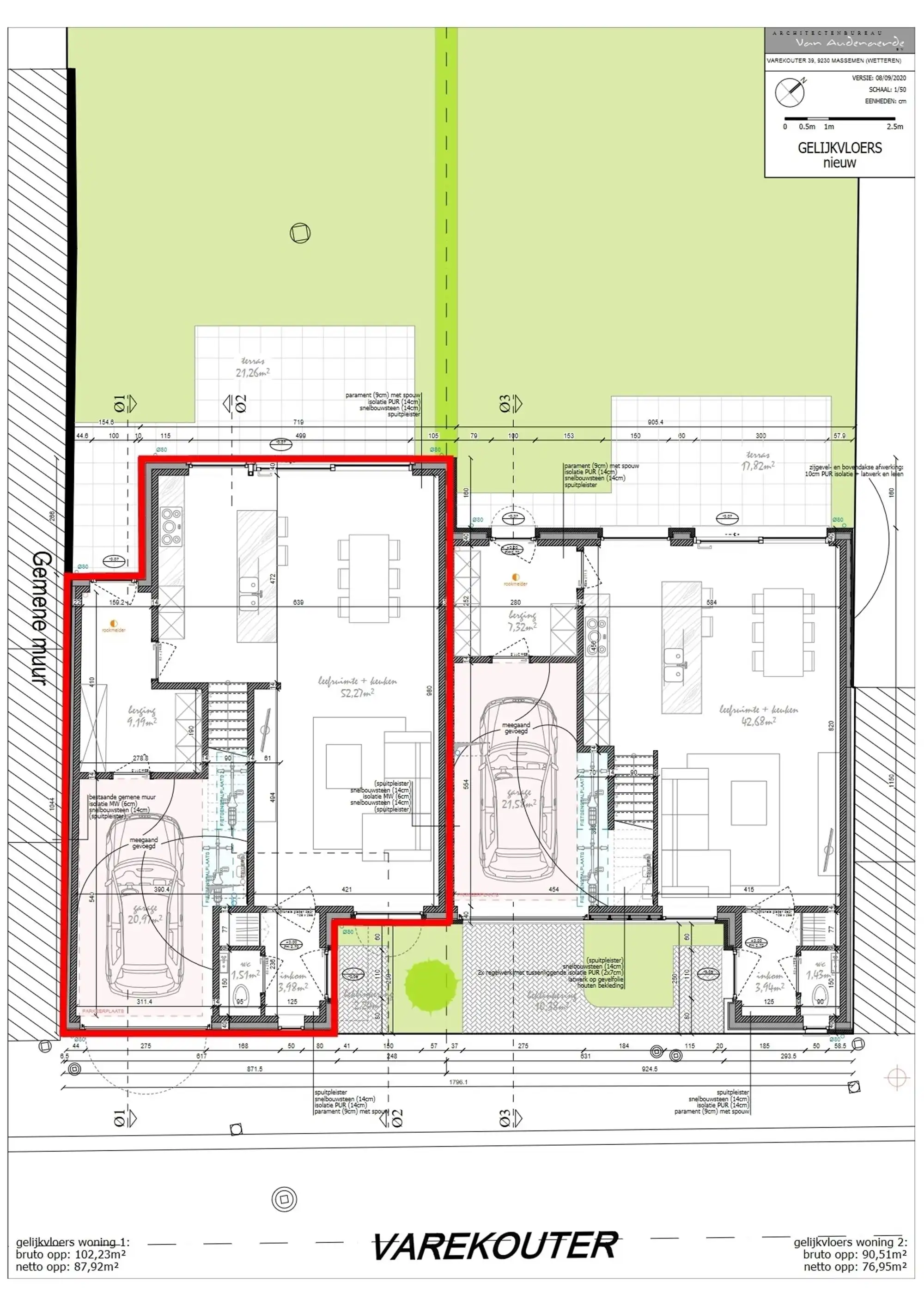
- Totale oppervlakte: 366 m²
- Perceelbreedte: 9 meter
- Diepte: 40 meter
- Bestemming: Woonuitbreidingsgebied – geschikt voor gesloten bebouwing
- Aansluitingen voor nutsvoorzieningen aanwezig in de straat
- Geen bouwverplichting
- Eigen architecturale keuzes zijn steeds mogelijk.
- Rustige straat met beperkte passage
- Nabij scholen, winkels en openbaar vervoer
Of je nu zelf wil bouwen of op zoek bent naar een investeringskans, dit perceel heeft alles in huis om jouw plannen tot leven te brengen.
Meer info of een bezichtiging?
Neem contact op via Quinten van Immo Zone – 04/85.02.48.04 – quinten@immo-zone.be
Energie
- E-peil: E0
- Beglazing: Onbekend
Op de kaart

Downloads
- BA_MALIMMO Varekouter-GLVL.pdf
- BA_MALIMMO Varekouter-samengesteld.pdf
- BA_MALIMMO Varekouter-VERD.pdf
- BA_MALIMMO Varekouter-ZOLD.pdf
- geoloket.extranet.cevi.be_output__ags_d106a08ee7a84a26b055004f4c0d974a.htm.pdf
- V.950_2_plan.pdf
- V.950_2_verkavelingsvoorschriften.pdf
- VGI_Uittreksel_2023-07-04 14_36_49Z.pdf
Financieel
| Prijs | |
|---|---|
| Kadastraal inkomen (niet geïndexeerd) | € 0 |
| Kadastraal inkomen (geïndexeerd) | € 0 |
Berekening kosten
Je aankoopkosten? Die heb je snel berekent via de knop hieronder.
Bijkomende info
Gebouw
| Bouwcertificaat | Nee |
|---|
Perceel
| Diepte (m) | 40 |
|---|---|
| Breedte (m) | 9 |
| Overstromingsgevoelig | Geen |
| P-score | A |
| Voorkeurrecht | Nee |
| Totale oppervlakte (m²) | 366 |
| Oriëntatie tuin | Noordwest |
Vergunning
| Vergunning | Geen beschikbaar |
|---|---|
| Verkavelingsvergunning | Vergunning beschikbaar |
Uitrusting
| Investeringspand | Nee |
|---|---|
| Rioolaansluiting | Nee |
| Gasaansluiting | Nee |
| Wateraansluiting | Nee |
| Elektriciteitsaansluiting | Nee |
| TV aansluiting | Nee |
| Internetaansluiting | Nee |
| Telefoonaansluiting | Nee |