> Te koop > WETTEREN > Nieuwbouwproject
50% verkocht

Project

9230 WETTEREN

Een pand van Immo Zone

Volledige aanbod

Jouw zoektocht

Jouw scoretabel voor dit pand
Aan het laden...
Aan het laden...
Jouw geplande bezichtigingen
Aan het laden...
Aan het laden...

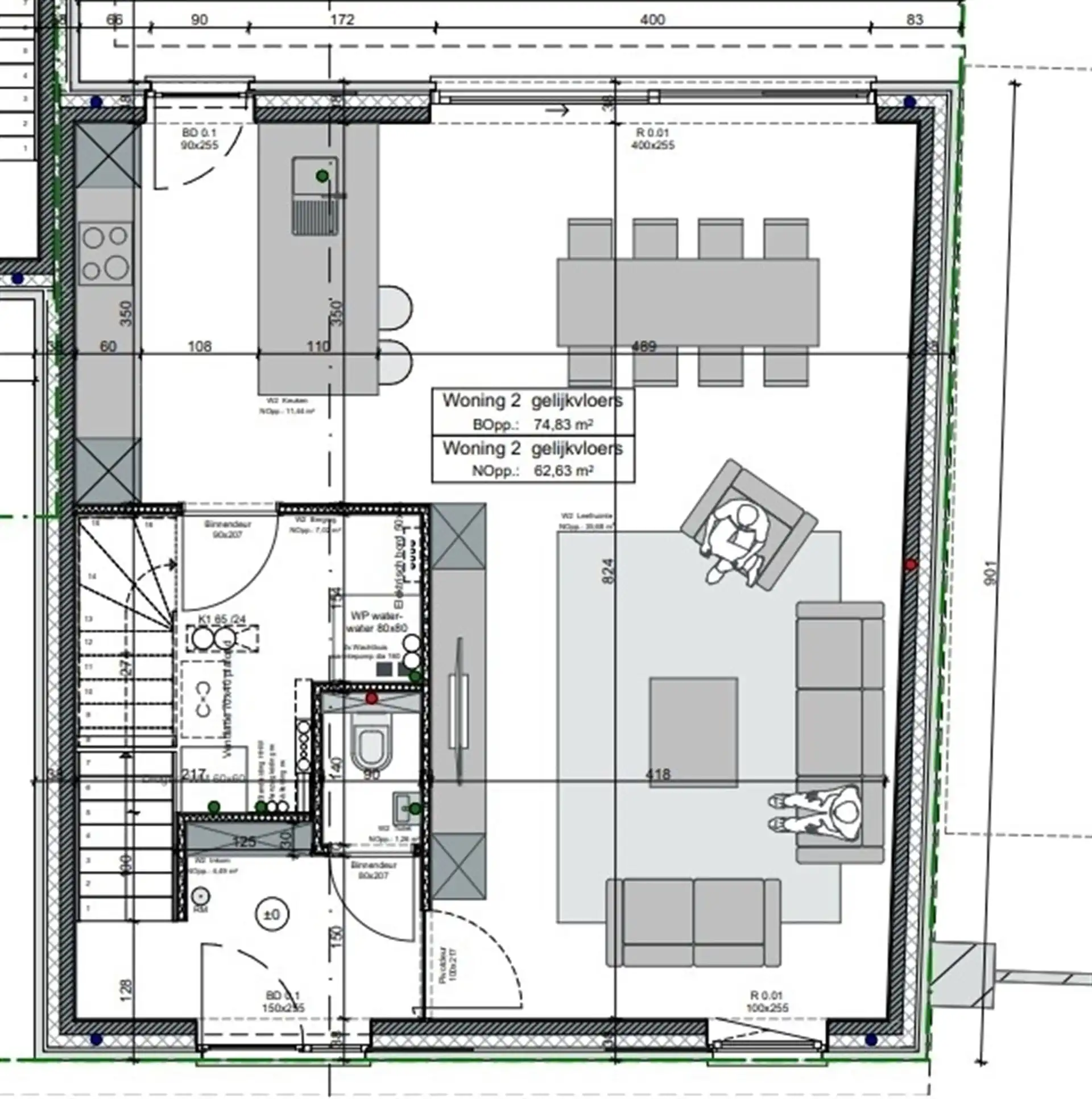
Beschrijving


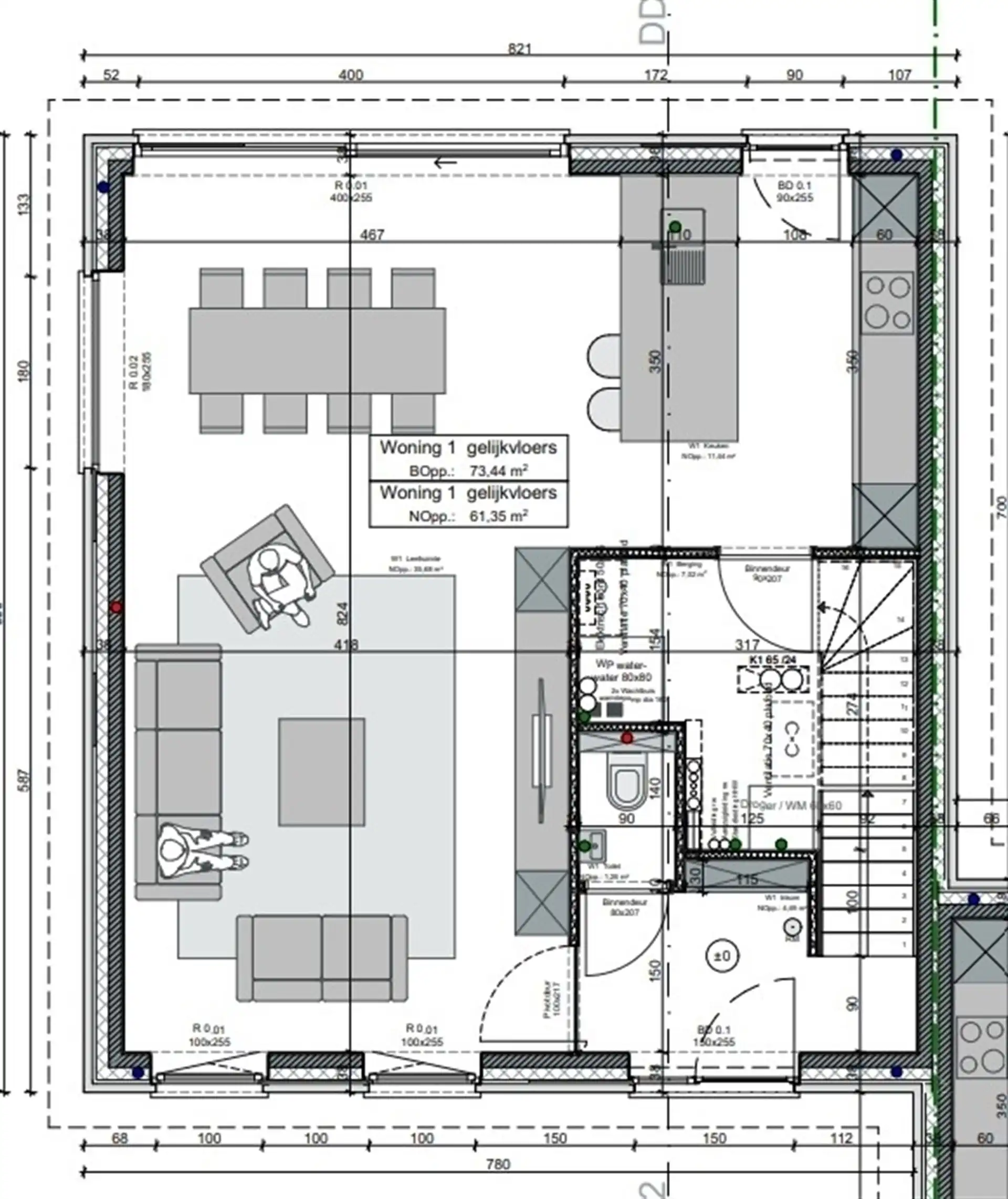
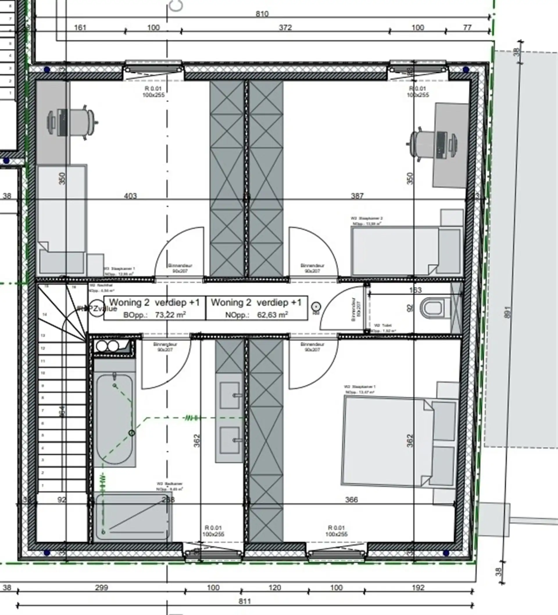
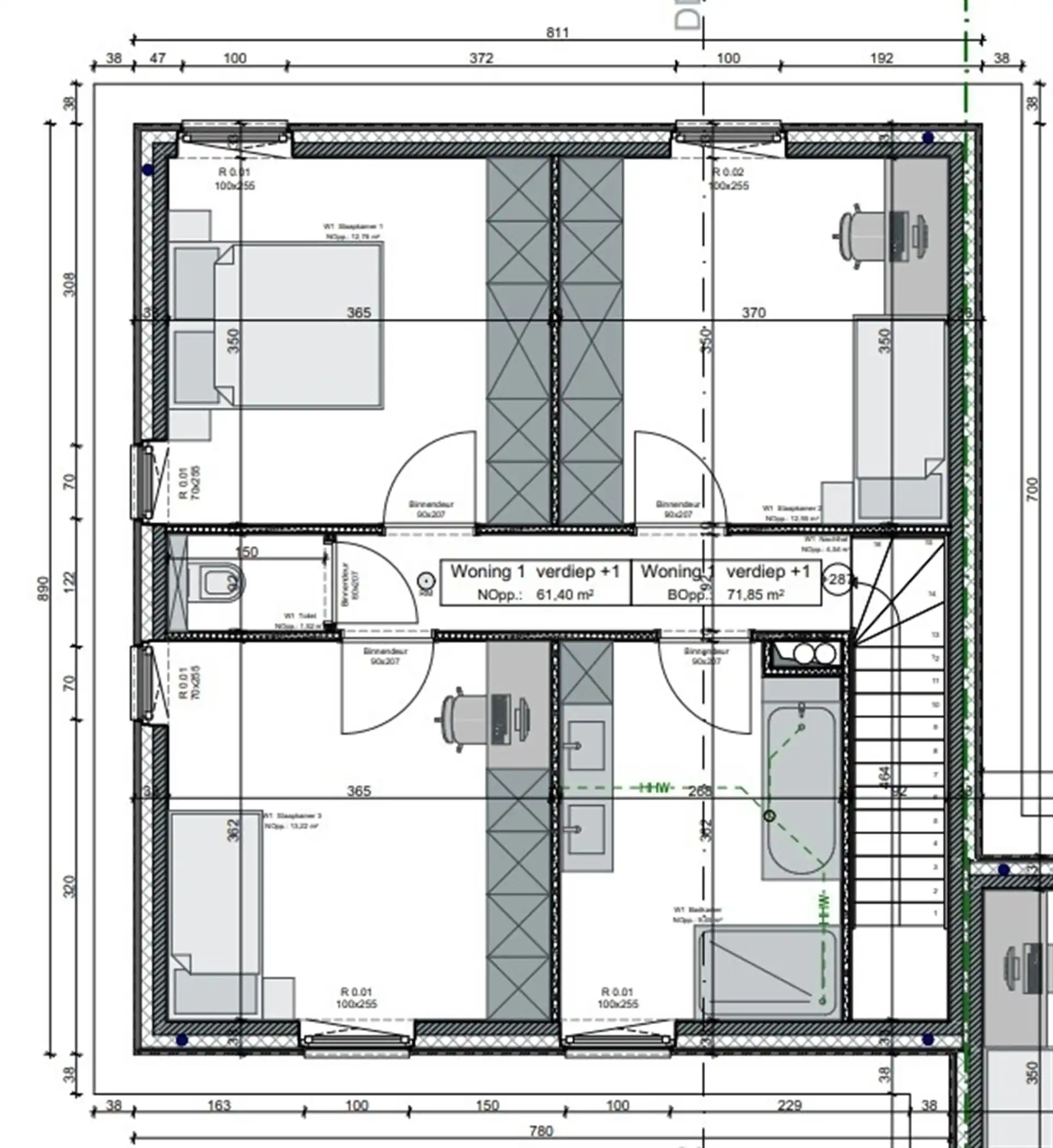
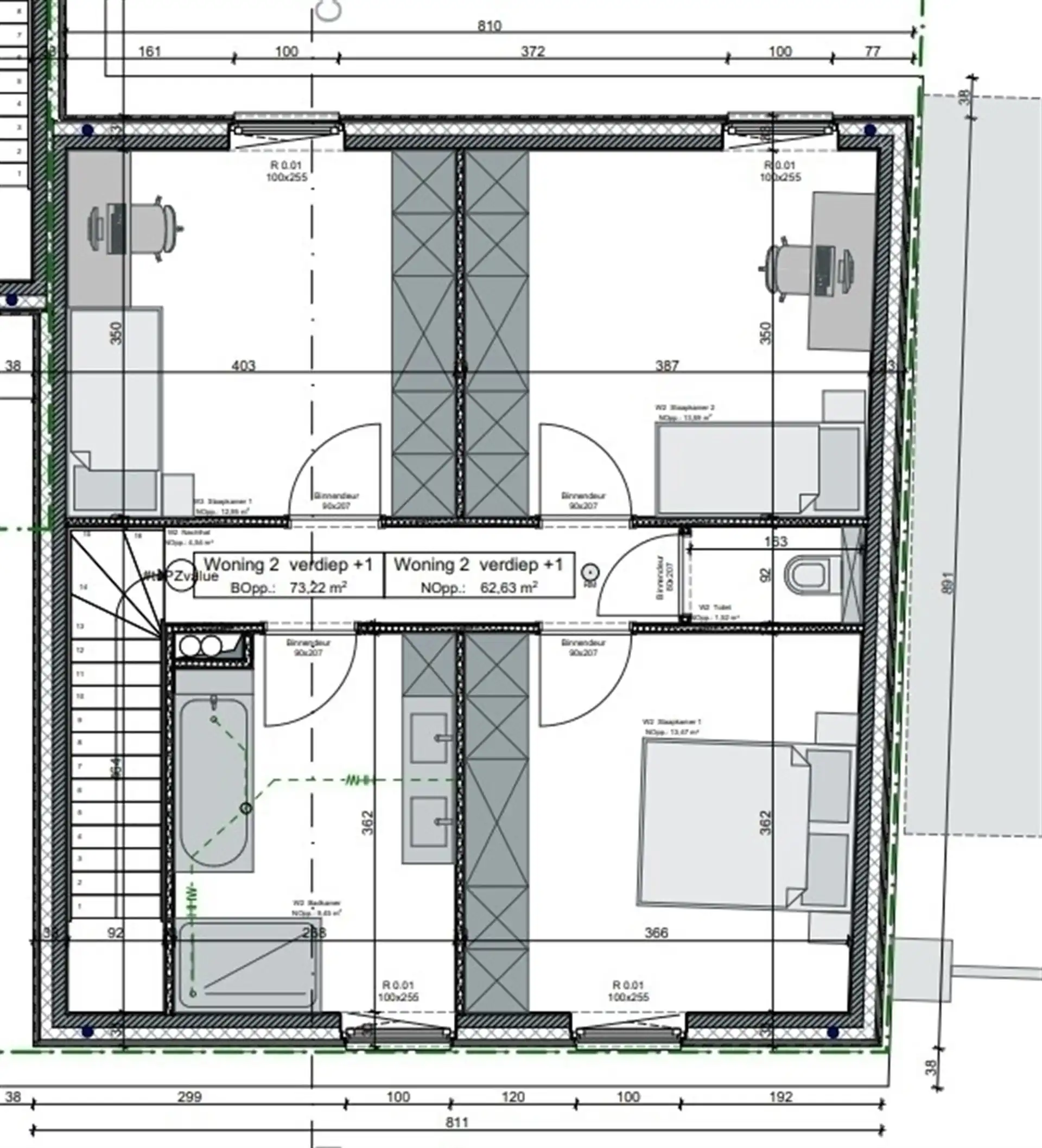
LAATSTE WONING BESCHIKBAAR!

Welkom in het prachtige nieuwbouwproject ‘FORTSTRAAT 11’. Met de ligging vlakbij het station van Wetteren is de Fortstraat een fantastische woonlocatie die gemak en een aangename omgeving combineert. Je geniet er van de nabijheid tot winkels, restaurants, scholen en recreatie, terwijl de groene parkomgeving van de site voor een aangename rust zorgt. Met goede verbindingen naar openbaar vervoer en hoofdwegen biedt de Fortstraat een perfecte balans tussen stedelijk leven en wonen in het groen.

Op deze unieke locatie wordt een karaktervolle villa getransformeerd tot een stijlvol kantoor en vijf exclusieve appartementen. Door een moderne optopping te combineren met behoud van de authentieke elementen van de bestaande villa, ontstaat een harmonieuze mix van historisch erfgoed en hedendaags design. De entiteiten worden volledig gebouwd volgens de strengste energienormen, en met een uitzonderlijk laag E-peil: 20 zijn ze dan ook klaar voor de toekomst!

Naast de bestaande villa verrijken twee nieuwbouwwoningen de voorzijde het project, met tussenin een prachtige groene tuin die het straatbeeld opfrist. Achteraan wacht een serene, gemeenschappelijke parktuin, waar imposante oude bomen een rustgevende, groene oase creëren.

Fortstraat 11 biedt een zeldzame combinatie van modern comfort, historische charme en groene ruimte, ideaal voor wie op zoek is naar eigentijds wonen in een unieke setting. De oplevering is voorzien voor zomer 2026.

Voor meer informatie omtrent dit prachtig project, kan u steeds Quinten van Immo Zone contacteren op 0485/02.48.04 of via mail op quinten@immo-zone.be

 

Energie


  • Beglazing: Onbekend

Financieel


Bijkomende info


Gebouw
Staat Nieuw
Faciliteiten
Keuken uitrusting Luxueus uitgerust
Perceel
P-score A
G-score A
Oriëntatie tuin Noordwest
Uitrusting
Rioolaansluiting Nee
Gasaansluiting Nee
Wateraansluiting Nee
Elektriciteitsaansluiting Nee
TV aansluiting Nee
Internetaansluiting Nee
Telefoonaansluiting Nee
Appartementsblok
Aantal wooneenheden 1

Een pand van


Immo Zone
Logo van makelaar: Immo Zone
thuis in uw regio
Wenst u uw pand zonder zorgen en aan de voordeligste voorwaarden te verkopen ? Of wilt u een pand te huur aanbieden ? Aantrekkelijke presentatie, online en offline campagnes, professioneel verloop van bezoeken. Immo Zone hecht belang aan een open en transparante communicatie. Wij doen net dat tikkeltje extra om u zoveel mogelijk te ontzorgen. Of bent u op zoek naar een Spaans vastgoed in zonzeker gebied? Ook daarvoor bent u aan het goede adres. Elke dag opnieuw zetten wij ons beste beentje voor om uw nieuwe thuis te vinden, uw panden te verhuren of te verkopen. Vastgoed is onze passie en daar maakt u als klant deel van uit.
Logo van makelaar: Immo Zone
Project foto {{pictureIndex}}

Project

9230 WETTEREN

Bezoek het pand

Vul jouw contactgegevens hieronder in en de makelaar contacteert je.

Leer meer over vastgoed

23 March 2026
Op Spotto zoeken als een pro: 10 slimme tips
21 March 2026
Hoeveel kan ik lenen om een huis te kopen?
01 March 2026
Wanneer heb ik een bouwvergunning of omgevingsvergunning nodig?
17 February 2026
Hoe breng ik een bod uit op een woning?