Centraal gelegen woning met veel potentieel
€ 299.000
Dendermondebaan 60 - 9240 Zele
Een pand van Altro Vastgoed Dendermonde
Jouw zoektocht
Overzicht
- 294 m² bewoonbaar
- 258 m² grond
- 4 Slaapkamer(s)
- 1 Badkamer(s)
- 1 Tuin
- 1 Garage(s)
Beschrijving
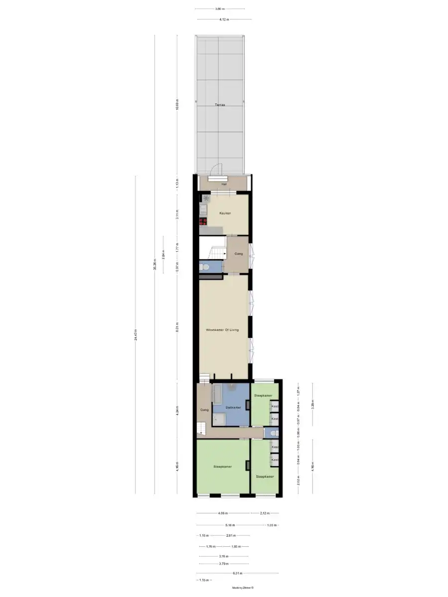
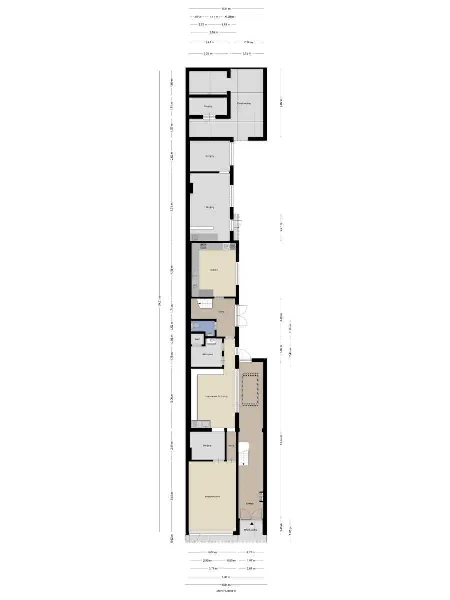
De indeling omvat onder meer een voormalige winkelruimte, een aparte werkruimte, verschillende ruime bergingen en opbergruimtes, twee keukens, een lichtrijke leefruimte en vier slaapkamers. Daarnaast is er een aparte garage en een ruim terras.
Dankzij de aanwezige ruimtes leent de woning zich voor uiteenlopende invullingen, zoals een zelfstandige activiteit, hobbyruimte of extra opslag, mits de nodige aanpassingen.
De woning heeft een EPC-score D en vraagt om een opfrissing en renovatie. Dit biedt de mogelijkheid om het geheel naar eigen wensen en hedendaagse normen te herwerken.
Een pand met veel ruimte en potentieel, gelegen in Zele, voor wie niet terugschrikt voor renovatiewerken en op zoek is naar flexibiliteit in gebruik.
Deze ruime woning in Zele was vroeger ingericht als beenhouwerij, wat vandaag nog duidelijk zichtbaar is in de indeling en de beschikbare ruimte. Hierdoor biedt het pand veel mogelijkheden voor wie op zoek is naar een woning met extra functies of een combinatie van wonen en werken. De woning is momenteel ingeschreven als woonhuis.
De indeling omvat onder meer een voormalige winkelruimte, een aparte werkruimte, verschillende ruime bergingen en opbergruimtes, twee keukens, een lichtrijke leefruimte en vier slaapkamers. Daarnaast is er een aparte garage en een ruim terras.
Dankzij de aanwezige ruimtes leent de woning zich voor uiteenlopende invullingen, zoals een zelfstandige activiteit, hobbyruimte of extra opslag, mits de nodige aanpassingen.
De woning heeft een EPC-score D en vraagt om een opfrissing en renovatie. Dit biedt de mogelijkheid om het geheel naar eigen wensen en hedendaagse normen te herwerken.
Een pand met veel ruimte en potentieel, gelegen in Zele, voor wie niet terugschrikt voor renovatiewerken en op zoek is naar flexibiliteit in gebruik.
Energie
![]() |
- EPC Certificaat: 20260115-0003776894-RES-1
- Energieverbruik: 321 kWh/m²/jaar
- Verwarming: Gas
- Beglazing: Standaard dubbel
Extra budget nodig voor je renovatie?

Financieel
| Prijs | |
|---|---|
| Kadastraal inkomen (niet geïndexeerd) | € 1.058 |
Berekening kosten
Je aankoopkosten? Die heb je snel berekend via de knop hieronder.
Bijkomende info
Gebouw
| Bouwjaar | 1932 |
|---|---|
| Staat | Te renoveren |
| Is beschermd | Nee |
| Bewoonbaar (m²) | 294 |
| Verdieping | 0 |
| Gevels | 2 |
| Gevelbreedte | 6.5 |
| Zolder | 1 |
| Kelder | 1 |
| Badkamers | 1 |
| Slaapkamers | 4 |
| Verdiepingen | 3 |
| Garages | 1 |
| Keukens | 2 |
| Leefruimtes | 0 |
| Kantoorruimtes | 1 |
| Parkeerplaatsen | 0 |
| Opslagruimtes | 0 |
| Toiletten | 0 |
Ruimtes
| Slaapkamer | 17 m² |
|---|---|
| Slaapkamer | 9 m² |
| Slaapkamer | 7 m² |
| Slaapkamer | 34.5 m² |
| Tuin | 258 m² |
Faciliteiten
| Beglazing | Standaard dubbel |
|---|---|
| Luiken | Nee |
| Primair verwarmingstype | Decentrale verwarming |
| Brandstof primaire verwarming | Gas |
| Primaire verwarming | Radiatoren |
| Brandstof type | Geen |
| Elektrisch keuringsattest | Nee |
| Septische tank | Nee |
Perceel
| Overstromingsgevoelig | Bepaald overstromingsgebied |
|---|---|
| P-score | C |
| G-score | C |
| Voorkeurrecht | Nee |
| Totale oppervlakte (m²) | 258 |
| Tuin oppervlakte (m²) | 258 |
| Oriëntatie tuin | Zuidwest |
| Oriëntatie terras | Zuidwest |
Vergunning
| Vergunning | Geen beschikbaar |
|---|---|
| Verkavelingsvergunning | Geen beschikbaar |
Uitrusting
| Parking | Ja |
|---|---|
| Garage | Ja |
| Kelder | Ja |
| Zolder | Ja |
| Opslagruimte | Nee |
| Tuin | Ja |
| Terras | Ja |
| Lift | Nee |
| Rioolaansluiting | Ja |
| Gasaansluiting | Ja |
| Wateraansluiting | Ja |
| Elektriciteitsaansluiting | Ja |
| Zonnepanelen | Nee |
| Zonneboiler | Nee |
| Thuisbatterij | Nee |
| Alarm | Nee |
| Zwembad | Nee |
| Sauna | Nee |
| Jacuzzi | Nee |
| Videofoon | Nee |
| Domotica | Nee |
| Regenwaterput | Nee |
| Ventilatie | Nee |


