Te renoveren woning of bouwgrond in groene rand Zele
€ 249.000
Schoolstraat 52 - 9240 Zele
Een pand van Altro Vastgoed Dendermonde
Overzicht
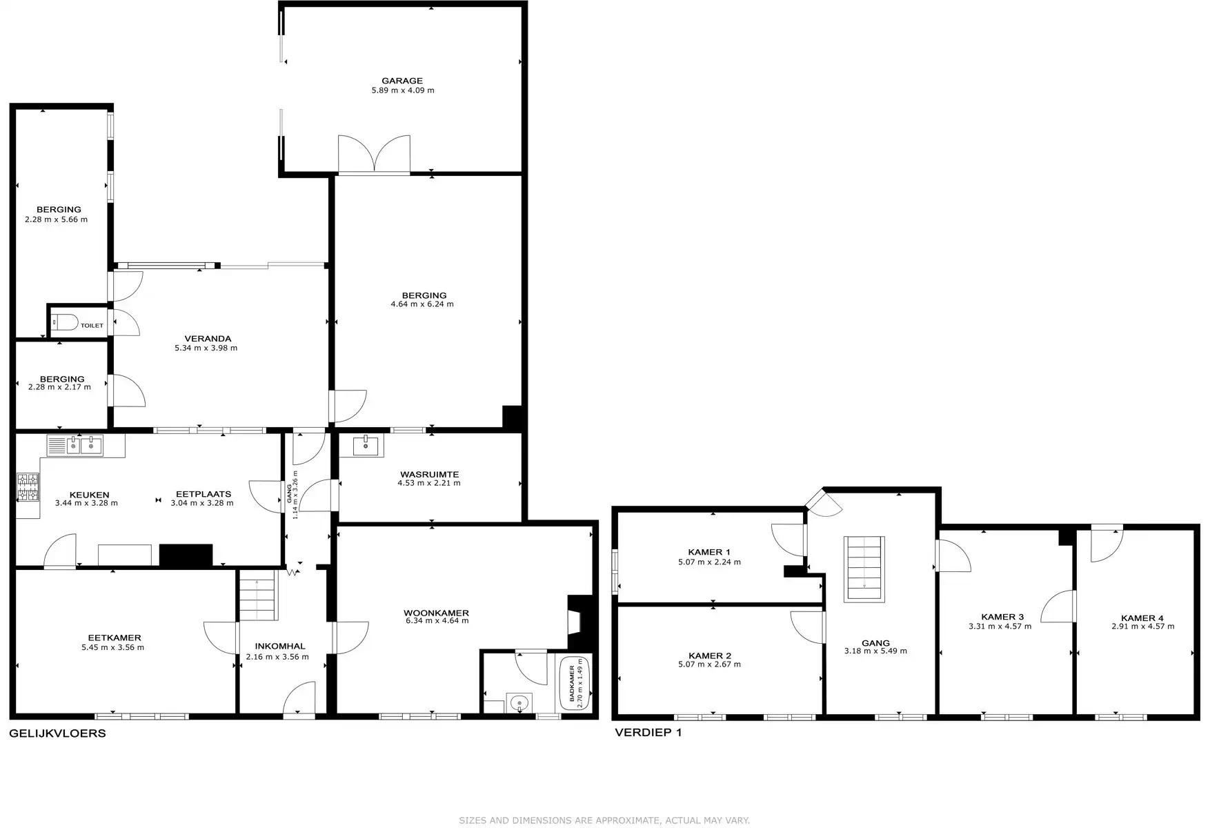
- 183 m² bewoonbaar
- 610 m² grond
- 4 Slaapkamer(s)
- 1 Badkamer(s)
- 1 Living(s)
- 1 Tuin
- 1 Garage(s)
Overstromingsgevaar gebouw
Overstromingsgevaar perceel
Beschrijving
De woning beschikt over een ruime garage en bijkomende bergruimte, wat zorgt voor extra comfort en praktische indeling. Verder zijn er vier volwaardige slaapkamers aanwezig die verschillende invullingen toelaten, afhankelijk van uw woonwensen.
Dankzij de gunstige ligging, het perceel met potentieel en de aanwezige nutsvoorzieningen – gas is reeds binnengebracht – vormt dit pand een uitstekende opportuniteit voor wie wil renoveren of heropbouwen op een mooie, residentiële locatie.
Woning met tal van mogelijkheden, ideaal voor een ruim gezin of perfect geschikt als bouwgrond voor een nieuw project. Deze te renoveren woning is gelegen in een zeer groene en rustige omgeving in de wijk Durmen, op wandelafstand van scholen en winkels, in de Schoolstraat.
De woning beschikt over een ruime garage en bijkomende bergruimte, wat zorgt voor extra comfort en praktische indeling. Verder zijn er vier volwaardige slaapkamers aanwezig die verschillende invullingen toelaten, afhankelijk van uw woonwensen.
Dankzij de gunstige ligging, het perceel met potentieel en de aanwezige nutsvoorzieningen – gas is reeds binnengebracht – vormt dit pand een uitstekende opportuniteit voor wie wil renoveren of heropbouwen op een mooie, residentiële locatie.
Energie
![]() |
- EPC Certificaat: 20260211-0003800447-RES-1
- Energieverbruik: 467 kWh/m²/jaar
- Verwarming: Gas
- Beglazing: Onbekend
Extra budget nodig voor je renovatie?

Financieel
| Prijs | |
|---|---|
| Kadastraal inkomen (niet geïndexeerd) | € 451 |
Berekening kosten
Je aankoopkosten? Die heb je snel berekend via de knop hieronder.
Bijkomende info
Gebouw
| Bouwjaar | 1874 |
|---|---|
| Renovatie jaar | 1980 |
| Staat | Te renoveren |
| Is beschermd | Nee |
| Bewoonbaar (m²) | 183 |
| Verdieping | 0 |
| Gevels | 3 |
| Zolder | 1 |
| Kelder | 0 |
| Badkamers | 1 |
| Slaapkamers | 4 |
| Verdiepingen | 2 |
| Garages | 1 |
| Keukens | 3 |
| Leefruimtes | 1 |
| Kantoorruimtes | 0 |
| Parkeerplaatsen | 0 |
| Opslagruimtes | 0 |
| Toiletten | 0 |
Ruimtes
| Keuken | 21 m² |
|---|---|
| Slaapkamer | 11.4 m² |
| Slaapkamer | 13.5 m² |
| Slaapkamer | 15 m² |
| Slaapkamer | 13 m² |
| Leefruimte | 29.5 m² |
| Keuken | 19.4 m² |
| Tuin | 610 m² |
Faciliteiten
| Luiken | Nee |
|---|---|
| Primair verwarmingstype | Decentrale verwarming |
| Brandstof primaire verwarming | Gas |
| Primaire verwarming | Radiatoren |
| Brandstof type | Geen |
| Elektrisch keuringsattest | Nee |
| Septische tank | Ja |
Perceel
| Diepte (m) | 50 |
|---|---|
| Breedte (m) | 15 |
| Overstromingsgevoelig | Overstromingsgevoelig (vastgesteld) |
| P-score | D |
| G-score | D |
| Voorkeurrecht | Nee |
| Totale oppervlakte (m²) | 610 |
| Tuin oppervlakte (m²) | 610 |
| Oriëntatie tuin | Noordwest |
| Oriëntatie terras | ZuidOost |
Vergunning
| Vergunning | Geen beschikbaar |
|---|---|
| Verkavelingsvergunning | Geen beschikbaar |
| Type gebied | Landelijk |
Uitrusting
| Parking | Ja |
|---|---|
| Garage | Ja |
| Kelder | Nee |
| Zolder | Ja |
| Opslagruimte | Nee |
| Tuin | Ja |
| Terras | Ja |
| Lift | Nee |
| Rioolaansluiting | Ja |
| Gasaansluiting | Ja |
| Wateraansluiting | Ja |
| Elektriciteitsaansluiting | Ja |
| Zonnepanelen | Nee |
| Zonneboiler | Nee |
| Thuisbatterij | Nee |
| Alarm | Nee |
| Zwembad | Nee |
| Sauna | Nee |
| Jacuzzi | Nee |
| Videofoon | Nee |
| Domotica | Nee |
| Regenwaterput | Nee |
| Ventilatie | Nee |



