Instapklare open bebouwing met zwembad in Zele
€ 620.000
Schoolstraat 71 - 9240 Zele
Een pand van Altro Vastgoed Dendermonde
Jouw zoektocht
Overzicht
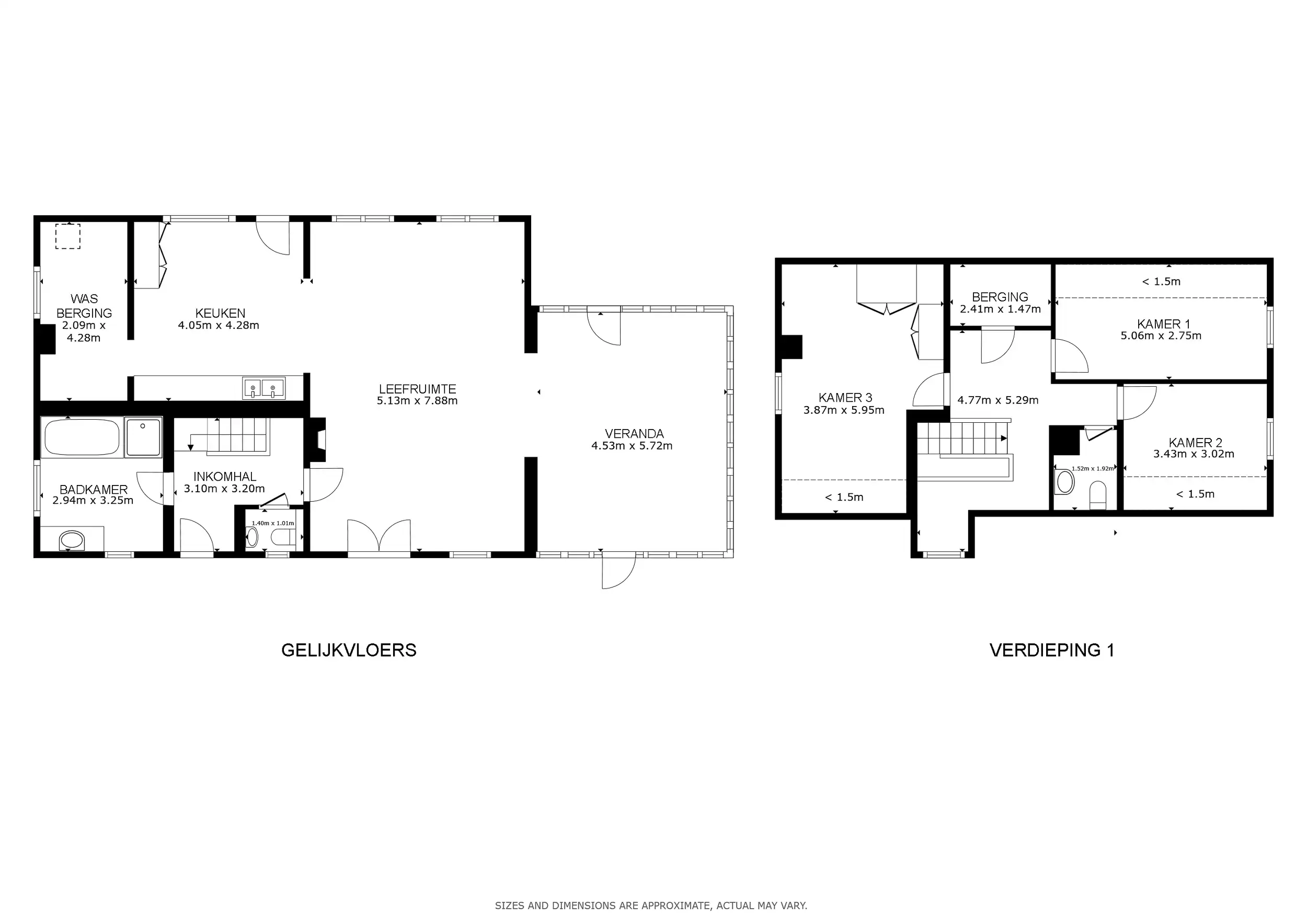
- 200 m² bewoonbaar
- 570 m² grond
- 3 Slaapkamer(s)
- 1 Badkamer(s)
- 1 Zwembad(en)
- 1 Tuin
- 1 Garage(s)
Beschrijving
Welkom in deze prachtige, volledig vernieuwde open bebouwing in de Schoolstraat 71 te Zele – een woning waar comfort, licht en kwaliteit naadloos samenkomen. Deze instapklare woning werd met veel zorg en oog voor detail recent gerenoveerd en biedt alles wat je zoekt voor hedendaags wonen. De lichtrijke leefruimtes creëren meteen een aangenaam gevoel van openheid, terwijl de rustige ligging en het vrije zicht zorgen voor een unieke woonbeleving. De moderne, volledig uitgeruste keuken vormt het hart van de woning en sluit aan op de ruime leefruimte. Voordeel van een ruime berging vlakbij de keuken. Vanuit de keuken heb je directe toegang tot een tweede terras – ideaal voor een ontspannen ontbijt in de ochtendzon.
Buiten geniet je volop van het verwarmde zwembad (warmtepomp), perfect voor lange zomerdagen in alle privacy.
Binnen vind je drie volwaardige slaapkamers en een comfortabele badkamer met zowel ligbad als douche. De woning beschikt bovendien over twee toiletten, wat het praktisch comfort verhoogt. Verwarming gebeurt via centrale verwarming op gas en met een gunstig EPC-label C zit je ook op vlak van energie goed. De aanwezige zonnepanelen dragen extra bij aan een lagere energiefactuur.
Tot slot is er een ruime garage aanwezig en werd de woning doorheen de jaren met de grootste zorg onderhouden.
Kortom: een uitzonderlijk aanbod voor wie op zoek is naar een instapklare, lichtrijke woning met alle hedendaagse luxe, in een rustige omgeving.
Welkom in deze prachtige, volledig vernieuwde open bebouwing in de Schoolstraat 71 te Zele – een woning waar comfort, licht en kwaliteit naadloos samenkomen.
Deze instapklare woning werd met veel zorg en oog voor detail recent gerenoveerd en biedt alles wat je zoekt voor hedendaags wonen. De lichtrijke leefruimtes creëren meteen een aangenaam gevoel van openheid, terwijl de rustige ligging en het vrije zicht zorgen voor een unieke woonbeleving. De moderne, volledig uitgeruste keuken vormt het hart van de woning en sluit aan op de ruime leefruimte. Voordeel van een ruime berging vlakbij de keuken. Vanuit de keuken heb je directe toegang tot een tweede terras – ideaal voor een ontspannen ontbijt in de ochtendzon.
Buiten geniet je volop van het verwarmde zwembad (warmtepomp), perfect voor lange zomerdagen in alle privacy.
Binnen vind je drie volwaardige slaapkamers en een comfortabele badkamer met zowel ligbad als douche. De woning beschikt bovendien over twee toiletten, wat het praktisch comfort verhoogt. Verwarming gebeurt via centrale verwarming op gas en met een gunstig EPC-label C zit je ook op vlak van energie goed. De aanwezige zonnepanelen dragen extra bij aan een lagere energiefactuur.
Tot slot is er een ruime garage aanwezig en werd de woning doorheen de jaren met de grootste zorg onderhouden.
Kortom: een uitzonderlijk aanbod voor wie op zoek is naar een instapklare, lichtrijke woning met alle hedendaagse luxe, in een rustige omgeving.
Interesse? Neem snel contact op voor een bezoek en laat je verrassen!
Energie
![]() |
- EPC Certificaat: 20260415-0003848376-RES-1
- Energieverbruik: 217 kWh/m²/jaar
- Verwarming: Gas
- Beglazing: Onbekend
Downloads
- OVAM (pdf)
- Kadastraal plan (pdf)
- Stedenbouw (pdf)
- Watertoets (pdf)
- ActaMaps (pdf)
- EPC (pdf)
- 5598-asbestattest (29).pdf (pdf)
- 5598-58245-Schoolstraat-71-9240-Zele-België-nl-67984_1.pdf (pdf)
Financieel
| Prijs | |
|---|---|
| Kadastraal inkomen (niet geïndexeerd) | € 1.321 |
Berekening kosten
Je aankoopkosten? Die heb je snel berekend via de knop hieronder.
Bijkomende info
Gebouw
| Bouwjaar | 1995 |
|---|---|
| Renovatie jaar | 2016 |
| Staat | Goed onderhouden |
| Is beschermd | Nee |
| Bewoonbaar (m²) | 200 |
| Verdieping | 0 |
| Gevels | 4 |
| Zolder | 0 |
| Kelder | 0 |
| Badkamers | 1 |
| Slaapkamers | 3 |
| Verdiepingen | 2 |
| Garages | 1 |
| Keukens | 0 |
| Leefruimtes | 0 |
| Kantoorruimtes | 0 |
| Parkeerplaatsen | 2 |
| Opslagruimtes | 0 |
| Toiletten | 0 |
Faciliteiten
| Luiken | Nee |
|---|---|
| Primair verwarmingstype | Decentrale verwarming |
| Brandstof primaire verwarming | Gas |
| Primaire verwarming | Radiatoren |
| Brandstof type | Geen |
| Elektrisch keuringsattest | Nee |
| Septische tank | Ja |
Perceel
| Diepte (m) | 40 |
|---|---|
| Breedte (m) | 17 |
| Overstromingsgevoelig | Geen |
| P-score | C |
| G-score | A |
| Voorkeurrecht | Nee |
| Totale oppervlakte (m²) | 570 |
| Oriëntatie tuin | Zuidwest |
| Oriëntatie terras | Zuidwest |
| Administrative bestuursmaatregelen | Nee |
Vergunning
| Vergunning | Vergunning beschikbaar |
|---|---|
| Verkavelingsvergunning | Geen beschikbaar |
Uitrusting
| Parking | Ja |
|---|---|
| Garage | Ja |
| Kelder | Nee |
| Zolder | Nee |
| Opslagruimte | Nee |
| Tuin | Ja |
| Terras | Ja |
| Lift | Nee |
| Rioolaansluiting | Ja |
| Gasaansluiting | Ja |
| Wateraansluiting | Ja |
| Elektriciteitsaansluiting | Ja |
| Zonnepanelen | Ja |
| Zonneboiler | Nee |
| Thuisbatterij | Nee |
| Alarm | Nee |
| Zwembad | Ja |
| Sauna | Nee |
| Jacuzzi | Nee |
| Videofoon | Nee |
| Domotica | Nee |
| Regenwaterput | Nee |
| Ventilatie | Nee |
