Nieuw
Open bebouwing op fantastische ligging in Zele
€ 484.000
Een pand van Altro Vastgoed Dendermonde
Overzicht
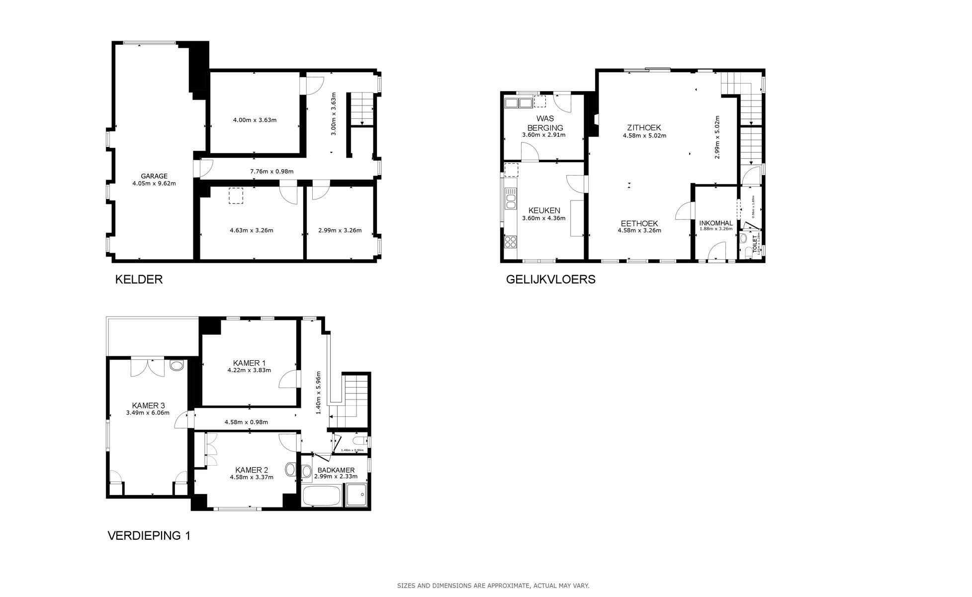
- 234 m² bewoonbaar
- 816 m² grond
- 4 Slaapkamer(s)
- 1 Badkamer(s)
- 2 Toilet(ten)
- 1 Tuin
Beschrijving
Deze ruime open bebouwing uit 1966 is een woning met karakter, gebouwd met kwalitatieve en duurzame materialen en tot vandaag uitstekend onderhouden. Ze biedt een bijzonder solide basis voor wie op zoek is naar ruimte, functionaliteit en toekomstmogelijkheden.
De woning beschikt over vier volwaardige slaapkamers, een ruime zolder die extra uitbreidings- of hobbyruimte kan bieden, en is volledig onderkelderd. Deze kelderverdieping biedt tal van mogelijkheden: opslag, werkruimte, hobbyruimte of zelfs een praktijk aan huis.
De woning is zeer functioneel ingedeeld en uitermate degelijk gebouwd, wat renovatie tot een meerwaarde maakt in plaats van een noodzaak. De verzorgde staat van het pand toont aan dat er steeds met zorg werd omgegaan met deze woning.
De ligging is een absolute troef: gelegen in de Pieter Gorusstraat te Zele, in een rustige en aangename buurt met een vlotte verbinding naar Dendermonde en de E17. Bovendien bevindt de woning zich vlakbij de Schelde, ideaal voor wie houdt van wandelen, fietsen en groen in de nabije omgeving.
Kortom, een solide, ruime en veelzijdige woning op een uitstekende locatie, met veel potentieel voor wie er zijn eigen thuis van wil maken.
Aarzel niet en plan vandaag je bezoek in op onze bezoekdag op woensdag 14 januari, of zaterdag 17 januari (op afspraak)!
De woning beschikt over vier volwaardige slaapkamers, een ruime zolder die extra uitbreidings- of hobbyruimte kan bieden, en is volledig onderkelderd. Deze kelderverdieping biedt tal van mogelijkheden: opslag, werkruimte, hobbyruimte of zelfs een praktijk aan huis.
De woning is zeer functioneel ingedeeld en uitermate degelijk gebouwd, wat renovatie tot een meerwaarde maakt in plaats van een noodzaak. De verzorgde staat van het pand toont aan dat er steeds met zorg werd omgegaan met deze woning.
De ligging is een absolute troef: gelegen in de Pieter Gorusstraat te Zele, in een rustige en aangename buurt met een vlotte verbinding naar Dendermonde en de E17. Bovendien bevindt de woning zich vlakbij de Schelde, ideaal voor wie houdt van wandelen, fietsen en groen in de nabije omgeving.
Kortom, een solide, ruime en veelzijdige woning op een uitstekende locatie, met veel potentieel voor wie er zijn eigen thuis van wil maken.
Aarzel niet en plan vandaag je bezoek in op onze bezoekdag op woensdag 14 januari, of zaterdag 17 januari (op afspraak)!
Deze ruime open bebouwing uit 1966 is een woning met karakter, gebouwd met kwalitatieve en duurzame materialen en tot vandaag uitstekend onderhouden. Ze biedt een bijzonder solide basis voor wie op zoek is naar ruimte, functionaliteit en toekomstmogelijkheden.
De woning beschikt over vier volwaardige slaapkamers, een ruime zolder die extra uitbreidings- of hobbyruimte kan bieden, en is volledig onderkelderd. Deze kelderverdieping biedt tal van mogelijkheden: opslag, werkruimte, hobbyruimte of zelfs een praktijk aan huis.
De woning is zeer functioneel ingedeeld en uitermate degelijk gebouwd, wat renovatie tot een meerwaarde maakt in plaats van een noodzaak. De verzorgde staat van het pand toont aan dat er steeds met zorg werd omgegaan met deze woning.
De ligging is een absolute troef: gelegen in de Pieter Gorusstraat te Zele, in een rustige en aangename buurt met een vlotte verbinding naar Dendermonde en de E17. Bovendien bevindt de woning zich vlakbij de Schelde, ideaal voor wie houdt van wandelen, fietsen en groen in de nabije omgeving.
Kortom, een solide, ruime en veelzijdige woning op een uitstekende locatie, met veel potentieel voor wie er zijn eigen thuis van wil maken.
Aarzel niet en plan vandaag je bezoek in op onze bezoekdag op woensdag 14 januari, of zaterdag 17 januari (op afspraak)!
Kortom, een solide, ruime en veelzijdige woning op een uitstekende locatie, met veel potentieel voor wie er zijn eigen thuis van wil maken.
Aarzel niet en plan vandaag je bezoek in op onze bezoekdag op 9 januari (op afspraak)!
De woning beschikt over vier volwaardige slaapkamers, een ruime zolder die extra uitbreidings- of hobbyruimte kan bieden, en is volledig onderkelderd. Deze kelderverdieping biedt tal van mogelijkheden: opslag, werkruimte, hobbyruimte of zelfs een praktijk aan huis.
De woning is zeer functioneel ingedeeld en uitermate degelijk gebouwd, wat renovatie tot een meerwaarde maakt in plaats van een noodzaak. De verzorgde staat van het pand toont aan dat er steeds met zorg werd omgegaan met deze woning.
De ligging is een absolute troef: gelegen in de Pieter Gorusstraat te Zele, in een rustige en aangename buurt met een vlotte verbinding naar Dendermonde en de E17. Bovendien bevindt de woning zich vlakbij de Schelde, ideaal voor wie houdt van wandelen, fietsen en groen in de nabije omgeving.
Kortom, een solide, ruime en veelzijdige woning op een uitstekende locatie, met veel potentieel voor wie er zijn eigen thuis van wil maken.
Aarzel niet en plan vandaag je bezoek in op onze bezoekdag op woensdag 14 januari, of zaterdag 17 januari (op afspraak)!
Kortom, een solide, ruime en veelzijdige woning op een uitstekende locatie, met veel potentieel voor wie er zijn eigen thuis van wil maken.
Aarzel niet en plan vandaag je bezoek in op onze bezoekdag op 9 januari (op afspraak)!
Energie
![]() |
- EPC Certificaat: 20250828-0003673737
- Energieverbruik: 557 kWh/m²/jaar
Let op, de renovatieverplichting in Vlaanderen verplicht de koper om deze woning na aankoop te renoveren tot een betere energieprestatie. Lees er alles over in dit artikel
Extra budget nodig voor je renovatie?
De overheid helpt je dit pand energetisch te renoveren! Hieronder zie je het premiebedrag dat je mogelijks van de overheid krijgt.
Het huidige EPC-label is:

Op de kaart

Financieel
| Prijs | |
|---|---|
| Kadastraal inkomen (niet geïndexeerd) | € 1.291 |
Berekening kosten
Je aankoopkosten? Die heb je snel berekent via de knop hieronder.
Bijkomende info
Gebouw
| Bouwjaar | 1966 |
|---|---|
| Staat | Goed onderhouden |
| Bewoonbaar (m²) | 234 |
| Gevels | 4 |
| Gevelbreedte | 12 |
| Badkamers | 1 |
| Slaapkamers | 4 |
| Verdiepingen | 3 |
| Parkeerplaatsen | 0 |
| Doucheruimtes | 1 |
| Toiletten | 2 |
Faciliteiten
| Type vloer | |
|---|---|
| Keuken uitrusting | Goed uitgerust |
| Elektrisch keuringsattest | Nee |
Perceel
| Overstromingsgevoelig | Geen |
|---|---|
| P-score | C |
| G-score | C |
| Voorkeurrecht | Nee |
| Totale oppervlakte (m²) | 816 |
| Tuin oppervlakte (m²) | 816 |
| Oriëntatie terras | Zuidwest |
Vergunning
| Vergunning | Vergunning beschikbaar |
|---|---|
| Verkavelingsvergunning | Geen beschikbaar |
| Bouwovertreding | Geen |
| Bouwovertreding dagvaardiging | Geen |
| Type gebied | Landelijk |
Uitrusting
| Geschikt voor rolstoelgebruikers | Nee |
|---|---|
| Parking | Ja |
| Garage | Ja |
| Tuin | Ja |
| Terras | Ja |
| Lift | Nee |
| Gasaansluiting | Ja |
| Wateraansluiting | Ja |
| Elektriciteitsaansluiting | Ja |
| TV aansluiting | Ja |
| Zwembad | Nee |
| Zwemvijver | Nee |
Een pand van
Altro Vastgoed Dendermonde
Wij verkopen uw vastgoed, anders én beter!
Bij Altro Vastgoed vinden we een persoonlijke aanpak erg belangrijk, hierbij stellen we de klant steeds centraal en staan we hem/haar bij in het complexe proces van verkopen, aankopen, verhuren en huren van vastgoed. We beschikken over een kwalitatief kantorennetwerk in Vlaanderen en Brussel met een sterke, lokale verankering.
Leer meer over vastgoed
24 November 2025
Uitgezocht voor jouw gemeente: Hoeveel stijgt de waarde van je woning door een renovatie?
22 October 2025
Hoeveel kan ik lenen om een huis te kopen?
11 June 2025
Huis kopen met bouwovertreding? Dit moet je weten
11 May 2025



