Bouwgrond voor halfopen bebouwing in rustige wijk
€ 180.000
Een pand van Albert Wetteren
Favoriet
Jouw zoektocht
Jouw scoretabel voor dit pand
Aan het laden...
Jouw geplande bezichtigingen
Aan het laden...
Overzicht
- 506 m² grond
Beschrijving
Ben je op zoek naar een rustig gelegen bouwgrond om jouw droomwoning te realiseren? Zoek niet verder! Deze bouwgrond te Pruytenshof 45 heeft alles wat je zoekt.
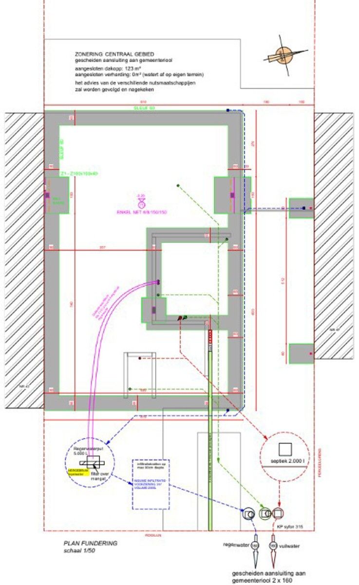
Mogelijkheden:
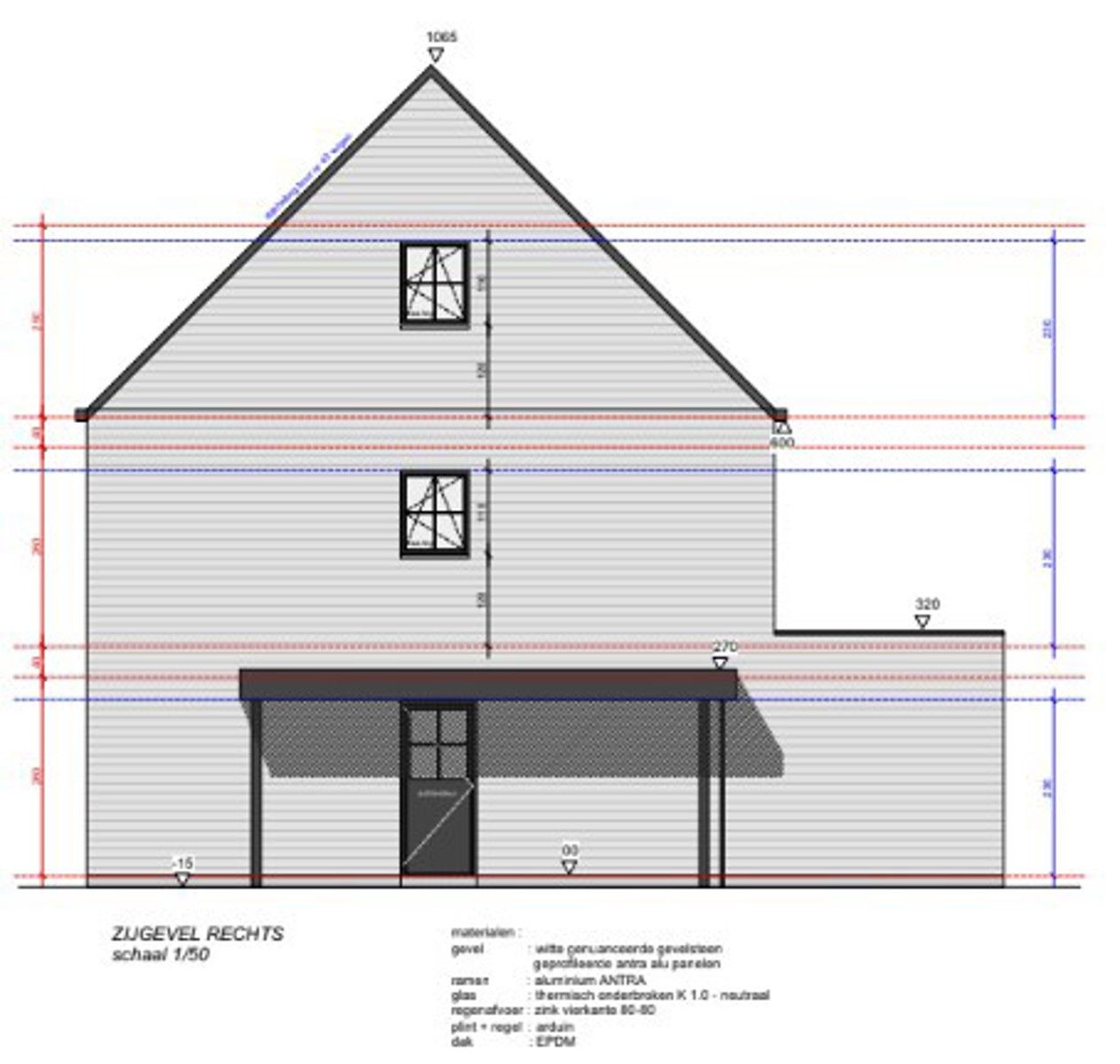
- 3m zijdelingse ruimte
- Nokhoogte van 10,5m
- Oprichten van een halfopen bebouwing met carport
- 2 bouwlagen (8m breed op 12m diep op gelijkvloers en 8m breed op 9m diep op de eerste verdieping) + zolder
Bijzonderheden:
- Regenwaterput 5000l
- Rustige wijk nabij het Dorp van Serskamp
- Bouwvergunning verlopen (project vergund in 2023)
Mis deze kans niet en vraag vandaag nog informatie aan via nico.soetaert@albert.immo of 0496 46 80 03.
Bij Albert kom je thuis
Mogelijkheden:
- 3m zijdelingse ruimte
- Nokhoogte van 10,5m
- Oprichten van een halfopen bebouwing met carport
- 2 bouwlagen (8m breed op 12m diep op gelijkvloers en 8m breed op 9m diep op de eerste verdieping) + zolder
Bijzonderheden:
- Regenwaterput 5000l
- Rustige wijk nabij het Dorp van Serskamp
- Bouwvergunning verlopen (project vergund in 2023)
Mis deze kans niet en vraag vandaag nog informatie aan via nico.soetaert@albert.immo of 0496 46 80 03.
Bij Albert kom je thuis
Energie
Op de kaart

Financieel
| Prijs |
|---|
Berekening kosten
Je aankoopkosten? Die heb je snel berekend via de knop hieronder.
Bijkomende info
Perceel
| Overstromingsgevoelig | Geen |
|---|---|
| P-score | A |
| Voorkeurrecht | Nee |
| Totale oppervlakte (m²) | 506 |
Vergunning
| Vergunning | Geen beschikbaar |
|---|---|
| Verkavelingsvergunning | Geen beschikbaar |
Een pand van
Albert Wetteren
Albert is jouw no-nonsense partner in residentieel vastgoed en dit vanuit onze 10 lokaal verankerde kantoren in Vlaanderen.
Bij ons kom je thuis!
Albert is jouw no-nonsense partner in residentieel vastgoed en dit vanuit onze 14 lokaal verankerde kantoren in Vlaanderen!
Of het nu aankoop, verkoop, huur, verhuur of andere vastgoed gerelateerde vragen betreft, ons ervaren en gepassioneerd team van experten staat voor je klaar!
Bij Albert geen overhaaste aanpak maar een oprechte investering in elke klant, elk dossier, elke keer opnieuw. We always go the extra mile zodat we een kwalitatief resultaat en persoonlijke service kunnen bieden en garanderen.
Benieuwd wat jouw eigendom waard is? Bij Albert kan je terecht voor een gratis en vrijblijvende schatting in één van onze kantoren.
Aarzel niet en contacteer ons vandaag nog geheel vrijblijvend via familie@albert.immo of +32468245245. Wij ondersteunen en ontzorgen jou graag op een transparante, authentieke en persoonlijke wijze!
Leer meer over vastgoed
Nieuw
23 March 2026
Op Spotto zoeken als een pro: 10 slimme tips
Nieuw
21 March 2026
Hoeveel kan ik lenen om een huis te kopen?
01 March 2026
Wanneer heb ik een bouwvergunning of omgevingsvergunning nodig?
17 February 2026