Nieuw
Handelspand met uitzonderlijke visibiliteit & ruim appartement – Toplocatie
€ 790.000
Een pand van Berno Vastgoed
Favoriet
Jouw zoektocht
Jouw scoretabel voor dit pand
Aan het laden...
Overzicht
- 300 m² bewoonbaar
- 276 m² grond
- 3 Slaapkamer(s)
- 1 Badkamer(s)
- 3 Toilet(ten)
- 1 Garage(s)
Overstromingsgevaar gebouw
Overstromingsgevaar perceel
Beschrijving
Handelspand met uitzonderlijke visibiliteit & ruim appartement – Toplocatie
📐 Gelijkvloerse handelsoppervlakte: ca. 300 m²
🏠 Appartement: zeer ruim duplex met 3 slaapkamers + extra ruimtes
🏗️ Bestemming: handel + wonen
Op een toplocatie in het centrum van Lebbeke met sterke visibiliteit en passage bevindt zich dit handelpand met een gelijkvloerse oppervlakte van 300 m². Dankzij de brede gevel en commerciële uitstraling is dit een ideale opportuniteit voor diverse activiteiten zoals showroom, winkel, praktijkruimte of dienstverlening.
Boven het handelspand bevindt zich een zeer ruim duplex appartement, dat volledig kan worden verbonden met het commerciële deel, maar ook afzonderlijk kan worden verhuurd—waardoor dit pand uiterst interessant is voor zowel eigen gebruik als investering.
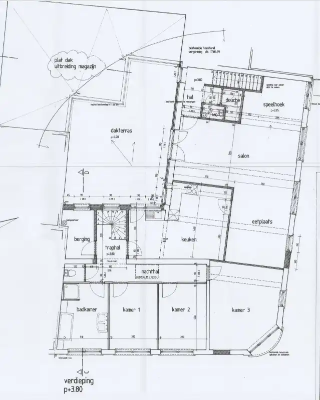
Het appartement biedt op de eerste verdieping een ruime leefruimte, een aparte keuken met directe toegang tot het zonnige dakterras, 3 slaapkamers en een badkamer.
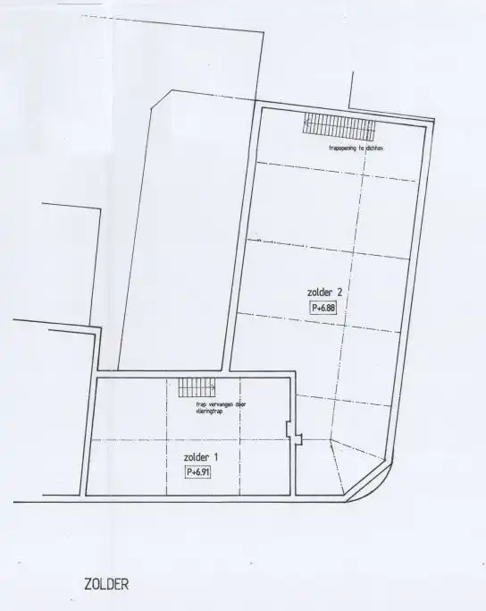
De tweede verdieping beschikt over 2 polyvalente ruimtes en een berggedeelte, dat naar eigen wens kan worden ingericht als extra kamers, hobbyruimte, bureauruimte of stockage.
Met zijn flexibele indeling, enorme oppervlaktes en strategische ligging is dit pand een unieke kans voor ondernemers, investeerders of wie wonen en werken wil combineren.
Wenst u meer info?
Contacteer Peggy via 0478/37.00.82 of peggy@berno.be
📐 Gelijkvloerse handelsoppervlakte: ca. 300 m²
🏠 Appartement: zeer ruim duplex met 3 slaapkamers + extra ruimtes
🏗️ Bestemming: handel + wonen
Op een toplocatie in het centrum van Lebbeke met sterke visibiliteit en passage bevindt zich dit handelpand met een gelijkvloerse oppervlakte van 300 m². Dankzij de brede gevel en commerciële uitstraling is dit een ideale opportuniteit voor diverse activiteiten zoals showroom, winkel, praktijkruimte of dienstverlening.
Boven het handelspand bevindt zich een zeer ruim duplex appartement, dat volledig kan worden verbonden met het commerciële deel, maar ook afzonderlijk kan worden verhuurd—waardoor dit pand uiterst interessant is voor zowel eigen gebruik als investering.
Het appartement biedt op de eerste verdieping een ruime leefruimte, een aparte keuken met directe toegang tot het zonnige dakterras, 3 slaapkamers en een badkamer.
De tweede verdieping beschikt over 2 polyvalente ruimtes en een berggedeelte, dat naar eigen wens kan worden ingericht als extra kamers, hobbyruimte, bureauruimte of stockage.
Met zijn flexibele indeling, enorme oppervlaktes en strategische ligging is dit pand een unieke kans voor ondernemers, investeerders of wie wonen en werken wil combineren.
Wenst u meer info?
Contacteer Peggy via 0478/37.00.82 of peggy@berno.be
Energie
![]() |
- E-peil: E0
- Beglazing: Onbekend
Op de kaart

Financieel
| Prijs |
|---|
Berekening kosten
Je aankoopkosten? Die heb je snel berekend via de knop hieronder.
Bijkomende info
Gebouw
| Staat | Goed onderhouden |
|---|---|
| Bewoonbaar (m²) | 300 |
| Badkamers | 1 |
| Slaapkamers | 3 |
| Verdiepingen | 0 |
| Garages | 1 |
| Parkeerplaatsen | 0 |
| Toiletten | 3 |
Faciliteiten
| Septische tank | Nee |
|---|
Perceel
| P-score | D |
|---|---|
| G-score | D |
| Totale oppervlakte (m²) | 276 |
| Bebouwde oppervlakte (m²) | 0 |
| Oppervlakte terras (m²) | 0 |
Vergunning
| Verkavelingsvergunning | Geen beschikbaar |
|---|
Uitrusting
| Investeringspand | Nee |
|---|---|
| Parking | Nee |
| Garage | Ja |
| Opslagruimte | Ja |
| Terras | Ja |
| Lift | Nee |
| Rioolaansluiting | Ja |
| Gasaansluiting | Nee |
| Wateraansluiting | Ja |
| Elektriciteitsaansluiting | Ja |
| Internetaansluiting | Nee |
| Telefoonaansluiting | Nee |
| Zonnepanelen | Nee |
| Zonneboiler | Nee |
| Alarm | Nee |
| Videofoon | Nee |
| Grondwaterput | Nee |
Appartementsblok
| Lift | Nee |
|---|---|
| Intercom | Nee |
Een pand van
Berno Vastgoed
Berno Vastgoed
Vastgoed in vertrouwen
Stationsstraat 18
Leer meer over vastgoed
04 January 2026
Zoek je een kantoor, een magazijn of… iets ertussenin? Bedrijfsvastgoed uitgelegd
05 November 2024
Bedrijfsvastgoed in transitie: ontdek de toekomst van werkplekken
16 October 2024
Opbrengsteigendom: een slim pad naar passief inkomen en vermogensgroei
09 September 2024
