Nieuw
Ruime woning, rustig gelegen - Lot 3 (Links)
€ 429.000
Een pand van Immo-Desk
Favoriet
Jouw zoektocht
Jouw scoretabel voor dit pand
Aan het laden...
Jouw geplande bezichtigingen
Aan het laden...
Overzicht
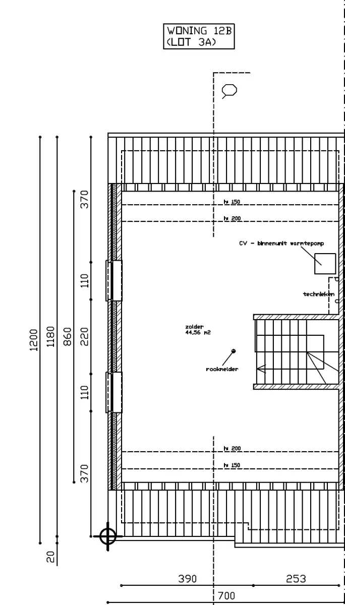
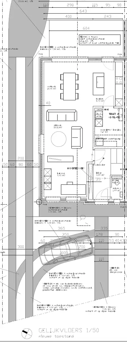
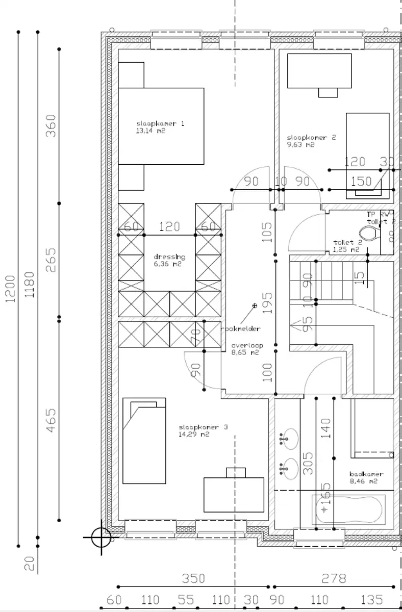
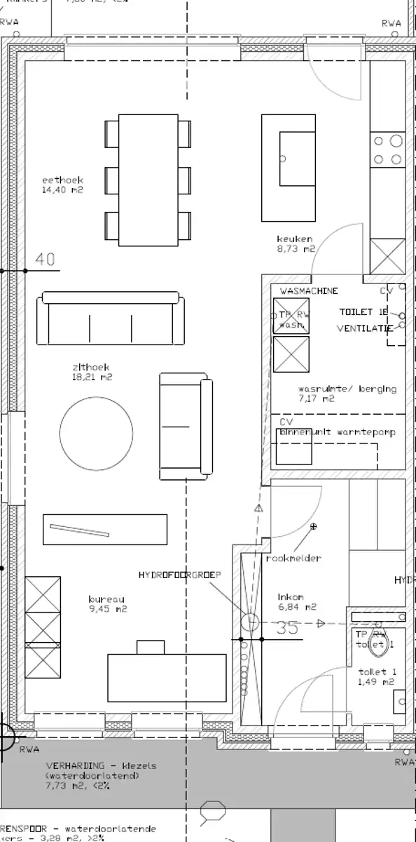
- 210 m² bewoonbaar
- 889 m² grond
- 3 Slaapkamer(s)
- 1 Badkamer(s)
- 2 Toilet(ten)
- 1 Tuin
Beschrijving
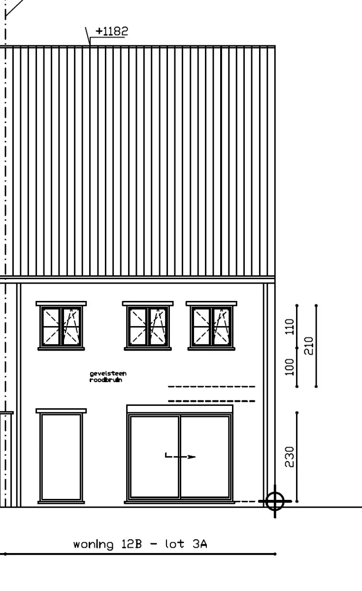
Landelijke eengezinswoning gelegen in een rustige, residentiële omgeving. Deze halfopen bebouwing wordt casco geleverd: in ruwbouw, water -en winddicht. De grond heeft een oppervlakte van ca 889 m² (Lot 3 – Links bij vooraanzicht). Het gelijkvloers omvat een ruime inkomhal met gastentoilet, grote leefruimte met eet-en zithoek, bureau, keuken en berging. Op de 1ste verdieping is er een ruime nachthal, 3 slaapkamers, waarvan de master bedroom telkens met dressing, een apart toilet en badkamer (met ruimte voor zowel bad als douche). De ruime zolderverdieping is bereikbaar via een vaste trap en leent zich tot extra slaapkamer/hobbyruimte. Buiten is er nog een aangename tuin. Oplevering tweede helft 2026.
Prijzen excl. Registratie op de grond, 21% BTW op de constructie en notariskosten. Casco-staat. De afwerking van de woning (zoals technieken, vloeren, binnendeuren, keuken, sanitair, …) kan reeds vanaf 115.000€ excl. BTW uitgevoerd worden door derde partijen/aannemers.
Prijzen excl. Registratie op de grond, 21% BTW op de constructie en notariskosten. Casco-staat. De afwerking van de woning (zoals technieken, vloeren, binnendeuren, keuken, sanitair, …) kan reeds vanaf 115.000€ excl. BTW uitgevoerd worden door derde partijen/aannemers.
Energie
![]() |
- Energieverbruik: 9 kWh/m²/jaar
Op de kaart

Financieel
| Prijs |
|---|
Bijkomende info
Gebouw
| Bouwjaar | 2026 |
|---|---|
| Bewoonbaar (m²) | 210 |
| Gevels | 3 |
| Badkamers | 1 |
| Slaapkamers | 3 |
| Parkeerplaatsen | 2 |
| Toiletten | 2 |
Faciliteiten
| Type vloer |
|---|
Perceel
| Overstromingsgevoelig | Geen |
|---|---|
| P-score | A |
| Voorkeurrecht | Nee |
| Totale oppervlakte (m²) | 889 |
| Tuin oppervlakte (m²) | 0 |
Vergunning
| Vergunning | Vergunning beschikbaar |
|---|---|
| Verkavelingsvergunning | Vergunning beschikbaar |
| Bouwovertreding | Geen |
| Bouwovertreding dagvaardiging | Geen |
Uitrusting
| Parking | Ja |
|---|---|
| Garage | Nee |
| Thuiskantoor | Ja |
| Zolder | Ja |
| Tuin | Ja |
| Terras | Nee |
| Lift | Nee |
| Zwembad | Nee |
| Zwemvijver | Nee |
Een pand van
Immo-Desk
Welkom bij Immo-Desk!
Wij zijn gespecialiseerd in de verkoop en verhuur van bestaande woningen en appartementen en de verkoop van nieuwbouwprojecten en projectgronden. Je kan bij ons ook terecht voor een gratis waardebepaling van je eigendom.
Wat ook je plannen zijn, als erkend makelaar streven we naar de hoogste klantentevredenheid. We kennen het juridisch kader en geven graag een antwoord op al jouw vragen. Je verkoopt jouw woning of zoekt een nieuwe woonst? Elke klant kan op onze professionele hulp rekenen. Contacteer ons gerust op 0498/91 12 34.
7307925
Leer meer over vastgoed
23 March 2026
Op Spotto zoeken als een pro: 10 slimme tips
21 March 2026
Hoeveel kan ik lenen om een huis te kopen?
01 March 2026
Wanneer heb ik een bouwvergunning of omgevingsvergunning nodig?
17 February 2026
