Instapklare, halfopen bebouwing, met 6 slaapkamers, op 329m² grond te Overmere.
€ 389.000
Een pand van Van Hoye Vastgoed
Jouw zoektocht
Overzicht
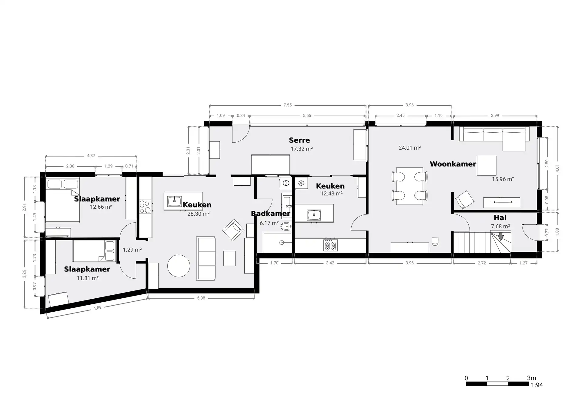
- 196 m² bewoonbaar
- 329 m² grond
- 6 Slaapkamer(s)
- 3 Badkamer(s)
- 3 Toilet(ten)
- 1 Garage(s)
Beschrijving
Instapklare, halfopen bebouwing, met 6 slaapkamers, op 329m² grond te Overmere.
Halfopen bebouwing, 1 eigendom, 1 adres, plaats voor 3 gezinnen!
Momenteel is de woning ingedeeld in drie aparte wooneenheden, elk met eigen leefruimtes, keukens, badkamers en voorzieningen.
De volledige woning werd grotendeels gerenoveerd en ingericht in 2024 -2025.
De woning biedt plaats voor drie gezinnen en is als volgt ingedeeld:
1e woonentiteit (straatzijde):
Via de inkomhal betreedt u de eerste woonentiteit. Op het gelijkvloers bevindt zich een lichtrijke leefruimte met een volledig uitgeruste keuken met kookplaat, dampkap, open en vaatwasmachine. De trap in de inkomhal leidt naar de eerste verdieping, waar drie slaapkamers zijn (1 kleinere kamer), evenals een badkamer voorzien van toilet, douche en een enkel lavabomeubel. Via een vaste trap is tevens de zolderverdieping toegankelijk. (Mogelijk om meerdere kamers in te richten)
2e woonentiteit (achteraan):
Deze woonentiteit is bereikbaar via de veranda aan de zijkant van de woning en bevindt zich op het gelijkvloers aan de achterzijde van het gebouw. Ze omvat een ruime leefruimte met een volledig uitgeruste open keuken met eiland, een badkamer met toilet, douche en een enkele lavabo, evenals twee volwaardige slaapkamers.
3e woonentiteit (garage):
Deze is ondergebracht in de oorspronkelijke garage. Ze beschikt over een leefruimte met ingerichte keuken, één slaapkamer en een badkamer uitgerust met toilet, douche en een enkel lavabomeubel.
Comfort: Gemeenschappelijke oprit/tuin, EPC D, score 305 kWh/(m²jaar) dus geen renovatieplicht!, CV met condensatieketel (2021), HR-beglazing, EK conform, niet-asbestveilig (dak), 7cm spouwmuurisolatie,
Meer info of een bezoek? Bel Jeannico op 0477 34 89 03.
Energie
![]() |
- Energieverbruik: 305 kWh/m²/jaar
- E-peil: E0
- Beglazing: Hoog efficient driedubbel
Extra budget nodig voor je renovatie?

Op de kaart

Financieel
| Prijs | |
|---|---|
| Kadastraal inkomen (niet geïndexeerd) | € 939 |
| Kadastraal inkomen (geïndexeerd) | € 0 |
Berekening kosten
Je aankoopkosten? Die heb je snel berekend via de knop hieronder.
Bijkomende info
Gebouw
| Bouwjaar | 1964 |
|---|---|
| Staat | Goed onderhouden |
| Bouwcertificaat | Nee |
| Bewoonbaar (m²) | 196 |
| Verdieping | 2 |
| Gevelbreedte | 6.6 |
| Badkamers | 3 |
| Slaapkamers | 6 |
| Verdiepingen | 0 |
| Garages | 1 |
| Parkeerplaatsen | 0 |
| Doucheruimtes | 0 |
| Toiletten | 3 |
Faciliteiten
| Keuken uitrusting | Luxueus uitgerust |
|---|---|
| Materiaal ramenomlijstingen | PVC |
| Beglazing | Hoog efficient driedubbel |
| Elektrisch keuringsattest | Ja |
Perceel
| Diepte (m) | 28 |
|---|---|
| Breedte (m) | 11 |
| Overstromingsgevoelig | Geen |
| P-score | A |
| G-score | A |
| Voorkeurrecht | Nee |
| Totale oppervlakte (m²) | 329 |
| Bebouwde oppervlakte (m²) | 225 |
| Tuin oppervlakte (m²) | 0 |
| Oppervlakte terras (m²) | 0 |
| Oriëntatie tuin | Oost |
Vergunning
| Vergunning | Vergunning beschikbaar |
|---|---|
| Verkavelingsvergunning | Vergunning beschikbaar |
Uitrusting
| Investeringspand | Nee |
|---|---|
| Geschikt voor praktijk | Nee |
| Parking | Nee |
| Garage | Ja |
| Thuiskantoor | Nee |
| Kelder | Nee |
| Zolder | Ja |
| Tuin | Nee |
| Terras | Nee |
| Lift | Nee |
| Rioolaansluiting | Nee |
| Gasaansluiting | Nee |
| Wateraansluiting | Nee |
| Elektriciteitsaansluiting | Nee |
| TV aansluiting | Nee |
| Internetaansluiting | Nee |
| Telefoonaansluiting | Nee |


