Jouw zoektocht
Jouw scoretabel voor dit pand
Aan het laden...
Jouw geplande bezichtigingen
Aan het laden...
Overzicht
Beschrijving
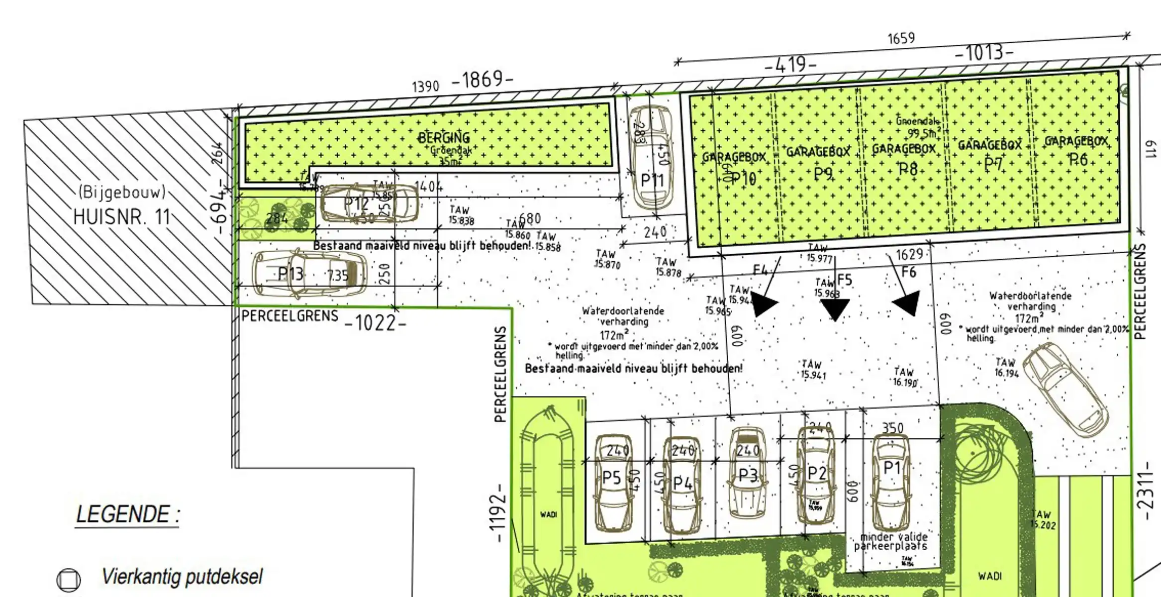
Ben je op zoek naar een extra parkeerplaats in het centrum van Lede? Zoek niet verder!
Open autostaanplaatsen op het terrein van de residentie.
Geschikt als bijhorende parkeeroplossing voor bewoners of investering
Open autostaanplaatsen op het terrein van de residentie.
Geschikt als bijhorende parkeeroplossing voor bewoners of investering
Energie
Op de kaart

Financieel
| Prijs |
|---|
Bijkomende info
Faciliteiten
| Type vloer |
|---|
Perceel
| Tuin oppervlakte (m²) | 0 |
|---|
Vergunning
| Vergunning | Geen beschikbaar |
|---|---|
| Verkavelingsvergunning | Geen beschikbaar |
Uitrusting
| Parking | Nee |
|---|---|
| Garage | Nee |
| Tuin | Nee |
| Terras | Nee |
Leer meer over vastgoed
23 March 2026
Op Spotto zoeken als een pro: 10 slimme tips
21 March 2026
Hoeveel kan ik lenen om een huis te kopen?
01 March 2026
Wanneer heb ik een bouwvergunning of omgevingsvergunning nodig?
17 February 2026