Nieuw Virtual tour
NINOVE: Centraal gelegen woning met 2 slpks, garage en koer
€ 265.000
Een pand van Immo-Expert & Co
Overzicht
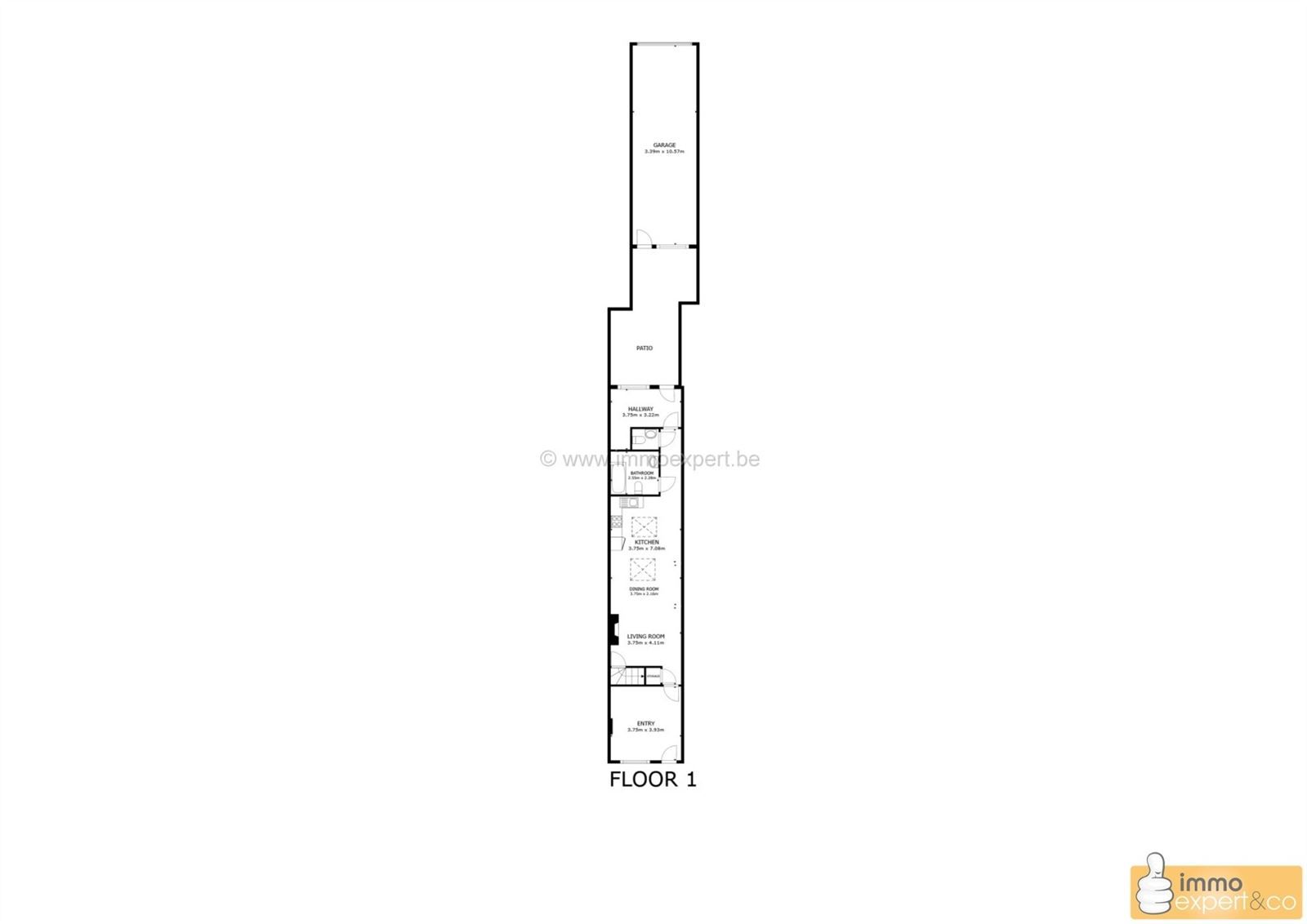
- 146.45 m² bewoonbaar
- 140 m² grond
- 2 Slaapkamer(s)
- 1 Badkamer(s)
- 3 Toilet(ten)
- 2 Garage(s)
Overstromingsgevaar gebouw
Overstromingsgevaar perceel
Beschrijving
Ontdek deze charmante woning in het hart van Ninove, ideaal gelegen voor wie op zoek is naar comfort en praktische voorzieningen. Met een bewoonbare oppervlakte van 146,45 m² en een perceelgrootte van 140 m², biedt deze woning een optimale indeling.
De woning beschikt over twee slaapkamers, perfect voor een klein gezin of als hobbyruimte en kan nog uitgebreid worden met 2 extra slaapkamers op zolder.
De open leefruimte baadt in natuurlijk licht, met voldoende plaats voor een gezellige zithoek en eetgedeelte. De halfopen keuken is praktisch ingericht.
Buiten vindt u een onderhoudsvriendelijke binnenplaats. De dubbele garage is een enorm pluspunt in de stad, met ruimte voor voertuigen of extra opslag.
De ligging is uitstekend, met winkels, scholen, en openbaar vervoer op wandelafstand. Deze woning biedt het gemak van stadsleven gecombineerd met die van een residentiële buurt.
Mis deze unieke kans niet om eigenaar te worden van een woning vol potentieel in een bruisende omgeving. Maak vandaag nog een afspraak voor een bezichtiging!
De woning beschikt over twee slaapkamers, perfect voor een klein gezin of als hobbyruimte en kan nog uitgebreid worden met 2 extra slaapkamers op zolder.
De open leefruimte baadt in natuurlijk licht, met voldoende plaats voor een gezellige zithoek en eetgedeelte. De halfopen keuken is praktisch ingericht.
Buiten vindt u een onderhoudsvriendelijke binnenplaats. De dubbele garage is een enorm pluspunt in de stad, met ruimte voor voertuigen of extra opslag.
De ligging is uitstekend, met winkels, scholen, en openbaar vervoer op wandelafstand. Deze woning biedt het gemak van stadsleven gecombineerd met die van een residentiële buurt.
Mis deze unieke kans niet om eigenaar te worden van een woning vol potentieel in een bruisende omgeving. Maak vandaag nog een afspraak voor een bezichtiging!
Energie
![]() |
- EPC Certificaat: 20250831-0003675379-RES-1
- Energieverbruik: 393 kWh/m²/jaar
- E-peil: E0
- Verwarming: Gas
- Beglazing: Standaard dubbel
Extra budget nodig voor je renovatie?
De overheid helpt je dit pand energetisch te renoveren! Hieronder zie je het premiebedrag dat je mogelijks van de overheid krijgt.
Het huidige EPC-label is:

Op de kaart

Financieel
| Prijs | |
|---|---|
| Kadastraal inkomen (niet geïndexeerd) | € 431 |
| Kadastraal inkomen (geïndexeerd) | € 967 |
Berekening kosten
Je aankoopkosten? Die heb je snel berekent via de knop hieronder.
Bijkomende info
Gebouw
| Bouwjaar | 1918 |
|---|---|
| Staat | Op te frissen |
| Bouwcertificaat | Nee |
| Bewoonbaar (m²) | 146.45 |
| Verdieping | 0 |
| Gevelbreedte | 3.9 |
| Badkamers | 1 |
| Slaapkamers | 2 |
| Verdiepingen | 4 |
| Garages | 2 |
| Parkeerplaatsen | 0 |
| Doucheruimtes | 0 |
| Toiletten | 3 |
Faciliteiten
| Keuken uitrusting | Luxueus uitgerust |
|---|---|
| Materiaal ramenomlijstingen | Aluminium |
| Beglazing | Standaard dubbel |
| Brandstof primaire verwarming | Gas |
| Elektrisch keuringsattest | Nee |
Perceel
| Diepte (m) | 24 |
|---|---|
| Breedte (m) | 3 |
| Overstromingsgevoelig | Bepaald overstromingsgebied |
| P-score | D |
| G-score | D |
| Voorkeurrecht | Nee |
| Totale oppervlakte (m²) | 140 |
| Bebouwde oppervlakte (m²) | 0 |
| Tuin oppervlakte (m²) | 0 |
| Oppervlakte terras (m²) | 29 |
| Oriëntatie tuin | Zuidwest |
Vergunning
| Vergunning | Geen beschikbaar |
|---|---|
| Verkavelingsvergunning | Geen beschikbaar |
Uitrusting
| Investeringspand | Nee |
|---|---|
| Geschikt voor praktijk | Nee |
| Parking | Nee |
| Garage | Ja |
| Thuiskantoor | Nee |
| Kelder | Ja |
| Zolder | Ja |
| Tuin | Nee |
| Terras | Ja |
| Lift | Nee |
| Rioolaansluiting | Ja |
| Gasaansluiting | Ja |
| Wateraansluiting | Ja |
| Elektriciteitsaansluiting | Ja |
| TV aansluiting | Ja |
| Internetaansluiting | Ja |
| Telefoonaansluiting | Ja |
Een pand van
Immo-Expert & Co
Uw on(t)roerend goed specialist
Immo Expert & Co is reeds 25 jaar een begrip in Ternat en heeft nu ook een nieuw thuiskantoor geopend in Gooik.
Klanten vertrouwen op ons omwille van onze ongeëvenaarde persoonlijke service en discretie.
Wij doen alles van A tot Z voor de verkoop en verhuur van uw pand.
Hierbij maken we gebruik van de nieuwste digitale technieken om alles in goede banen te leiden. Zo zijn wij het enige kantoor in de ruime regio dat een 3D virtuele toer aanbiedt voor elk pand in de portefeuille. Kandidaat kopers of huurders wandelen als het ware meteen rond in hun droomwoning!
Wenst u een vrijblijvende schatting van uw vastgoed of heeft u een vraag omtrent verkoop of verhuur , contacteer ons dan vandaag nog op 02/5810980 of mail ons op info@immoexpert.be.
DREEFSTRAAT 26 NINOVE
Leer meer over vastgoed
22 October 2025
Hoeveel kan ik lenen om een huis te kopen?
11 June 2025
Huis kopen met bouwovertreding? Dit moet je weten
11 May 2025
Renoveren? Vraag je Mijn VerbouwPremie aan
22 April 2025


