Virtual tour
NINOVE: woning met 4 slpks in het centrum
€ 299.000
Een pand van Immo-Expert & Co
Overzicht
- 140.93 m² bewoonbaar
- 253 m² grond
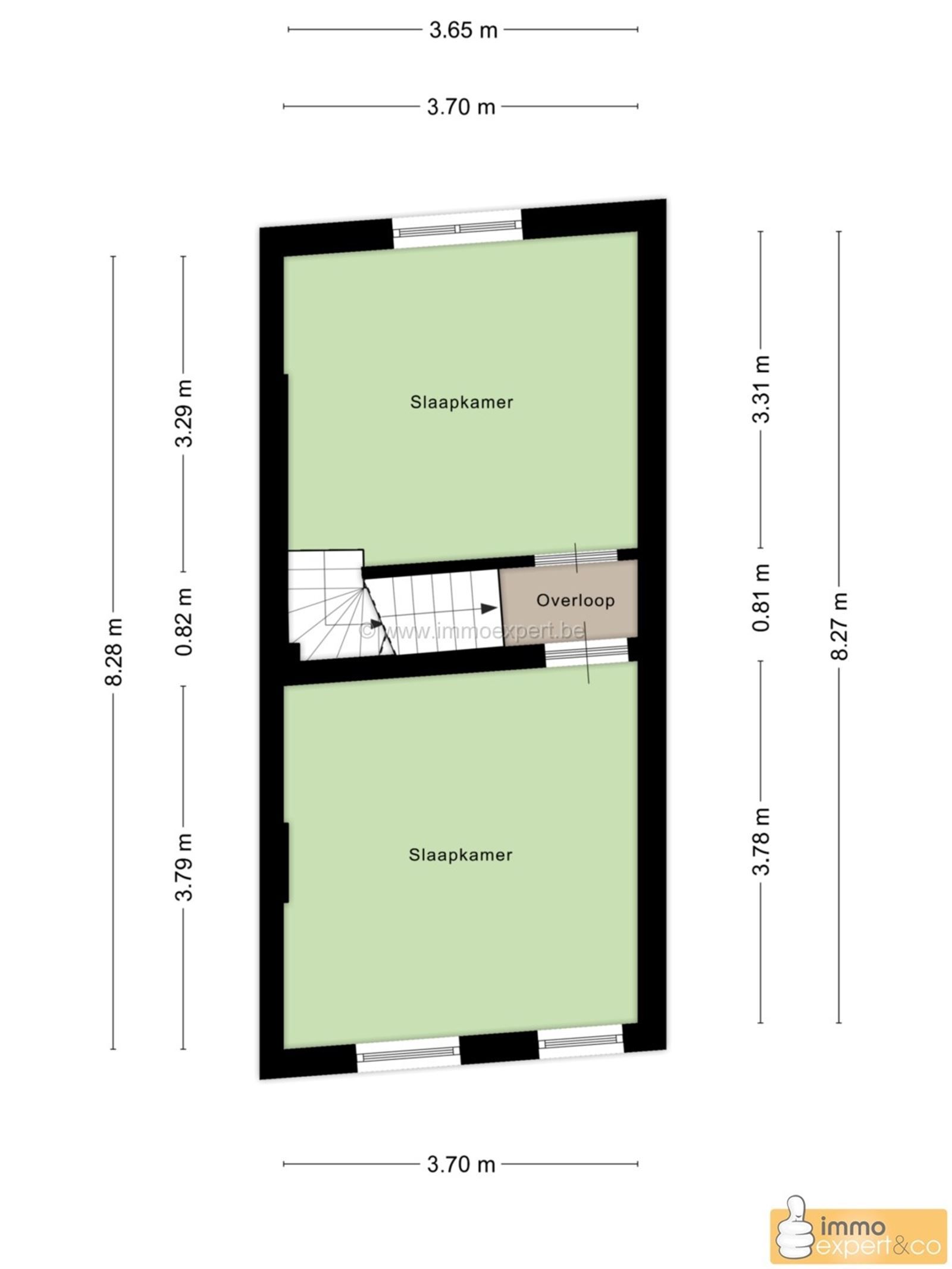
- 4 Slaapkamer(s)
- 2 Badkamer(s)
- 3 Toilet(ten)
- 1 Tuin
- 1 Garage(s)
Overstromingsgevaar perceel
Beschrijving
Welkom in uw nieuwe thuis in het hart van Ninove! Deze prachtige woning combineert stijl, comfort en praktische ligging.
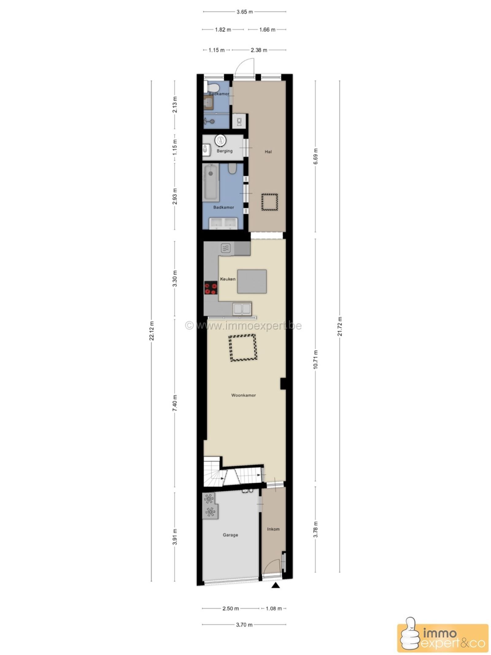
Bij binnenkomst wordt u begroet door een lichte en ruime hal die leidt naar een gezellige leefruimte. De open woonkamer met moderne accenten en eetgedeelte biedt voldoende ruimte voor familie- en vriendenbijeenkomsten. De grote ramen en de dakkoepel zorgen voor een overvloed aan natuurlijk licht.
De stijlvolle keuken, met eiland, is volledig uitgerust en een elegant werkblad. Perfect voor het bereiden van heerlijke maaltijden en gezellige huiselijke diners.
De woning beschikt over vier comfortabele slaapkamers, ideaal voor gezinnen of als gastenverblijf. Elk van deze kamers biedt ruimte en privacy, en is stijlvol afgewerkt met moderne accenten. De badkamer is een oase van rust met zijn dubbele wastafel en stijlvolle betegeling, tevens een aparte douchekamer ter beschikking.
Extra troef is de garage, die niet alleen plaats biedt aan uw voertuig, maar ook dient als extra bergruimte. Met een bewoonbare oppervlakte van 140,93 m² en een perceel van 253 m², biedt deze woning alles wat u zoekt.
Gelegen in een levendige buurt, dicht bij scholen, winkels en openbaar vervoer. Deze woning in Ninove is de perfecte plek om uw nieuwe hoofdstuk te beginnen. Mis deze kans niet, plan vandaag nog een bezichtiging! Hier alvast nog een kleine video ter info: 'https://youtube.com/shorts/vuJlysimcMQ?si=LgsVsNW8honEbauF'
Bij binnenkomst wordt u begroet door een lichte en ruime hal die leidt naar een gezellige leefruimte. De open woonkamer met moderne accenten en eetgedeelte biedt voldoende ruimte voor familie- en vriendenbijeenkomsten. De grote ramen en de dakkoepel zorgen voor een overvloed aan natuurlijk licht.
De stijlvolle keuken, met eiland, is volledig uitgerust en een elegant werkblad. Perfect voor het bereiden van heerlijke maaltijden en gezellige huiselijke diners.
De woning beschikt over vier comfortabele slaapkamers, ideaal voor gezinnen of als gastenverblijf. Elk van deze kamers biedt ruimte en privacy, en is stijlvol afgewerkt met moderne accenten. De badkamer is een oase van rust met zijn dubbele wastafel en stijlvolle betegeling, tevens een aparte douchekamer ter beschikking.
Extra troef is de garage, die niet alleen plaats biedt aan uw voertuig, maar ook dient als extra bergruimte. Met een bewoonbare oppervlakte van 140,93 m² en een perceel van 253 m², biedt deze woning alles wat u zoekt.
Gelegen in een levendige buurt, dicht bij scholen, winkels en openbaar vervoer. Deze woning in Ninove is de perfecte plek om uw nieuwe hoofdstuk te beginnen. Mis deze kans niet, plan vandaag nog een bezichtiging! Hier alvast nog een kleine video ter info: 'https://youtube.com/shorts/vuJlysimcMQ?si=LgsVsNW8honEbauF'
Energie
![]() |
- EPC Certificaat: 20250818-0003664789-RES-1
- Energieverbruik: 290 kWh/m²/jaar
- E-peil: E0
- Verwarming: Gas
- Beglazing: Standaard dubbel
Op de kaart

Financieel
Prijs | |
---|---|
Kadastraal inkomen (niet geïndexeerd) | € 423 |
Kadastraal inkomen (geïndexeerd) | € 949 |
Berekening kosten
Je aankoopkosten? Die heb je snel berekent via de knop hieronder.
Bijkomende info
Gebouw
Bouwjaar | 1936 |
---|---|
Staat | Zo goed als nieuw |
Bouwcertificaat | Nee |
Bewoonbaar (m²) | 140.93 |
Verdieping | 0 |
Gevelbreedte | 4 |
Badkamers | 2 |
Slaapkamers | 4 |
Verdiepingen | 4 |
Garages | 1 |
Parkeerplaatsen | 0 |
Doucheruimtes | 0 |
Toiletten | 3 |
Faciliteiten
Keuken uitrusting | Luxueus uitgerust |
---|---|
Materiaal ramenomlijstingen | PVC |
Beglazing | Standaard dubbel |
Brandstof primaire verwarming | Gas |
Elektrisch keuringsattest | Nee |
Perceel
Diepte (m) | 63 |
---|---|
Breedte (m) | 4 |
Overstromingsgevoelig | Geen |
P-score | D |
G-score | C |
Voorkeurrecht | Nee |
Totale oppervlakte (m²) | 253 |
Bebouwde oppervlakte (m²) | 98 |
Tuin oppervlakte (m²) | 155 |
Oppervlakte terras (m²) | 33 |
Oriëntatie tuin | ZuidOost |
Vergunning
Vergunning | Aanvraag ingediend |
---|---|
Verkavelingsvergunning | Aanvraag ingediend |
Uitrusting
Investeringspand | Nee |
---|---|
Geschikt voor praktijk | Nee |
Parking | Nee |
Garage | Ja |
Thuiskantoor | Nee |
Kelder | Nee |
Zolder | Nee |
Tuin | Ja |
Terras | Ja |
Lift | Nee |
Rioolaansluiting | Ja |
Gasaansluiting | Ja |
Wateraansluiting | Ja |
Elektriciteitsaansluiting | Ja |
TV aansluiting | Ja |
Internetaansluiting | Ja |
Telefoonaansluiting | Ja |
Een pand van
Immo-Expert & Co
Uw on(t)roerend goed specialist
Immo Expert & Co is reeds 25 jaar een begrip in Ternat en heeft nu ook een nieuw thuiskantoor geopend in Gooik.
Klanten vertrouwen op ons omwille van onze ongeëvenaarde persoonlijke service en discretie.
Wij doen alles van A tot Z voor de verkoop en verhuur van uw pand.
Hierbij maken we gebruik van de nieuwste digitale technieken om alles in goede banen te leiden. Zo zijn wij het enige kantoor in de ruime regio dat een 3D virtuele toer aanbiedt voor elk pand in de portefeuille. Kandidaat kopers of huurders wandelen als het ware meteen rond in hun droomwoning!
Wenst u een vrijblijvende schatting van uw vastgoed of heeft u een vraag omtrent verkoop of verhuur , contacteer ons dan vandaag nog op 02/5810980 of mail ons op info@immoexpert.be.
PAMELSTRAAT 317 NINOVE
Leer meer over vastgoed
11 June 2025
Huis kopen met bouwovertreding? Dit moet je weten
11 May 2025
Renoveren? Vraag je Mijn VerbouwPremie aan
22 April 2025
Je allereerste renovatieproject selecteren én budgetteren: met de praktische hulp van Spotto
17 February 2025