Nieuw
Woning te koop met 3 kamers te Meerbeke
€ 279.000
Een pand van Multimmo
Overzicht
- 192 m² bewoonbaar
- 474 m² grond
- 3 Slaapkamer(s)
- 1 Badkamer(s)
- 1 Toilet(ten)
- 1 Tuin
- 1 Garage(s)
Beschrijving
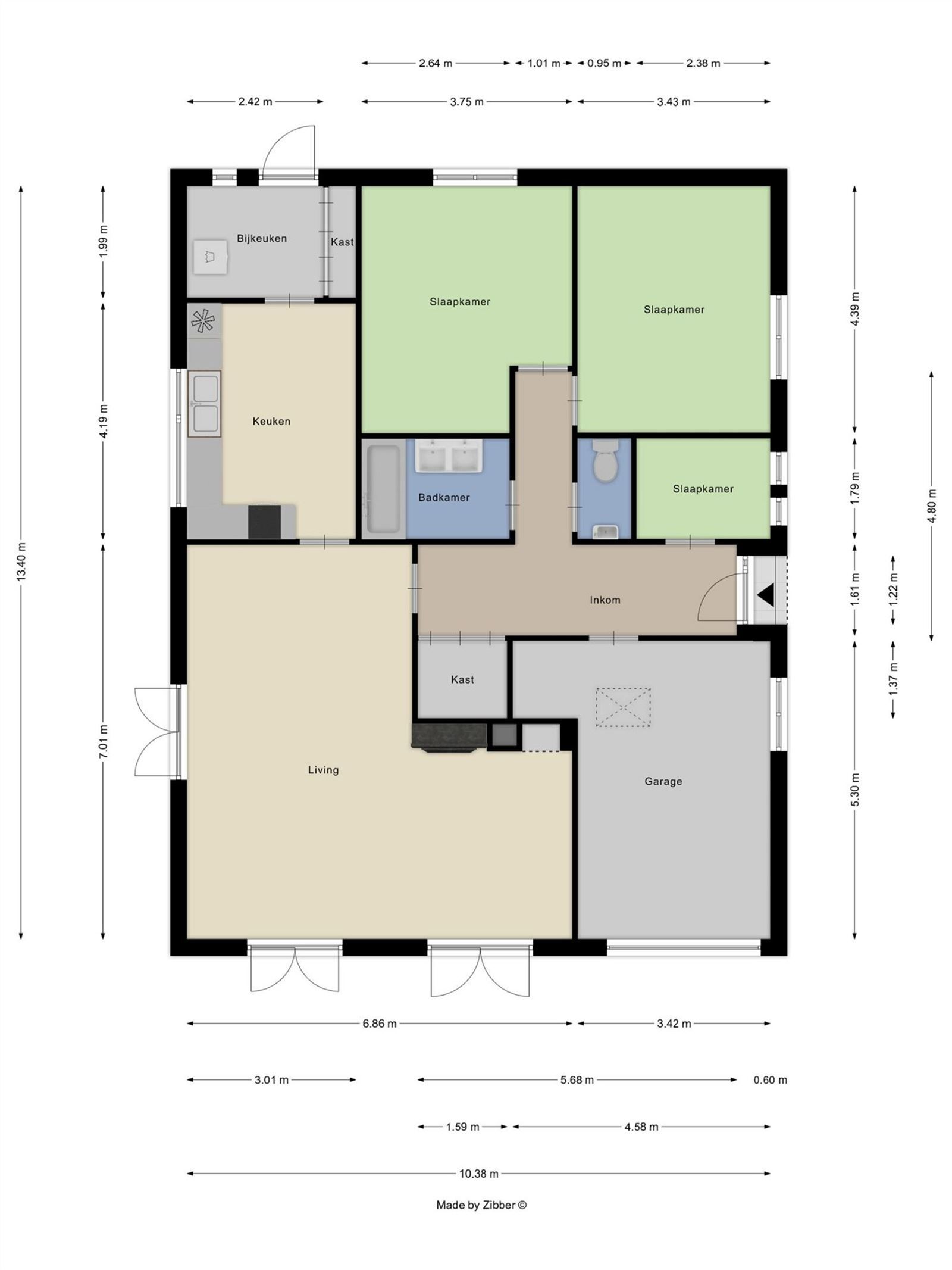
Gelijkvloers
Inkomhal 6,2m x 1,6m = 9,9m²
Living 6,9m x 3,9m = 27,0m²
Eetkamer 3,1m x 3,1m = 9,5m²
Keuken 4,2m x 3,0m = 12,6m²
Berging 2,0m x 3,0m = 6,0m²
Nachthal 3,2m x 1,0m = 3,0m²
Slaapkamer 4,4m x 3,4m = 15,1m²
Slaapkamer 4,4m x 3,8m = 16,5m²
Slaapkamer 1,8m x 2,4m = 4,3m²
WC 1,8m x 1,0m = 1,7m²
Badkamer 2,6m x 1,8m = 4,7m²
Garage 5,3m x 3,4m = 18,1m²
Eerste verdieping
Zolder 9,5m x 6,2m = 58,7m²
Energie
![]() |
- EPC Certificaat: 3694692
- Energieverbruik: 331 kWh/m²/jaar
- E-peil: E0
- Beglazing: Standaard dubbel
Extra budget nodig voor je renovatie?
De overheid helpt je dit pand energetisch te renoveren! Hieronder zie je het premiebedrag dat je mogelijks van de overheid krijgt.
Het huidige EPC-label is:

Op de kaart

Financieel
Prijs | |
---|---|
Kadastraal inkomen (niet geïndexeerd) | € 1.241 |
Kadastraal inkomen (geïndexeerd) | € 0 |
Berekening kosten
Je aankoopkosten? Die heb je snel berekent via de knop hieronder.
Bijkomende info
Gebouw
Bouwjaar | 1977 |
---|---|
Staat | Op te frissen |
Bouwcertificaat | Nee |
Bewoonbaar (m²) | 192 |
Verdieping | 0 |
Gevelbreedte | 10.38 |
Badkamers | 1 |
Slaapkamers | 3 |
Verdiepingen | 1 |
Garages | 1 |
Parkeerplaatsen | 0 |
Doucheruimtes | 0 |
Toiletten | 1 |
Faciliteiten
Keuken uitrusting | Standaard |
---|---|
Materiaal ramenomlijstingen | Hout |
Beglazing | Standaard dubbel |
Elektrisch keuringsattest | Nee |
Perceel
Diepte (m) | 26 |
---|---|
Breedte (m) | 19 |
Overstromingsgevoelig | Geen |
P-score | A |
G-score | A |
Voorkeurrecht | Nee |
Totale oppervlakte (m²) | 474 |
Bebouwde oppervlakte (m²) | 139 |
Tuin oppervlakte (m²) | 105 |
Oppervlakte terras (m²) | 0 |
Oriëntatie tuin | West |
Vergunning
Vergunning | Vergunning beschikbaar |
---|---|
Verkavelingsvergunning | Geen beschikbaar |
Uitrusting
Investeringspand | Nee |
---|---|
Geschikt voor praktijk | Nee |
Parking | Nee |
Garage | Ja |
Thuiskantoor | Nee |
Kelder | Nee |
Zolder | Nee |
Tuin | Ja |
Terras | Nee |
Lift | Nee |
Rioolaansluiting | Ja |
Gasaansluiting | Ja |
Wateraansluiting | Ja |
Elektriciteitsaansluiting | Ja |
TV aansluiting | Ja |
Internetaansluiting | Ja |
Telefoonaansluiting | Ja |
Een pand van
Multimmo
Vastgoedkantoor
Multimmo werd in 2000 opgericht door Olivier Degreef en Filip Derkinderen. Een brede ploeg van medewerkers deelt graag zijn ervaring met u. Dankzij onze sterke verbondenheid met en kennis van de regio voelen we goed aan hoe we uw woning het best in de markt zetten.
Ons ruime aanbod trekt sowieso veel kopers en huurders aan. U vindt ons aanbod terug op www.multimmo.be
DONKERSTRAAT 6 MEERBEKE
Leer meer over vastgoed
11 June 2025
Huis kopen met bouwovertreding? Dit moet je weten
11 May 2025
Renoveren? Vraag je Mijn VerbouwPremie aan
22 April 2025
Je allereerste renovatieproject selecteren én budgetteren: met de praktische hulp van Spotto
17 February 2025