Overzicht
- 180 m² bewoonbaar
- 223 m² grond
- 3 Slaapkamer(s)
- 1 Badkamer(s)
- 2 Toilet(ten)
- 1 Tuin
Beschrijving
In de landelijke en rustige verkaveling Prinsdaalhof in Bambrugge vind je deze energiezuinige en stijlvolle gesloten nieuwbouwwoning. Deze woning is gelegen in een aangename, groene woonomgeving met toch een vlotte verbinding naar omliggende gemeenten en invalswegen. Contacteer Ruben voor meer informatie of een bezichtiging via 0495 15 93 33 of ruben@kompasvastgoed.be
De woning wordt volledig instapklaar opgeleverd, met oog voor hoogwaardige materialen en een kwalitatieve afwerking. Dankzij de toepassing van de nieuwste energietechnieken, waaronder warmtepomp, vloerverwarming, zonnepanelen en ventilatiesysteem type D, woon je hier niet alleen comfortabel, maar ook met een uitermate laag energieverbruik.
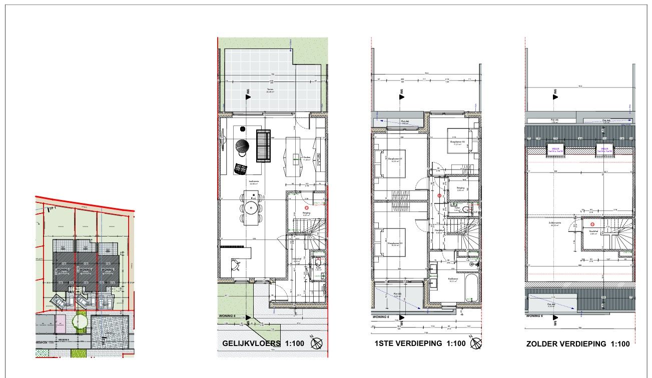
Binnenin vind je een lichtrijke leefruimte met open, volledig ingerichte keuken, drie ruime slaapkamers, een badkamer met douche, bad. De vaste trap leidt naar een polyvalente zolder, die ruimte biedt voor twee extra kamers en/of een opbergruimte.
De aankoop gebeurt onder het gesplitst fiscaal stelsel: registratierechten op de grondprijs en btw op de constructiewaarde.
Ben jij klaar om elke dag thuis te komen waar rust, kwaliteit en energiezuinig wonen samenkomen? Dan is Prinsdaalhof jouw nieuwe thuis.
De woning wordt volledig instapklaar opgeleverd, met oog voor hoogwaardige materialen en een kwalitatieve afwerking. Dankzij de toepassing van de nieuwste energietechnieken, waaronder warmtepomp, vloerverwarming, zonnepanelen en ventilatiesysteem type D, woon je hier niet alleen comfortabel, maar ook met een uitermate laag energieverbruik.
Binnenin vind je een lichtrijke leefruimte met open, volledig ingerichte keuken, drie ruime slaapkamers, een badkamer met douche, bad. De vaste trap leidt naar een polyvalente zolder, die ruimte biedt voor twee extra kamers en/of een opbergruimte.
De aankoop gebeurt onder het gesplitst fiscaal stelsel: registratierechten op de grondprijs en btw op de constructiewaarde.
Ben jij klaar om elke dag thuis te komen waar rust, kwaliteit en energiezuinig wonen samenkomen? Dan is Prinsdaalhof jouw nieuwe thuis.
Energie
![]() |
- EPC Certificaat: 41082-G-OMV_2023076650/EP18711/SV/A001/D04
- E-peil: E0
- Beglazing: Onbekend
Op de kaart

Financieel
| Prijs |
|---|
Bijkomende info
Gebouw
| Bouwjaar | 2025 |
|---|---|
| Staat | Nieuw |
| Bouwcertificaat | Ja |
| Bewoonbaar (m²) | 180 |
| Badkamers | 1 |
| Slaapkamers | 3 |
| Verdiepingen | 0 |
| Garages | 0 |
| Parkeerplaatsen | 2 |
| Toiletten | 2 |
Faciliteiten
| Septische tank | Nee |
|---|
Perceel
| Overstromingsgevoelig | Geen |
|---|---|
| P-score | A |
| G-score | A |
| Totale oppervlakte (m²) | 223 |
| Bebouwde oppervlakte (m²) | 0 |
| Tuin oppervlakte (m²) | 24 |
Vergunning
| Verkavelingsvergunning | Vergunning beschikbaar |
|---|
Uitrusting
| Investeringspand | Nee |
|---|---|
| Parking | Ja |
| Garage | Nee |
| Zolder | Ja |
| Opslagruimte | Ja |
| Tuin | Ja |
| Lift | Nee |
| Rioolaansluiting | Ja |
| Gasaansluiting | Nee |
| Wateraansluiting | Ja |
| Elektriciteitsaansluiting | Ja |
| Internetaansluiting | Ja |
| Telefoonaansluiting | Ja |
| Zonnepanelen | Ja |
| Zonneboiler | Nee |
| Alarm | Nee |
| Videofoon | Nee |
| Grondwaterput | Ja |
Leer meer over vastgoed
Nieuw
24 November 2025
Uitgezocht voor jouw gemeente: Hoeveel stijgt de waarde van je woning door een renovatie?
22 October 2025
Hoeveel kan ik lenen om een huis te kopen?
11 June 2025
Huis kopen met bouwovertreding? Dit moet je weten
11 May 2025
