Bouwgrond van 495m² voor halfopen bebouwing
€ 169.000
Een pand van Immo Zone
Jouw zoektocht
Overzicht
- 495 m² grond
Beschrijving
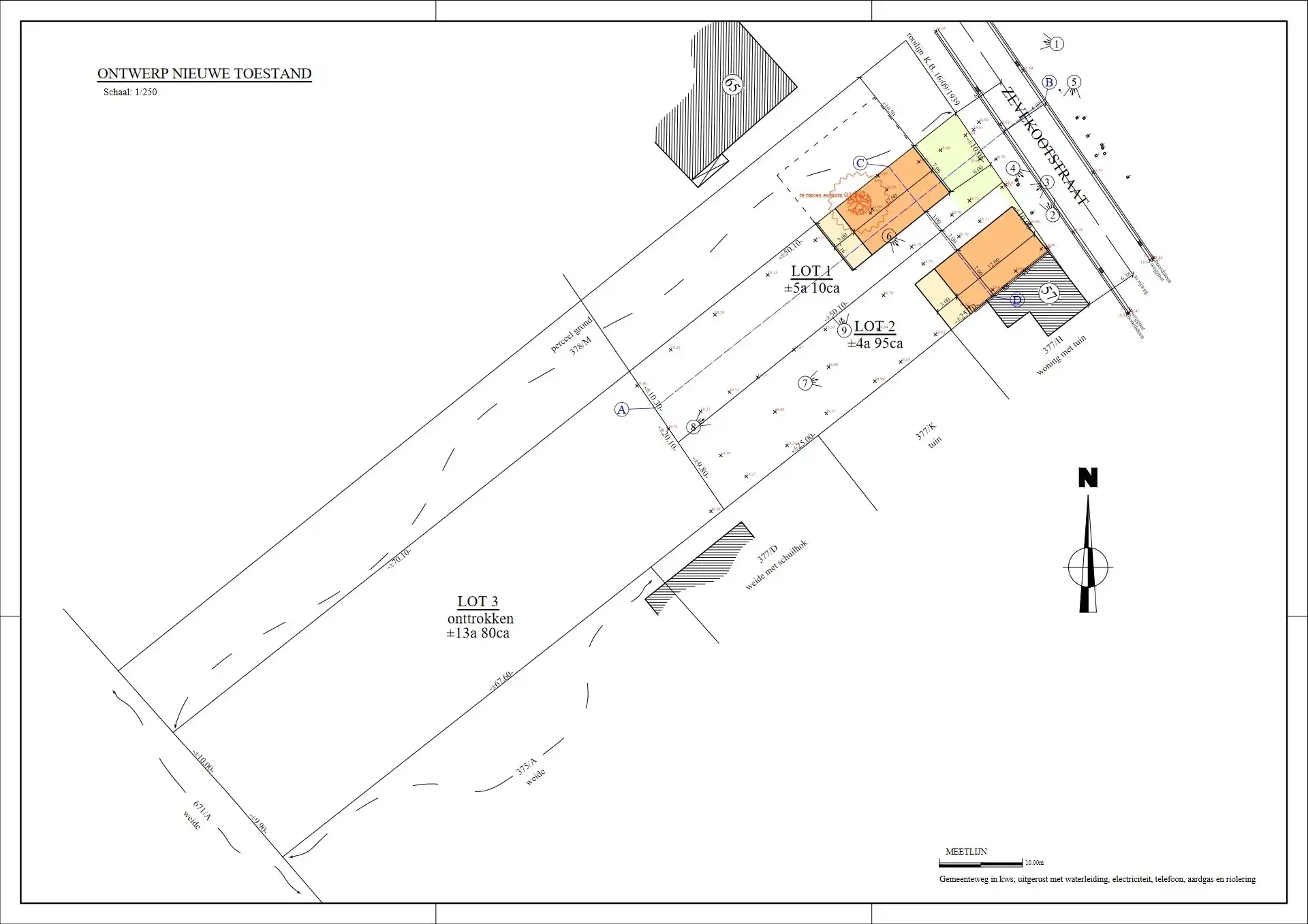
In de Zevekootstraat 59 te Erpe bevindt zich een mooi perceel bouwgrond bestemd voor één woning. Met een breedte van 10 meter, een mogelijke gevelbreedte van 7 meter en een diepte van 50 meter biedt dit perceel de ideale basis voor het realiseren van een comfortabele gezinswoning.
De ligging is een grote troef. De Zevekootstraat is een rustige, verzorgde straat met een aangenaam woonkarakter, waar u kunt genieten van privacy en een groene omgeving. Toch bevindt alles wat u nodig heeft zich vlakbij: winkels, scholen en openbaar vervoer zijn vlot bereikbaar, en via de nabijgelegen invalswegen bent u snel in Aalst, Wetteren of Gent.
Deze bouwgrond biedt een unieke kans om een nieuwe woning te realiseren op een goed gelegen en rustig perceel, in een buurt die rust en bereikbaarheid harmonieus combineert.
Het betreft lot 2 op het verkavelingsplan.
Voor meer informatie en/of een bezoek, contacteert u Sébastien van Immo Zone op het nummer 0486/ 41. 85. 66.
Energie
- E-peil: E0
- Beglazing: Onbekend
Op de kaart

Financieel
| Prijs | |
|---|---|
| Kadastraal inkomen (niet geïndexeerd) | € 0 |
| Kadastraal inkomen (geïndexeerd) | € 0 |
Berekening kosten
Je aankoopkosten? Die heb je snel berekend via de knop hieronder.
Bijkomende info
Gebouw
| Bouwcertificaat | Nee |
|---|
Perceel
| Overstromingsgevoelig | Geen |
|---|---|
| P-score | B |
| Voorkeurrecht | Nee |
| Totale oppervlakte (m²) | 495 |
| Oriëntatie tuin | Noordoost |
Vergunning
| Vergunning | Geen beschikbaar |
|---|---|
| Verkavelingsvergunning | Vergunning beschikbaar |
Uitrusting
| Investeringspand | Nee |
|---|---|
| Rioolaansluiting | Ja |
| Gasaansluiting | Ja |
| Wateraansluiting | Ja |
| Elektriciteitsaansluiting | Ja |
| TV aansluiting | Ja |
| Internetaansluiting | Ja |
| Telefoonaansluiting | Ja |