Virtual tour
DENDERLEEUW: 2 slpk app. nabij treinstation
Een pand van Immo-Expert & Co
Overzicht
- 75 m² bewoonbaar
- 2 Slaapkamer(s)
- 1 Badkamer(s)
- 1 Toilet(ten)
Beschrijving
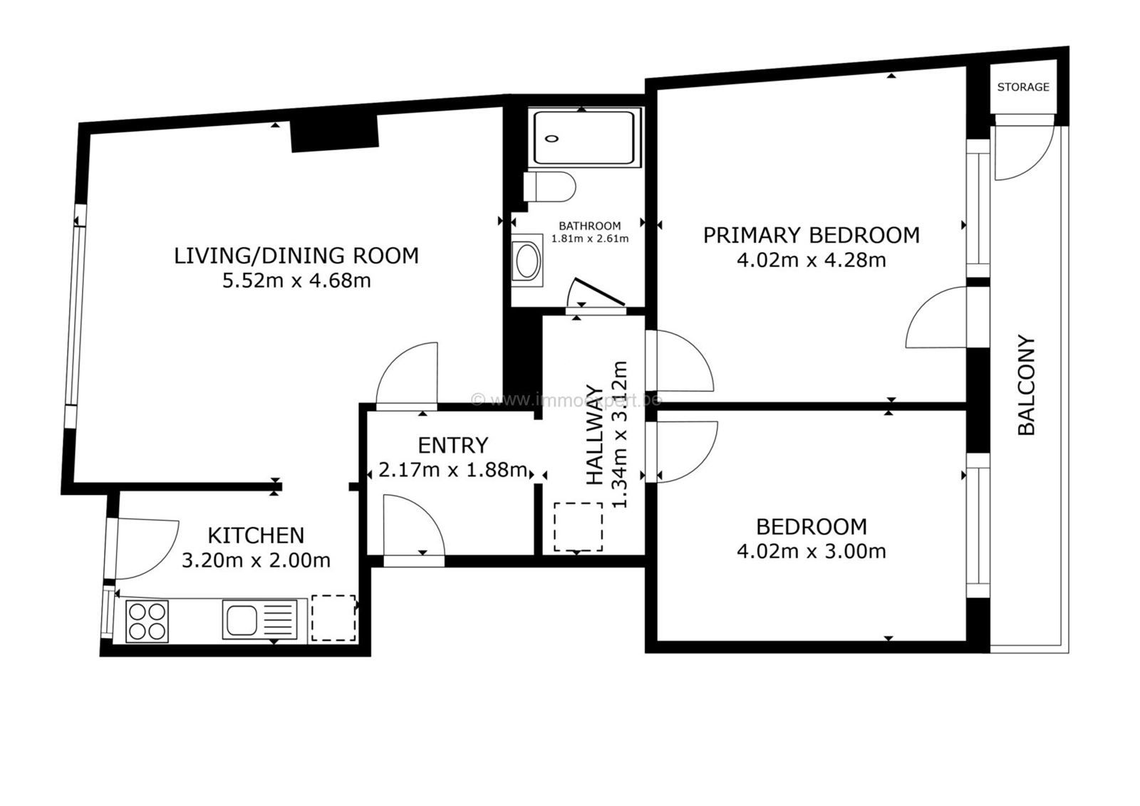
Welkom in dit knus appartement in Denderleeuw nabij het treinstation met een bruikbare oppervlakte van circa 75 m². Omvattende een inkomhal, een living met eethoek, een keuken, een vernieuwde badkamer met inloopdouche en wc en 2 volwaardige slaapkamers. Beide slaapkamers geven uit op het terras en de keuken op het balkon. Gelegen op de 3e verdieping, in een centrale buurt van Denderleeuw met gemakkelijke toegang tot winkels, horeca, scholen en openbaar vervoer en treinstation! Elektriciteit is conform en gekeurd. CV aardgas aanwezig met individuele ketel.
Dit appartement combineert comfort, functionaliteit en een frisse, moderne sfeer. Het is ideaal voor starters, koppels of kleine gezinnen of investeerders. Een bezichtiging overtuigt u vast van de vele mogelijkheden die deze woning biedt. Plan snel een afspraak en ontdek zelf wat dit appartement zo aantrekkelijk maakt. Link naar virtuele tour: https://my.matterport.com/show/?m=RoJLgqpZr76
Dit appartement combineert comfort, functionaliteit en een frisse, moderne sfeer. Het is ideaal voor starters, koppels of kleine gezinnen of investeerders. Een bezichtiging overtuigt u vast van de vele mogelijkheden die deze woning biedt. Plan snel een afspraak en ontdek zelf wat dit appartement zo aantrekkelijk maakt. Link naar virtuele tour: https://my.matterport.com/show/?m=RoJLgqpZr76
Energie
![]() |
- EPC Certificaat: 20190411-0002150246-RES-1
- Energieverbruik: 527 kWh/m²/jaar
- E-peil: E0
- Verwarming: Gas
- Beglazing: Standaard dubbel
Let op, de renovatieverplichting in Vlaanderen verplicht de koper om deze woning na aankoop te renoveren tot een betere energieprestatie. Lees er alles over in dit artikel
Extra budget nodig voor je renovatie?
De overheid helpt je dit pand energetisch te renoveren! Hieronder zie je het premiebedrag dat je mogelijks van de overheid krijgt.
Het huidige EPC-label is:

Op de kaart

Financieel
| Prijs | |
|---|---|
| Kadastraal inkomen (niet geïndexeerd) | € 659 |
| Kadastraal inkomen (geïndexeerd) | € 1.479 |
Berekening kosten
Je aankoopkosten? Die heb je snel berekent via de knop hieronder.
Bijkomende info
Gebouw
| Bouwjaar | 1967 |
|---|---|
| Staat | Goed onderhouden |
| Bouwcertificaat | Nee |
| Bewoonbaar (m²) | 75 |
| Verdieping | 3 |
| Badkamers | 1 |
| Slaapkamers | 2 |
| Verdiepingen | 3 |
| Garages | 0 |
| Parkeerplaatsen | 0 |
| Doucheruimtes | 0 |
| Toiletten | 1 |
Faciliteiten
| Keuken uitrusting | Goed uitgerust |
|---|---|
| Materiaal ramenomlijstingen | Aluminium |
| Beglazing | Standaard dubbel |
| Brandstof primaire verwarming | Gas |
| Elektrisch keuringsattest | Ja |
Perceel
| Overstromingsgevoelig | Geen |
|---|---|
| P-score | A |
| G-score | A |
| Voorkeurrecht | Nee |
| Bebouwde oppervlakte (m²) | 0 |
| Tuin oppervlakte (m²) | 0 |
| Oppervlakte terras (m²) | 6 |
| Oriëntatie tuin | Zuidwest |
Vergunning
| Vergunning | Aanvraag ingediend |
|---|---|
| Verkavelingsvergunning | Aanvraag ingediend |
Uitrusting
| Investeringspand | Nee |
|---|---|
| Geschikt voor praktijk | Nee |
| Parking | Nee |
| Garage | Nee |
| Thuiskantoor | Nee |
| Kelder | Ja |
| Zolder | Nee |
| Tuin | Nee |
| Terras | Ja |
| Lift | Nee |
| Rioolaansluiting | Ja |
| Gasaansluiting | Ja |
| Wateraansluiting | Ja |
| Elektriciteitsaansluiting | Ja |
| TV aansluiting | Ja |
| Internetaansluiting | Ja |
| Telefoonaansluiting | Ja |
Appartementsblok
| Aantal verdiepingen | 3 |
|---|---|
| Lift | Nee |
Een pand van
Immo-Expert & Co
Uw on(t)roerend goed specialist
Immo Expert & Co is reeds 25 jaar een begrip in Ternat en heeft nu ook een nieuw thuiskantoor geopend in Gooik.
Klanten vertrouwen op ons omwille van onze ongeëvenaarde persoonlijke service en discretie.
Wij doen alles van A tot Z voor de verkoop en verhuur van uw pand.
Hierbij maken we gebruik van de nieuwste digitale technieken om alles in goede banen te leiden. Zo zijn wij het enige kantoor in de ruime regio dat een 3D virtuele toer aanbiedt voor elk pand in de portefeuille. Kandidaat kopers of huurders wandelen als het ware meteen rond in hun droomwoning!
Wenst u een vrijblijvende schatting van uw vastgoed of heeft u een vraag omtrent verkoop of verhuur , contacteer ons dan vandaag nog op 02/5810980 of mail ons op info@immoexpert.be.
LEEUWBRUGSTRAAT 22 B3.1 DENDERLEEUW
Leer meer over vastgoed
24 November 2025
Uitgezocht voor jouw gemeente: Hoeveel stijgt de waarde van je woning door een renovatie?
22 October 2025
Hoeveel kan ik lenen om een huis te kopen?
11 June 2025
Huis kopen met bouwovertreding? Dit moet je weten
11 May 2025



