Nieuw
Bouwgrond in Denderleeuw
€ 99.000
Een pand van Immo Optima
Overzicht
- 196 m² grond
Beschrijving
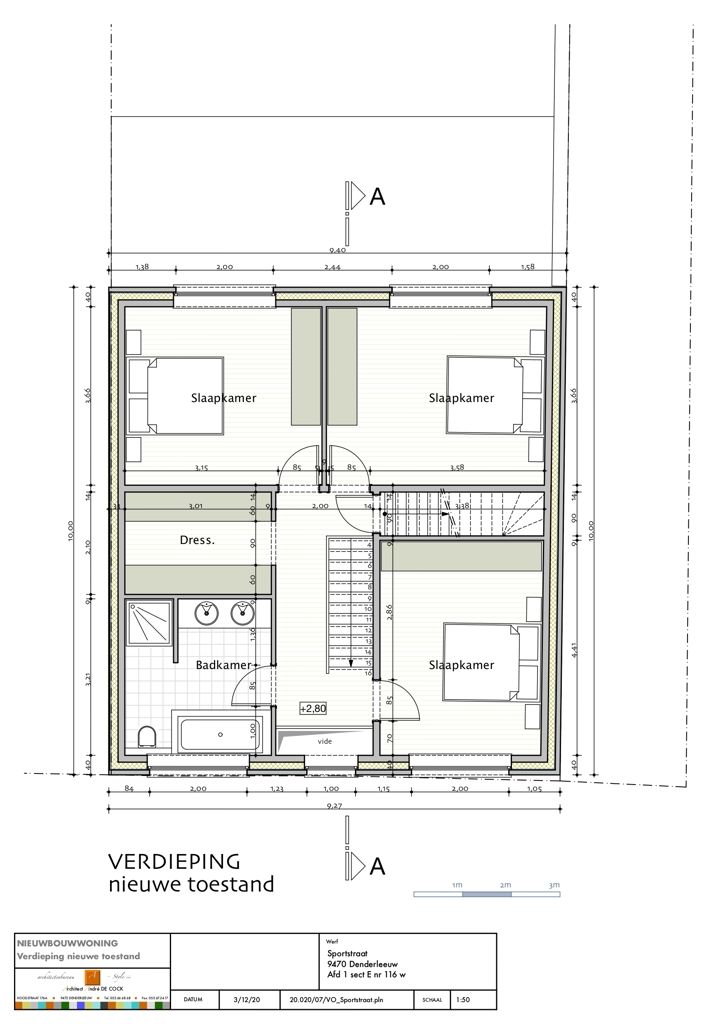
Deze bouwgrond van ongeveer 200 m² is gelegen in een rustige straat in Denderleeuw en beschikt over een straatbreedte van 9,26 meter. Het perceel leent zich uitstekend voor de bouw van een ééngezinswoning en is ideaal voor wie op zoek is naar een compacte maar goed gelegen bouwgrond. Er werd reeds een woning ontworpen op maat van dit perceel, de indicatieve plannen vindt u hier op de foto's. Hierdoor wordt het proces voor toekomstige bouwplannen aanzienlijk vereenvoudigt. De locatie combineert een rustige woonomgeving met een vlotte bereikbaarheid. Winkels, scholen en openbaar vervoer bevinden zich op korte afstand, en ook de E40 richting Gent en Brussel is snel bereikbaar.
Deze grond biedt een mooie kans voor wie snel en efficiënt wil bouwen in een goed ontsloten buurt.
Geïnteresseerd? Voor meer informatie of een afspraak, neem contact op met Hannes op 0476/67.79.87 of via hannes@immo-optima.be.
Niet gelegen in overstromingsgebied G-score: C P-score: C
(Gvg - Wg - Gmo - Gvkr - Gvv)
Deze grond biedt een mooie kans voor wie snel en efficiënt wil bouwen in een goed ontsloten buurt.
Geïnteresseerd? Voor meer informatie of een afspraak, neem contact op met Hannes op 0476/67.79.87 of via hannes@immo-optima.be.
Niet gelegen in overstromingsgebied G-score: C P-score: C
(Gvg - Wg - Gmo - Gvkr - Gvv)
Energie
Op de kaart

Financieel
| Prijs |
|---|
Berekening kosten
Je aankoopkosten? Die heb je snel berekent via de knop hieronder.
Bijkomende info
Perceel
| Voorkeurrecht | Nee |
|---|---|
| Totale oppervlakte (m²) | 196 |
Vergunning
| Vergunning | Geen beschikbaar |
|---|---|
| Verkavelingsvergunning | Geen beschikbaar |
| Bouwovertreding | Geen |
| Bouwovertreding dagvaardiging | Geen |
Een pand van
Immo Optima
De makelaar die zegt wat hij doet en doet wat hij zegt.
Ons ambitieus team beschikt over een uitstekende marktkennis en streeft naar een perfecte service. Onze mensen geven dagelijks het uiterste van zichzelf voor Uw vastgoedtransactie door middel van een klantgerichte aanpak waarbij we flexibiliteit en correctheid van informatie centraal stellen.
We streven naar een 100% slagingspercentage van alle bemiddelingsopdrachten. We starten met een gratis waardebepaling van Uw woning op basis van een gefundeerde analyse. Vervolgens ontwikkelen we voor Uw woning een uniek verkoop- en marketingplan en combineren dit met een regelmatige tussentijdse evaluatie. Hiermee vergroten we het verkooppotentieel voor Uw woning wat Optima de meest aangewezen partner maakt voor een succesvolle verkoop van Uw woning.
Neem gerust contact op voor een gratis waardebepaling of meer informatie over onze unieke aanpak voor de verkoop van Uw woning.
7147922
Leer meer over vastgoed
Nieuw
24 November 2025
Uitgezocht voor jouw gemeente: Hoeveel stijgt de waarde van je woning door een renovatie?
22 October 2025
Hoeveel kan ik lenen om een huis te kopen?
11 June 2025
Huis kopen met bouwovertreding? Dit moet je weten
11 May 2025