Nieuw
Denderleeuw, Anjelierenlaan - Steenweg - Fase 2 (Anjelierenlaan) - woningen: Lot 10
€ 438.510
Een pand van Huysman Bouw
Overzicht
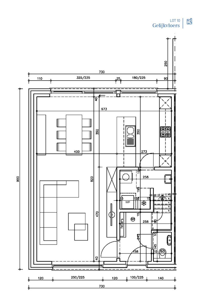
- 254 m² grond
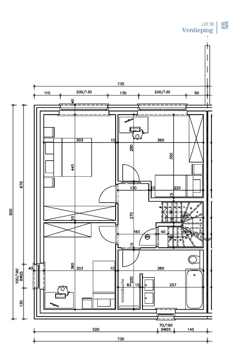
- 3 Slaapkamer(s)
- 1 Badkamer(s)
- 2 Toilet(ten)
Beschrijving
Ruime en energiezuinige nieuwbouwwoning op een zuidelijk georiënteerd perceel van 254m2. Op het gelijkvloers is een inkom met gastentoilet, een wasplaats/berging, en een open leefruimte. Op de eerste verdieping bevinden zich 3 slaapkamers en een badkamer met bad + inloopdouche + toilet. De zolder is toegankelijk met een vaste trap waardoor hier ook nog een vierde slaapkamer kan gemaakt worden. De vermelde prijs is inclusief ALL-IN afwerking. De interieurafwerking is 100% op maat! De keuken, vloeren, badkamer,.... het kan allemaal vrij gekozen worden. Standaard is de woning sowieso voorzien van alle moderne technieken zoals een warmtepomp en vloerverwarming op het gelijkvloers +1e verdieping. De woning wordt gebouwd in een nieuwe residentiële verkaveling met 11 woningen en 2 meergezinswoningen. Het residentiële project vormt een architecturaal geheel met optimaal ingedeelde wooneenheden en verschillende groen- en speelzones. Kom jij hier binnenkort thuis? Contacteer onze bouwadviseur Ewout voor meer informatie: 0497 588 888 - contact@huysmanbouw.be
Energie
- E-peil: E0
- Beglazing: Onbekend
Op de kaart

Financieel
| Prijs |
|---|
Bijkomende info
Gebouw
| Staat | Zo goed als nieuw |
|---|---|
| Bouwcertificaat | Ja |
| Verdieping | 0 |
| Badkamers | 1 |
| Slaapkamers | 3 |
| Verdiepingen | 0 |
| Garages | 0 |
| Parkeerplaatsen | 1 |
| Toiletten | 2 |
Faciliteiten
| Septische tank | Ja |
|---|
Perceel
| Overstromingsgevoelig | Geen |
|---|---|
| Totale oppervlakte (m²) | 254 |
| Bebouwde oppervlakte (m²) | 0 |
Vergunning
| Verkavelingsvergunning | Vergunning beschikbaar |
|---|
Uitrusting
| Investeringspand | Nee |
|---|---|
| Parking | Ja |
| Garage | Nee |
| Zolder | Ja |
| Lift | Nee |
| Rioolaansluiting | Ja |
| Gasaansluiting | Nee |
| Wateraansluiting | Ja |
| Elektriciteitsaansluiting | Ja |
| Internetaansluiting | Ja |
| Telefoonaansluiting | Ja |
| Zonnepanelen | Nee |
| Zonneboiler | Nee |
| Alarm | Nee |
| Videofoon | Nee |
| Grondwaterput | Ja |
Een pand van
Huysman Bouw
Bouwen mét vertrouwen
Huysman Bouw staat voor meer dan 50 jaar ervaring in bouwen van nieuwbouwwoningen en appartementen in Oost- en West-Vlaanderen. Wij dragen kwaliteit, flexibiliteit en klantvriendelijkheid hoog in het vaandel. Een combinatie van toplocaties, doordachte en gevarieerde architectuur en een interieur afwerking op maat maken van iedere woning een echte thuis. Jong, single, gezin of senior? Wij creëren een sleutel-op-de-deur-woning, afgewerkt appartement of bouwproject op jouw maat.
Denderleeuw, Anjelierenlaan - Steenweg - Fase 2 (Anjelierenlaan) - woningen: Lot 10 NOV25
Leer meer over vastgoed
Nieuw
24 November 2025
Uitgezocht voor jouw gemeente: Hoeveel stijgt de waarde van je woning door een renovatie?
22 October 2025
Hoeveel kan ik lenen om een huis te kopen?
11 June 2025
Huis kopen met bouwovertreding? Dit moet je weten
11 May 2025