Bouwgrond
€ 180.000
Een pand van IMMO NUVO
Overzicht
- 401 m² grond
Beschrijving
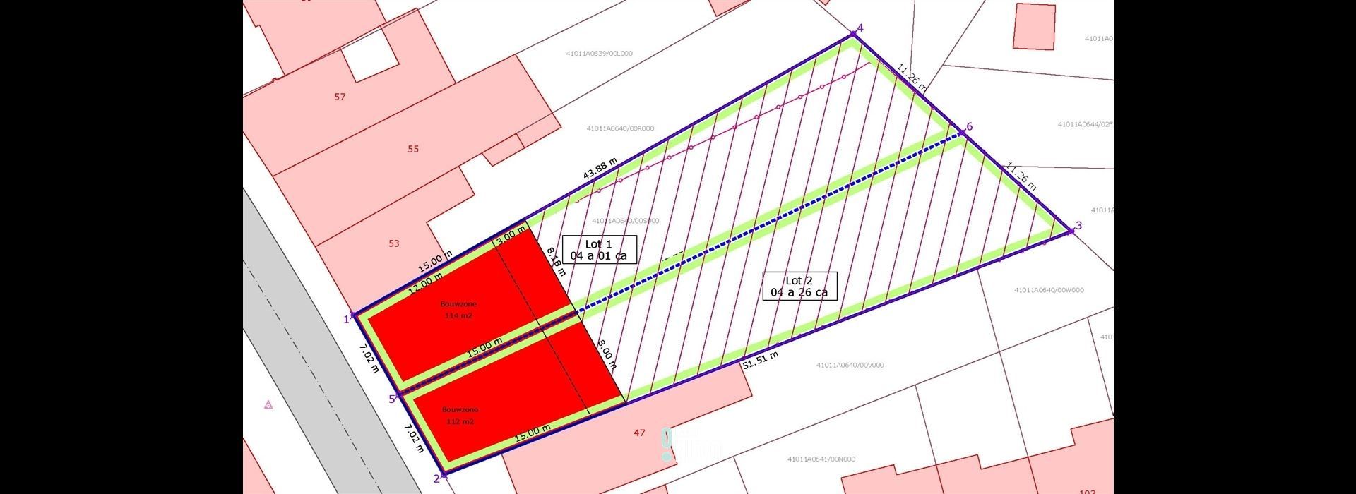
Een verkaveling bestaande uit 2 percelen bouwgrond geschikt voor het realiseren van twee centraal gelegen rijwoningen met garage en tuin.
Oppervlakte : 4a 01ca en 4a 26ca
De woningen worden voorzien op de rooilijn en hebben een bouwdiepte van 15 meter voor het gelijkvloers en een bouwdiepte van 12 meter op de eerste verdieping.
De dakverdieping wordt beperkt tot het schuine dak.
Het verkavelingsplan en de voorschriften stellen:
- inplanting op de rooilijn;
- bouwdiepte: 15m gelijkvloers inclusief uitbouw (+0), 12m verdieping (+1), dakverdieping onder het schuin dak (zie profielplannen lot 1 en 2);
- gevelbreedte: 7m (straatkant) - 8m (tuinzijde);
- kroonlijsthoogte, nokhoogte en dakhelling van Kouterbaan 53 moeten gevolgd worden;
- verhardingen: 40m² voor tuinpaden en terrassen - max. 30m² watervast - maximum 50% verharding van de tuinzone
- bergplaats/tuinhuis: maximum 40m² - maximale hoogte van 3,50m - op 1m van de zijdelingse perceelsgrenzen en op 3m van de achterste perceelgrens.
Per lot dient 1 inpandige garage voorzien te worden om de parkeerdruk op eigen perceel op te vangen, ook een fietsenstalling/berging is verplicht per lot.
Doordat er 7 meter gevelbreedte beschikbaar is, kan een inpandige garage voorzien worden.
Energie
- E-peil: E0
- Beglazing: Onbekend
Op de kaart

Downloads
Financieel
| Prijs | |
|---|---|
| Kadastraal inkomen (niet geïndexeerd) | € 0 |
| Kadastraal inkomen (geïndexeerd) | € 0 |
Berekening kosten
Je aankoopkosten? Die heb je snel berekent via de knop hieronder.
Bijkomende info
Gebouw
| Bouwcertificaat | Nee |
|---|
Perceel
| Overstromingsgevoelig | Geen |
|---|---|
| P-score | B |
| Voorkeurrecht | Nee |
| Totale oppervlakte (m²) | 401 |
Vergunning
| Vergunning | Geen beschikbaar |
|---|---|
| Verkavelingsvergunning | Vergunning beschikbaar |
Uitrusting
| Investeringspand | Nee |
|---|---|
| Rioolaansluiting | Nee |
| Gasaansluiting | Nee |
| Wateraansluiting | Nee |
| Elektriciteitsaansluiting | Nee |
| TV aansluiting | Nee |
| Internetaansluiting | Nee |
| Telefoonaansluiting | Nee |