4 halfopen energiezuinige woningen in Denderleeuw
Een pand van Immo-Desk
Favoriet
Jouw zoektocht
Jouw scoretabel voor dit pand
Aan het laden...
Jouw geplande bezichtigingen
Aan het laden...
Beschrijving
Heeft u altijd al energiezuinig en rustig willen wonen? Maak dan zeker kennis met deze 4 residentieel gelegen halfopen bebouwingen (nieuw te bouwen) in een rustige, groene omgeving (doodlopende straat) te Denderleeuw en dichtbij belangrijke invalswegen (E40, N45). Deze 3-gevel woningen houden rekening met tal van factoren. Zo kiest u bijvoorbeeld zelf het ontwerp en de afwerking die het best bij u passen en staat er een sterk accent op comfort, lichtinval, milieuvriendelijkheid en kwalitatieve materialen.
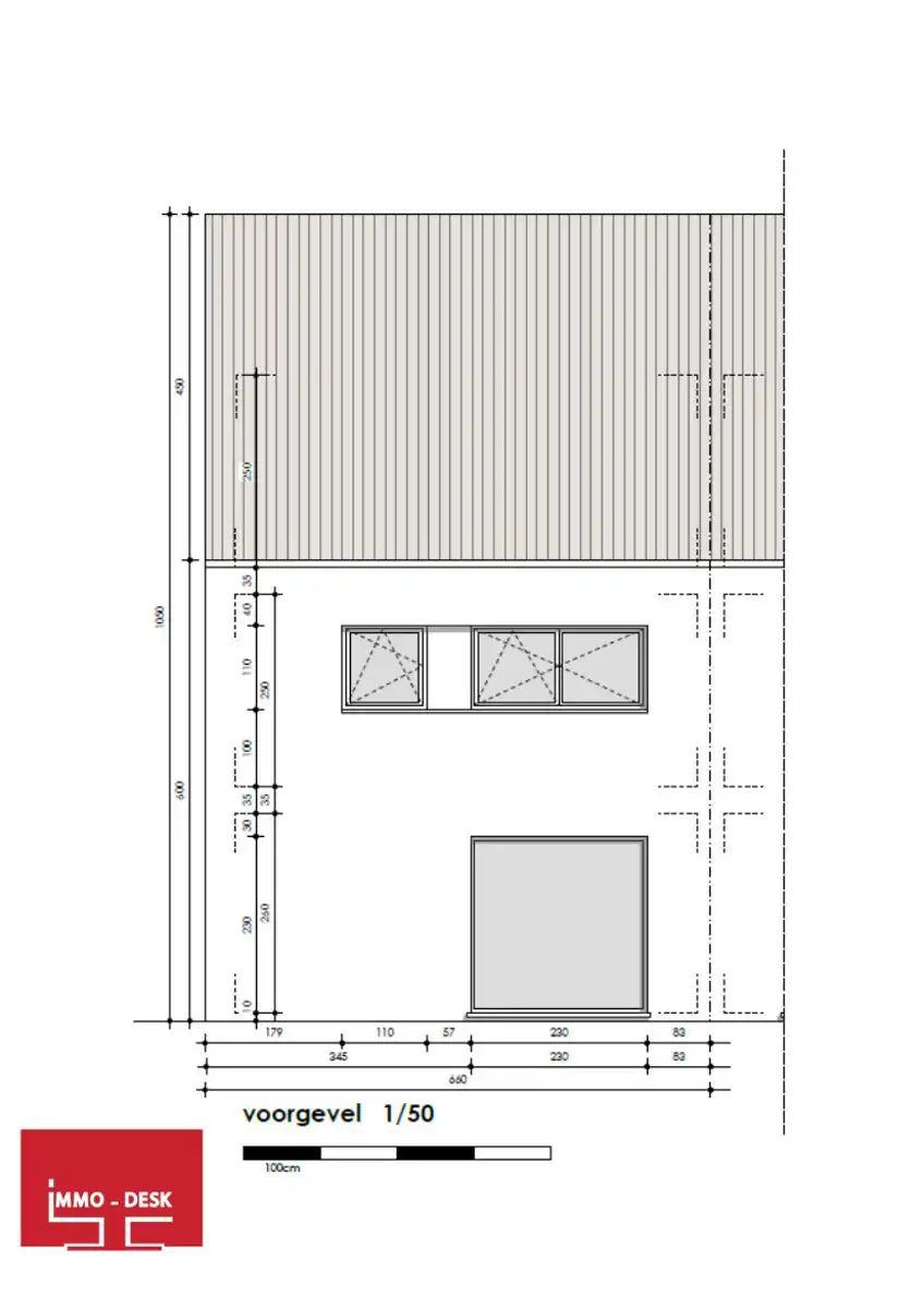
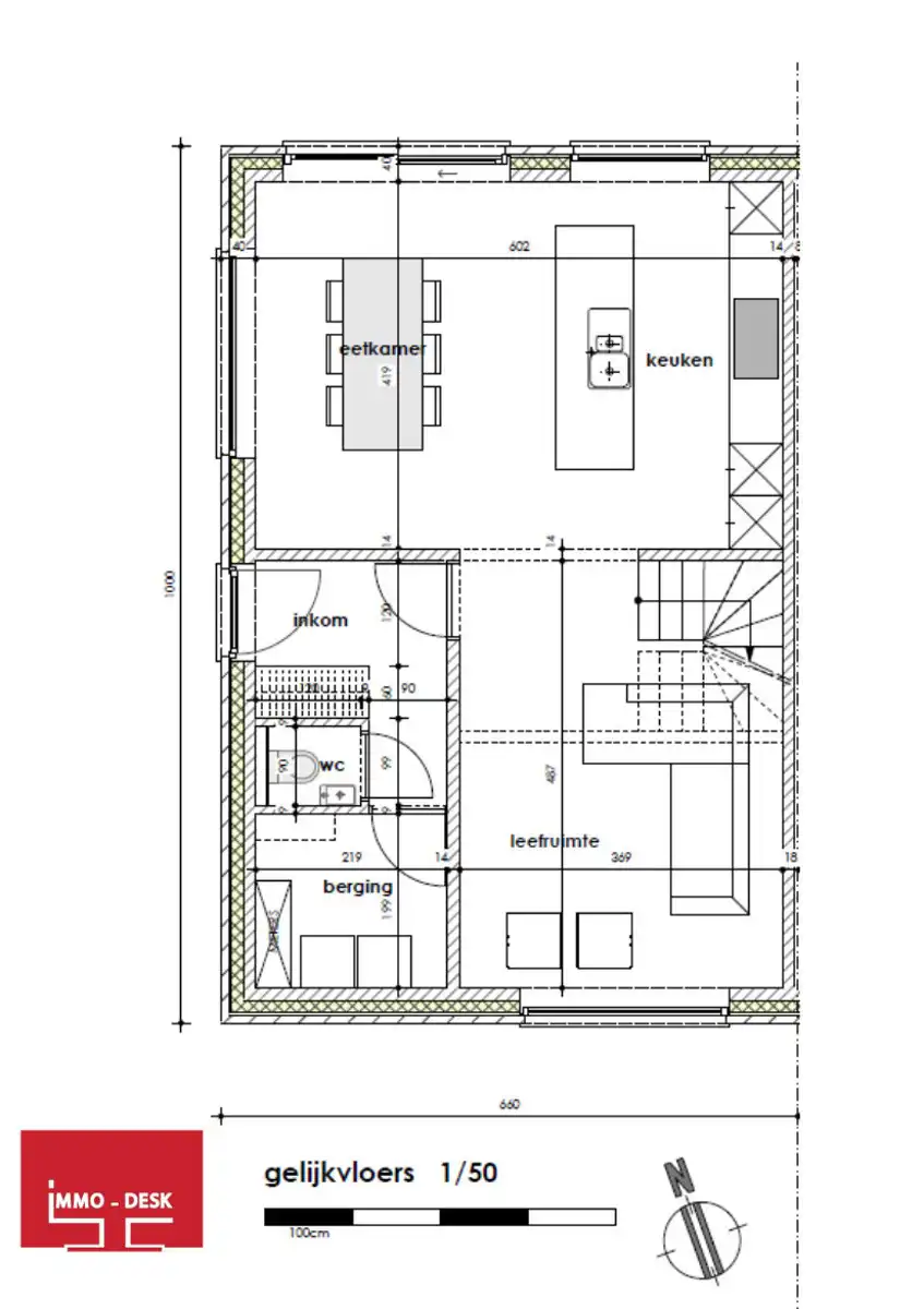
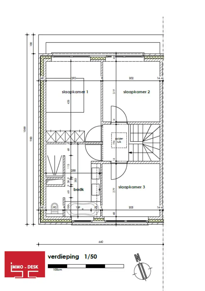
Het gelijkvloers van de voorbeeldwoning omvat een inkomhal, grote leefruimte met open keuken en prachtig zicht op de tuin. Buiten is er ook ruimte voor 2 autostaanplaatsen voorzien. Verder is er op de benedenverdieping een gastentoilet en berging. Met drie slaapkamers, badkamer, apart toilet en berging op de verdieping en nog een zolderverdieping sluit het ontwerp perfect aan bij de noden van ieders wensen.De opgegeven prijzen zijn excl. RR op de grond en BTW op de constructie en wanneer er gebouwd wordt volgens huidig plan en volgens de afwerking/ materialen voorgesteld in het lastenboek met inbegrip van volledig ingerichte keuken, badkamer, toiletten, centrale verwarming, zonnepanelen, driedubbele beglazing, warmtepomp, vloerverwarming op het gelijkvloers en in de badkamer,…
Het gelijkvloers van de voorbeeldwoning omvat een inkomhal, grote leefruimte met open keuken en prachtig zicht op de tuin. Buiten is er ook ruimte voor 2 autostaanplaatsen voorzien. Verder is er op de benedenverdieping een gastentoilet en berging. Met drie slaapkamers, badkamer, apart toilet en berging op de verdieping en nog een zolderverdieping sluit het ontwerp perfect aan bij de noden van ieders wensen.De opgegeven prijzen zijn excl. RR op de grond en BTW op de constructie en wanneer er gebouwd wordt volgens huidig plan en volgens de afwerking/ materialen voorgesteld in het lastenboek met inbegrip van volledig ingerichte keuken, badkamer, toiletten, centrale verwarming, zonnepanelen, driedubbele beglazing, warmtepomp, vloerverwarming op het gelijkvloers en in de badkamer,…
Energie
![]() |
Op de kaart

Financieel
| Prijs |
|---|
Bijkomende info
Gebouw
| Bouwjaar | 2026 |
|---|---|
| Gevels | 3 |
| Badkamers | 0 |
| Slaapkamers | 0 |
| Parkeerplaatsen | 2 |
Faciliteiten
| Type vloer |
|---|
Perceel
| Overstromingsgevoelig | Geen |
|---|---|
| P-score | C |
| Voorkeurrecht | Nee |
| Tuin oppervlakte (m²) | 0 |
Vergunning
| Vergunning | Geen beschikbaar |
|---|---|
| Verkavelingsvergunning | Vergunning beschikbaar |
| Bouwovertreding | Geen |
| Bouwovertreding dagvaardiging | Geen |
Uitrusting
| Parking | Nee |
|---|---|
| Garage | Nee |
| Tuin | Nee |
| Terras | Nee |
Een pand van
Immo-Desk
Welkom bij Immo-Desk!
Wij zijn gespecialiseerd in de verkoop en verhuur van bestaande woningen en appartementen en de verkoop van nieuwbouwprojecten en projectgronden. Je kan bij ons ook terecht voor een gratis waardebepaling van je eigendom.
Wat ook je plannen zijn, als erkend makelaar streven we naar de hoogste klantentevredenheid. We kennen het juridisch kader en geven graag een antwoord op al jouw vragen. Je verkoopt jouw woning of zoekt een nieuwe woonst? Elke klant kan op onze professionele hulp rekenen. Contacteer ons gerust op 0498/91 12 34.
Leer meer over vastgoed
24 April 2026
Duurzaam gelegen woning? Check je Mobiscore
23 March 2026
Op Spotto zoeken als een pro: 10 slimme tips
21 March 2026
Hoeveel kan ik lenen om een huis te kopen?
01 March 2026
