In optie
Instapklare halfopen bebouwing met ruime kelder
€ 349.000
Een pand van Berno Vastgoed
Overzicht
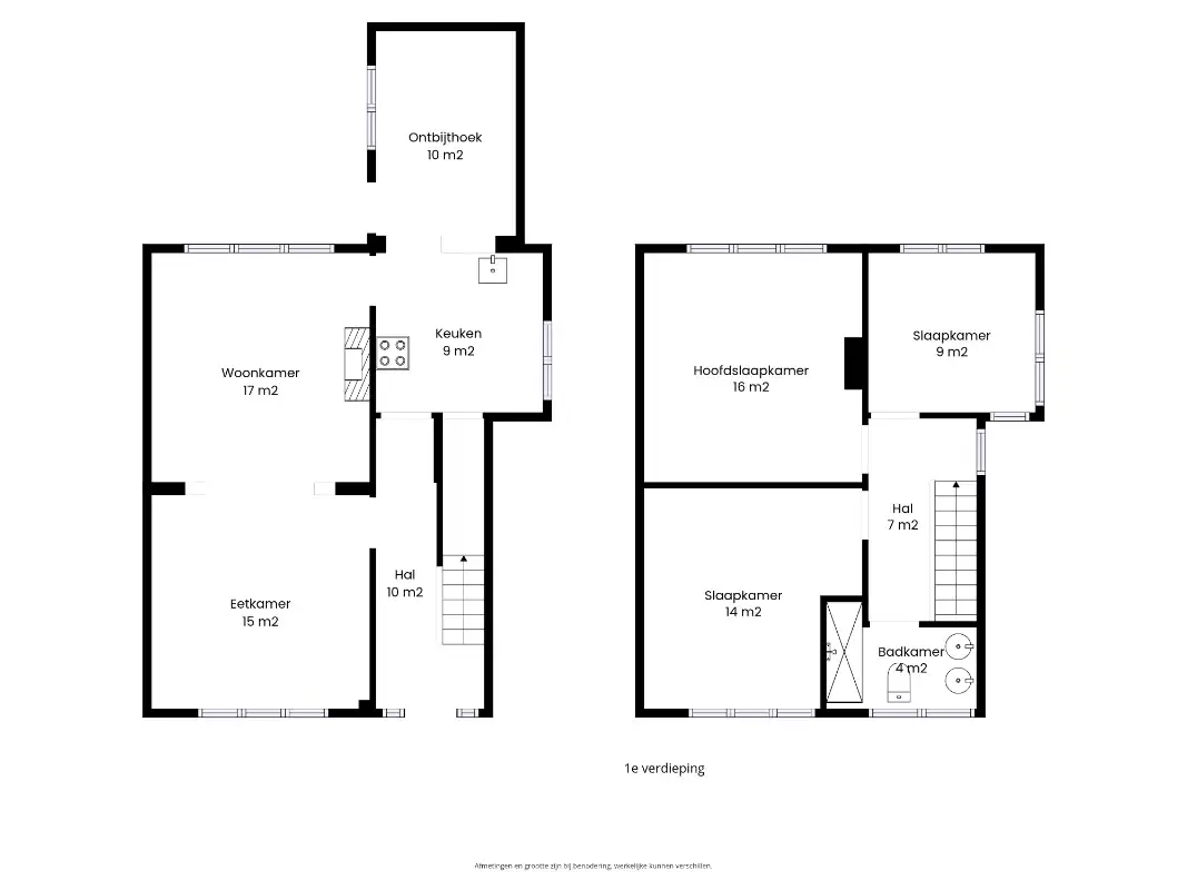
- 132 m² bewoonbaar
- 241 m² grond
- 3 Slaapkamer(s)
- 1 Badkamer(s)
Overstromingsgevaar gebouw
Overstromingsgevaar perceel
Beschrijving
Instapklare halfopen bebouwing met ruime kelder
📍 Broekstraat 62, 9473 Welle
🛏️ 3 slaapkamers
In een rustige woonstraat in Welle, met een vlotte verbinding naar het centrum, openbaar vervoer en de belangrijkste invalswegen, bevindt zich deze aangename gezinswoning. De ligging combineert een residentieel karakter met een goede bereikbaarheid richting Denderleeuw, Aalst en Ninove.
Op het gelijkvloers vindt u een gezellige leefruimte en keuken, terwijl de verdieping plaats biedt aan drie slaapkamers en een moderne badkamer die comfort en hedendaagse afwerking combineert.
Een belangrijk pluspunt is de zeer ruime kelder, uitgevoerd met betonnen gewelven, die ideaal kan dienen als wasplaats, hobbyruimte of extra stockageruimte.
Achteraan geniet u van een overdekt terras en een zonnige tuin, perfect om het hele jaar door buiten te vertoeven, ongeacht het seizoen.
Troeven
Deze woning is ideaal voor wie op zoek is naar een praktische gezinswoning met extra bergruimte en een aangename ligging.
Voor meer informatie of een bezoek ter plaatse kunt u contact opnemen via niels@berno.be of telefonisch op 052/20.24.40.
📍 Broekstraat 62, 9473 Welle
🛏️ 3 slaapkamers
In een rustige woonstraat in Welle, met een vlotte verbinding naar het centrum, openbaar vervoer en de belangrijkste invalswegen, bevindt zich deze aangename gezinswoning. De ligging combineert een residentieel karakter met een goede bereikbaarheid richting Denderleeuw, Aalst en Ninove.
Op het gelijkvloers vindt u een gezellige leefruimte en keuken, terwijl de verdieping plaats biedt aan drie slaapkamers en een moderne badkamer die comfort en hedendaagse afwerking combineert.
Een belangrijk pluspunt is de zeer ruime kelder, uitgevoerd met betonnen gewelven, die ideaal kan dienen als wasplaats, hobbyruimte of extra stockageruimte.
Achteraan geniet u van een overdekt terras en een zonnige tuin, perfect om het hele jaar door buiten te vertoeven, ongeacht het seizoen.
Troeven
- EPC-label D
- CV op gas
- Betonnen gewelven
- Zeer ruime kelder, ideaal als wasplaats of stockage
- Moderne badkamer
- 3 slaapkamers
- Ruime zolderruimte
Deze woning is ideaal voor wie op zoek is naar een praktische gezinswoning met extra bergruimte en een aangename ligging.
Voor meer informatie of een bezoek ter plaatse kunt u contact opnemen via niels@berno.be of telefonisch op 052/20.24.40.
Energie
![]() |
- EPC Certificaat: 20240614-0003112183-RES-2
- Energieverbruik: 397 kWh/m²/jaar
- E-peil: E0
- Beglazing: Onbekend
Extra budget nodig voor je renovatie?
De overheid helpt je dit pand energetisch te renoveren! Hieronder zie je het premiebedrag dat je mogelijks van de overheid krijgt.
Het huidige EPC-label is:

Op de kaart

Financieel
| Prijs |
|---|
Berekening kosten
Je aankoopkosten? Die heb je snel berekend via de knop hieronder.
Bijkomende info
Gebouw
| Bouwjaar | 1960 |
|---|---|
| Staat | Goed onderhouden |
| Bewoonbaar (m²) | 132 |
| Badkamers | 1 |
| Slaapkamers | 3 |
| Verdiepingen | 0 |
| Garages | 0 |
| Parkeerplaatsen | 0 |
| Toiletten | 0 |
Faciliteiten
| Septische tank | Nee |
|---|
Perceel
| Overstromingsgevoelig | Geen |
|---|---|
| P-score | D |
| G-score | D |
| Totale oppervlakte (m²) | 241 |
| Bebouwde oppervlakte (m²) | 0 |
| Oriëntatie tuin | West |
Vergunning
| Verkavelingsvergunning | Geen beschikbaar |
|---|
Uitrusting
| Investeringspand | Nee |
|---|---|
| Parking | Nee |
| Garage | Nee |
| Lift | Nee |
| Rioolaansluiting | Ja |
| Gasaansluiting | Ja |
| Wateraansluiting | Ja |
| Elektriciteitsaansluiting | Ja |
| Internetaansluiting | Ja |
| Telefoonaansluiting | Nee |
| Zonnepanelen | Nee |
| Zonneboiler | Nee |
| Alarm | Nee |
| Videofoon | Nee |
| Grondwaterput | Nee |
Een pand van
Berno Vastgoed
Berno Vastgoed
Vastgoed in vertrouwen
Broekstraat 62, WelleC
Leer meer over vastgoed
01 March 2026
Wanneer heb ik een bouwvergunning of omgevingsvergunning nodig?
17 February 2026
Hoe breng ik een bod uit op een woning?
24 November 2025
Uitgezocht voor jouw gemeente: Hoeveel stijgt de waarde van je woning door een renovatie?
22 October 2025


