Energiezuinige nieuwbouw , 3slpk aan 6% BTW*
€ 549.000
Een pand van Cornelis & Partners
Overzicht
- 279.4 m² bewoonbaar
- 113 m² grond
- 3 Slaapkamer(s)
- 3 Badkamer(s)
- 2 Toilet(ten)
Beschrijving
Op zoek naar een volledig afgewerkte hoogwaardige nieuwbouwwoning aan 6 % BTW*. Dan is dit een mooie opportuniteit
Deze woning met een bewoonbaar opp. maar liefst 280 m2, in high-end architectuur heeft een eigen lift (rolstoeltoegankelijk) van het gelijkvloers tot op de derde verdieping.
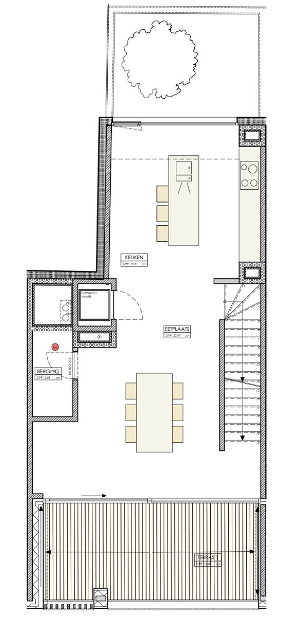
Op het gelijkvloers: de inkomhal (+ toilet), aan de straatzijde een lichtrijke ruimte, ideaal voor wie op zoek is naar een bureel of praktijkruimte voor vrij beroep, een (ingerichte) badkamer, berging en extra (slaap)kamer. Door de polyvalente inrichting biedt deze verdieping een opportuniteit voor wie o.a. gelijkvloers (rolstoeltoegankelijke) (groeps-)praktijkruimte, kantoorruimte..... zoekt.
Er is mogelijkheid om de woning volledig afwerkt aan te kopen met onderstaand vermelde hoogwaardige en stijlvolle afwerking zoals foto's (van naastgelegen afgewerkte woning) in deze advertentie.
Op de 1e verdieping een open keuken + woonruimte van waaruit u toegang heeft tot het ruime terras
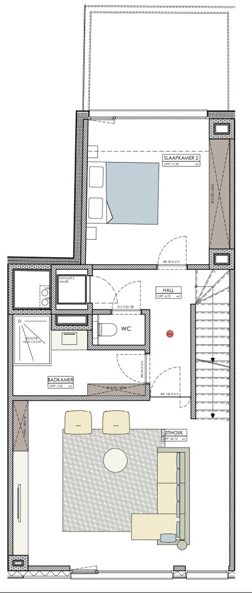
De twee verdieping omvat een zithoek , ruime slaapkamer, badkamer en afzonderlijk toilet.
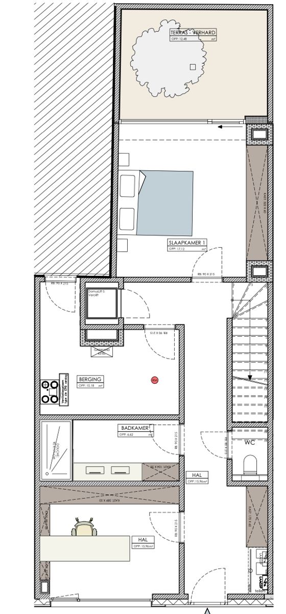
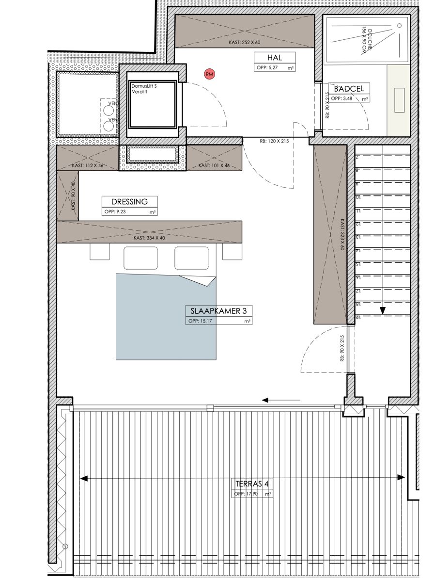
Vanop de 3e verdieping heeft U vanuit de lichtrijke slaapkamer met dressing, douchekamer, .... toegang tot het terras.
Momenteel kan deze woning nog "casco" aangekocht worden en de indeling aangepast worden naar uw wensen, prijs afwerking beschikbaar op aanvraag.*
Interesse in een bezoek of graag bijkomende info?
Contacteer Pieter Cardoen op 0475 361252.
*Contacteer ons i.v.m. de voorwaarden.
Deze woning met een bewoonbaar opp. maar liefst 280 m2, in high-end architectuur heeft een eigen lift (rolstoeltoegankelijk) van het gelijkvloers tot op de derde verdieping.
Op het gelijkvloers: de inkomhal (+ toilet), aan de straatzijde een lichtrijke ruimte, ideaal voor wie op zoek is naar een bureel of praktijkruimte voor vrij beroep, een (ingerichte) badkamer, berging en extra (slaap)kamer. Door de polyvalente inrichting biedt deze verdieping een opportuniteit voor wie o.a. gelijkvloers (rolstoeltoegankelijke) (groeps-)praktijkruimte, kantoorruimte..... zoekt.
Er is mogelijkheid om de woning volledig afwerkt aan te kopen met onderstaand vermelde hoogwaardige en stijlvolle afwerking zoals foto's (van naastgelegen afgewerkte woning) in deze advertentie.
Op de 1e verdieping een open keuken + woonruimte van waaruit u toegang heeft tot het ruime terras
De twee verdieping omvat een zithoek , ruime slaapkamer, badkamer en afzonderlijk toilet.
Vanop de 3e verdieping heeft U vanuit de lichtrijke slaapkamer met dressing, douchekamer, .... toegang tot het terras.
Momenteel kan deze woning nog "casco" aangekocht worden en de indeling aangepast worden naar uw wensen, prijs afwerking beschikbaar op aanvraag.*
Interesse in een bezoek of graag bijkomende info?
Contacteer Pieter Cardoen op 0475 361252.
*Contacteer ons i.v.m. de voorwaarden.
Energie
![]() |
Op de kaart

Downloads
- WONING 2- gelijkvloers.pdf (pdf)
- WONING 2- niveau 1.pdf (pdf)
- WONING 2- niveau 2.pdf (pdf)
- WONING 2 - niveau 3.pdf (pdf)
- Lastenboek woning 2.pdf (pdf)
Financieel
| Prijs |
|---|
Berekening kosten
Je aankoopkosten? Die heb je snel berekent via de knop hieronder.
Bijkomende info
Gebouw
| Staat | Nieuw |
|---|---|
| Bewoonbaar (m²) | 279.4 |
| Gevels | 2 |
| Badkamers | 3 |
| Slaapkamers | 3 |
| Verdiepingen | 4 |
| Parkeerplaatsen | 0 |
| Doucheruimtes | 3 |
| Toiletten | 2 |
Faciliteiten
| Type vloer | |
|---|---|
| Keuken uitrusting | Luxueus uitgerust |
Perceel
| P-score | A |
|---|---|
| G-score | A |
| Voorkeurrecht | Ja |
| Totale oppervlakte (m²) | 113 |
| Tuin oppervlakte (m²) | 0 |
Vergunning
| Vergunning | Vergunning beschikbaar |
|---|---|
| Verkavelingsvergunning | Vergunning beschikbaar |
| Bouwovertreding | Geen |
| Bouwovertreding dagvaardiging | Geen |
Uitrusting
| Geschikt voor rolstoelgebruikers | Ja |
|---|---|
| Parking | Nee |
| Garage | Nee |
| Tuin | Nee |
| Terras | Ja |
| Lift | Ja |
| Gasaansluiting | Ja |
| Wateraansluiting | Ja |
| Elektriciteitsaansluiting | Ja |
| TV aansluiting | Ja |
| Telefoonaansluiting | Ja |
| Zwembad | Nee |
| Zwemvijver | Nee |
| Videofoon | Ja |
Een pand van
Cornelis & Partners
Samen sterk in vastgoed
Sinds 1993 is Cornelis & Partners een gevestigde waarde in de vastgoedsector met 6 kantoren te Merelbeke-Gent, Geraardsbergen, Antwerpen, Sint-Lievens-Houtem, Beveren en Oudenaarde. Een enthousiast, dynamisch team van 28 vastgoedadviseurs en BIV-erkende vastgoedmakelaars, staat u graag bij met de nodige bagage.(Ver)kopen, (ver)huren of investeren? Wij begeleiden u op een professionele, persoonlijke manier bij het zoeken naar uw droomwoning alsook bij het vinden van de juiste koper van uw eigendom. Contacteer ons voor gratis advies!
7043922
Leer meer over vastgoed
Nieuw
24 November 2025
Uitgezocht voor jouw gemeente: Hoeveel stijgt de waarde van je woning door een renovatie?
22 October 2025
Hoeveel kan ik lenen om een huis te kopen?
11 June 2025
Huis kopen met bouwovertreding? Dit moet je weten
11 May 2025
