Nieuw
Energiezuinige nieuwbouwwoning te koop - 6% BTW onder voorwaarden
Een pand van Huysman Bouw
Overzicht
- 530 m² grond
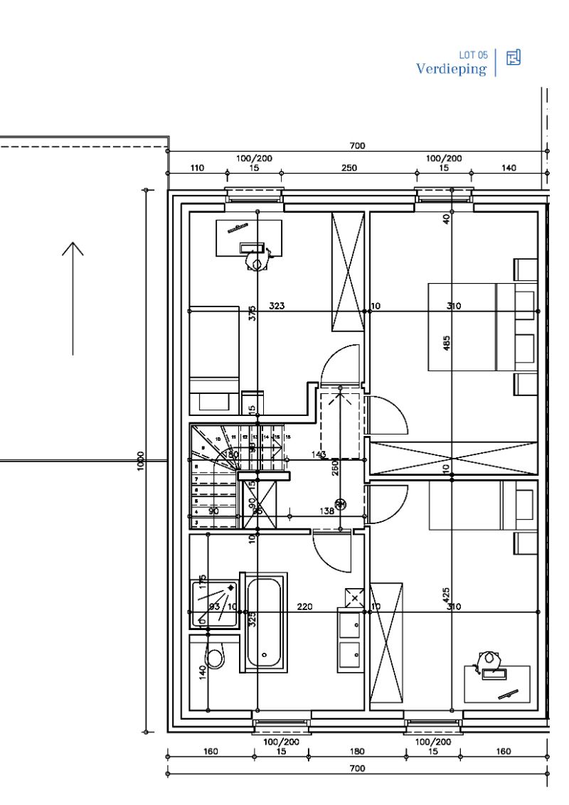
- 3 Slaapkamer(s)
- 1 Badkamer(s)
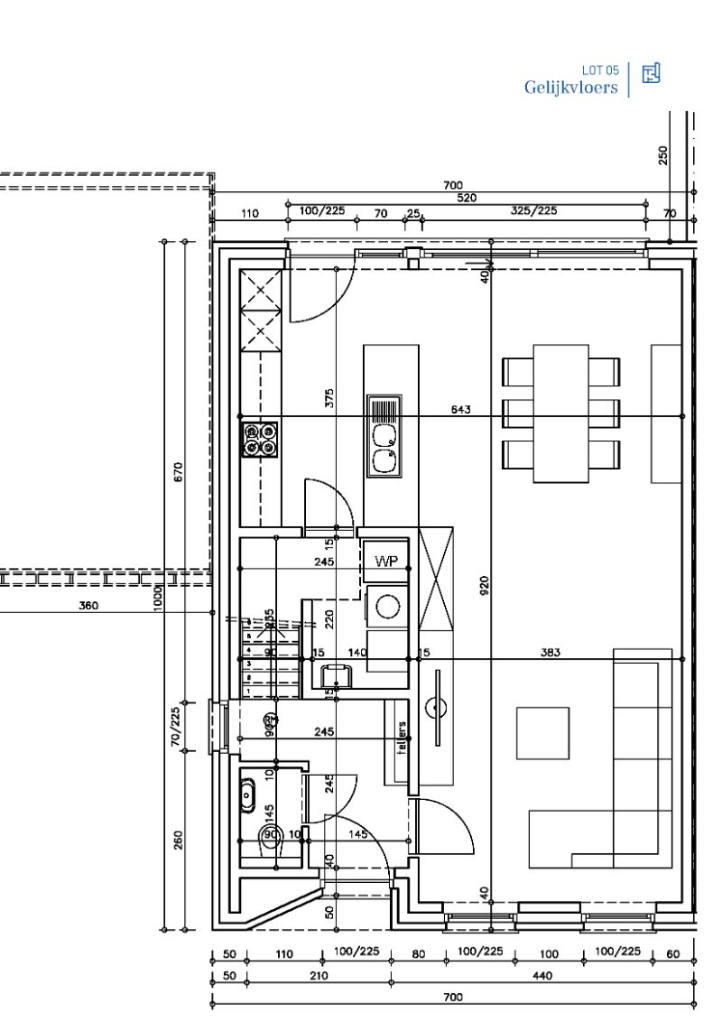
- 2 Toilet(ten)
- 1 Tuin
Beschrijving
Energiezuinige nieuwbouwwoning
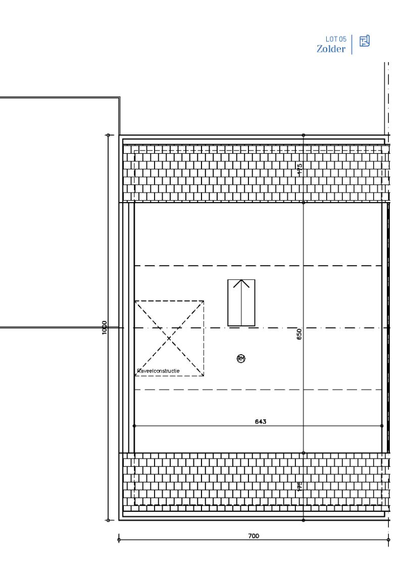
Deze moderne woning is gelegen vlak aan de ingang van het provinciaal domein De Gavers te Geraardsbergen. De woning staat reeds winddicht gebouwd op een zuid georiënteerd perceel van 530m2. Snelle beslissers die aan de voorwaarden voldoen kunnen deze woning gedeeltelijk kopen aan 6% BTW op voorwaarde dat de akte nog dit jaar passeert. De interieurafwerking van de woning is 100% op maat. Je kiest dus zelf de technieken, vloeren, keuken, badkamer,... a.d.h.v ruime budgetten in het lastenboek. De woningen zijn sowieso voorzien van alle moderne technieken: standaard is een warmtepomp en vloerverwarming inbegrepen. Op het gelijkvloers van de woning is er een praktische was/bergplaats, een inkomhal met gastentoilet en een lichtrijke leefruimte met open keuken. Op de eerste verdieping bevinden zich 3 slaapkamers en een badkamer met bad/douche. De praktische zolder is toegankelijk met een uitschuifbare zoldertrap. De carport aan de woning is inbegrepen. Wens je meer info over deze woning? Contacteer de bouwadviseur Ewout op 0497 588 888 of mail naar contact@huysmanbouw.be
Energie
- E-peil: E0
- Beglazing: Onbekend
Op de kaart

Financieel
Prijs |
---|
Bijkomende info
Gebouw
Staat | Zo goed als nieuw |
---|---|
Bouwcertificaat | Ja |
Verdieping | 0 |
Badkamers | 1 |
Slaapkamers | 3 |
Verdiepingen | 0 |
Garages | 0 |
Parkeerplaatsen | 1 |
Toiletten | 2 |
Faciliteiten
Septische tank | Nee |
---|
Perceel
Overstromingsgevoelig | Geen |
---|---|
Totale oppervlakte (m²) | 530 |
Bebouwde oppervlakte (m²) | 0 |
Tuin oppervlakte (m²) | 0 |
Vergunning
Verkavelingsvergunning | Geen beschikbaar |
---|
Uitrusting
Investeringspand | Nee |
---|---|
Parking | Ja |
Garage | Nee |
Zolder | Ja |
Tuin | Ja |
Lift | Nee |
Rioolaansluiting | Ja |
Gasaansluiting | Ja |
Wateraansluiting | Ja |
Elektriciteitsaansluiting | Ja |
Internetaansluiting | Ja |
Telefoonaansluiting | Ja |
Zonnepanelen | Nee |
Zonneboiler | Nee |
Alarm | Nee |
Videofoon | Nee |
Grondwaterput | Ja |
Een pand van
Huysman Bouw
Bouwen mét vertrouwen
Huysman Bouw staat voor meer dan 50 jaar ervaring in bouwen van nieuwbouwwoningen en appartementen in Oost- en West-Vlaanderen. Wij dragen kwaliteit, flexibiliteit en klantvriendelijkheid hoog in het vaandel. Een combinatie van toplocaties, doordachte en gevarieerde architectuur en een interieur afwerking op maat maken van iedere woning een echte thuis. Jong, single, gezin of senior? Wij creëren een sleutel-op-de-deur-woning, afgewerkt appartement of bouwproject op jouw maat.
Geraardsbergen, Onkerzelestr. - 1 fase: Lot 05 OKT25
Leer meer over vastgoed
11 June 2025
Huis kopen met bouwovertreding? Dit moet je weten
11 May 2025
Renoveren? Vraag je Mijn VerbouwPremie aan
22 April 2025
Je allereerste renovatieproject selecteren én budgetteren: met de praktische hulp van Spotto
17 February 2025