PROJECTGROND VOOR 2 APPARTEMENTEN
€ 150.000
Een pand van Makelaarskantoor De Smet
Overzicht
- 298 m² bewoonbaar
- 300 m² grond
- 4 Slaapkamer(s)
- 2 Badkamer(s)
- 2 Toilet(ten)
Overstromingsgevaar gebouw
Overstromingsgevaar perceel
Beschrijving
PROJECTGROND VOOR 2 APPARTEMENTEN TE VIANE
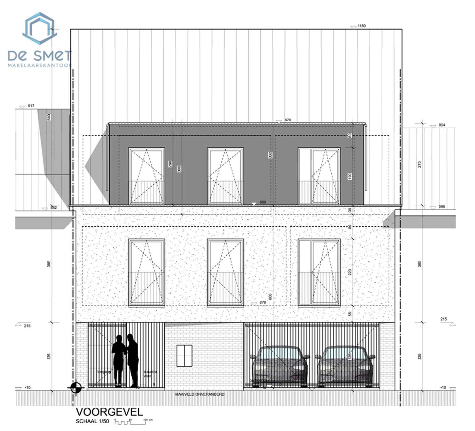
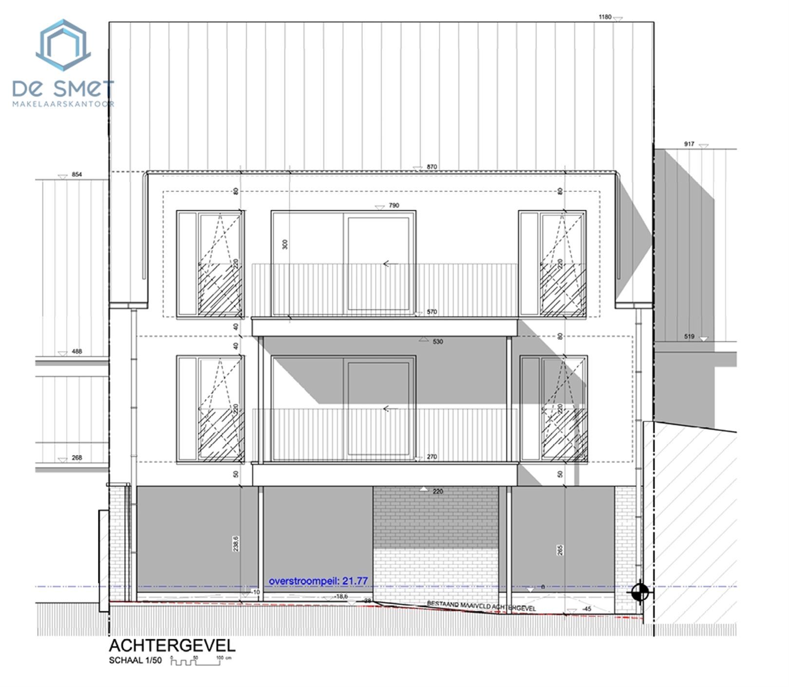
PROJECTGROND MET PLANNEN EN VERGUNNING VOOR 2 APPARTEMENTEN .
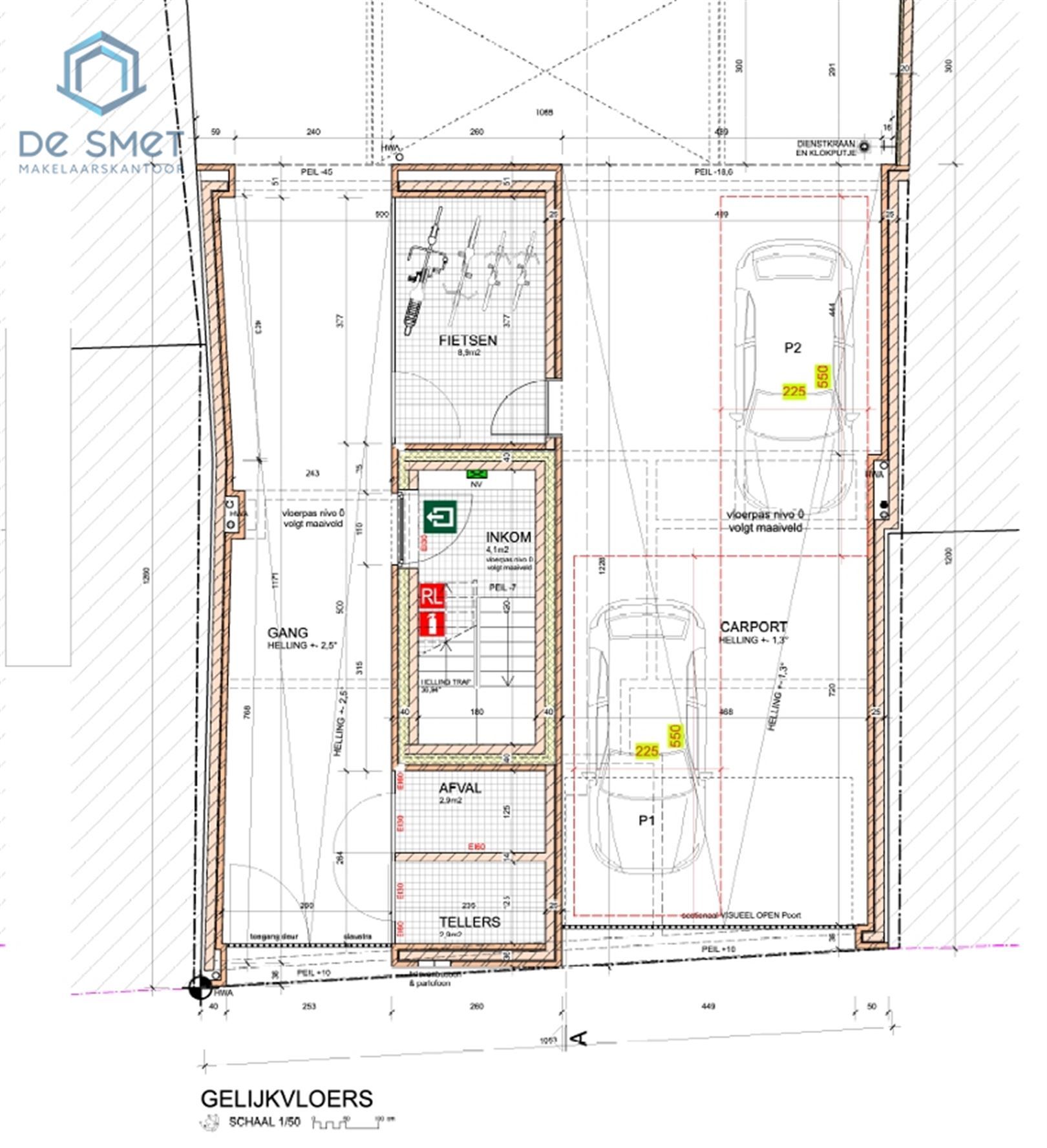
Dit betreft een gelijkvloers waar er inkomhal, bergingen en fietsenstalling alsook grote carport aanwezig is voor 2 wagens.alsook een tuinstrook.
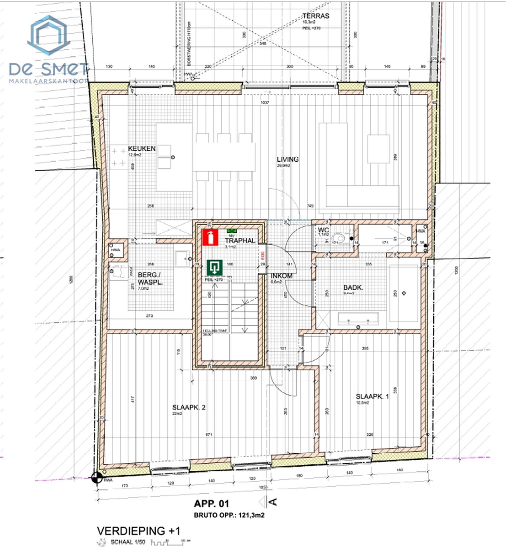
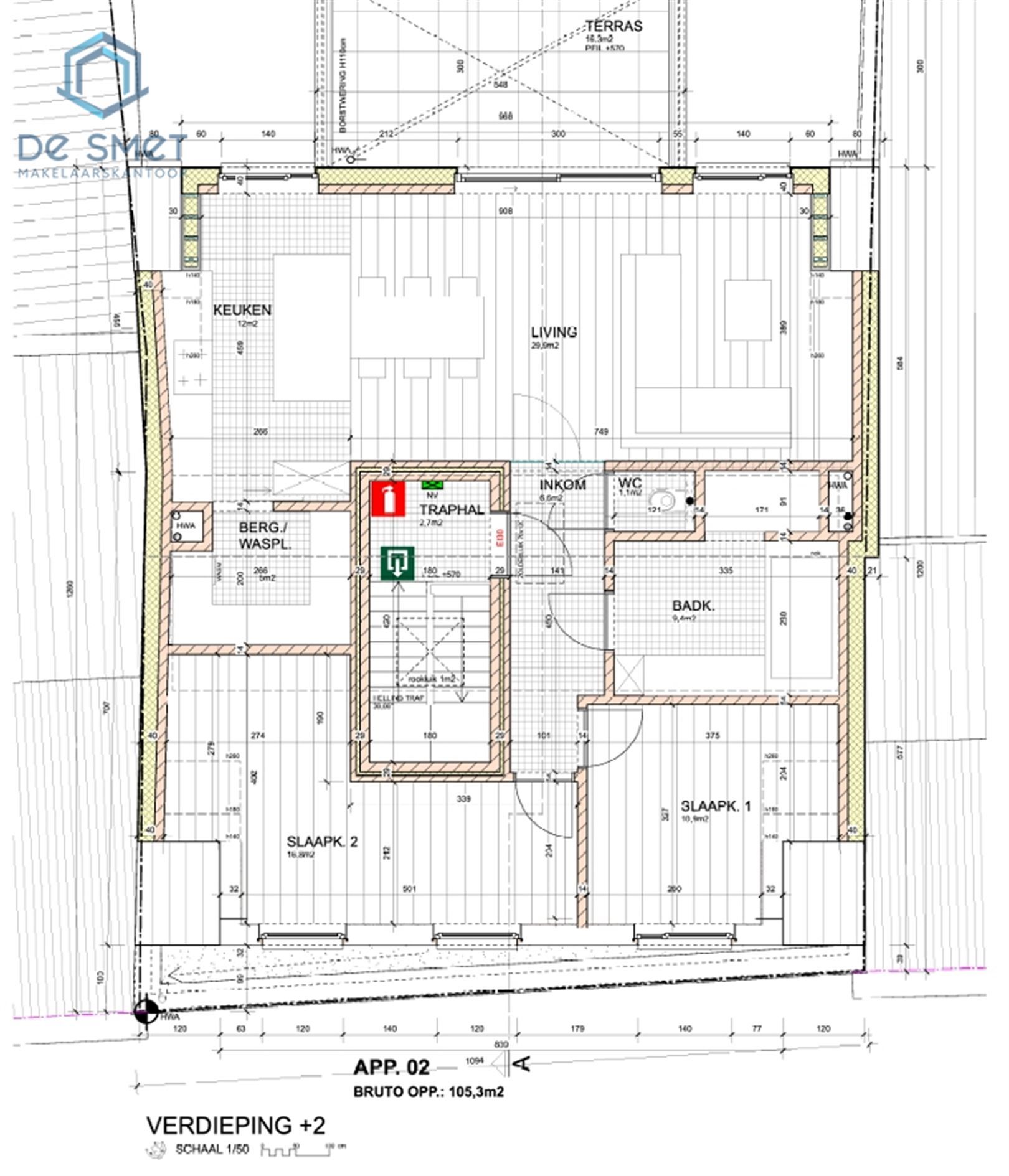
Op de eerste verdieping en 2e verdieping treft men 2 appartementen met als indeling:
Inkomhal, gastentoilet, ruime lichtrijke living met open keuken en terras, berging, badkamer en 2 slaapkamers.
De plannen zijn reeds voorhanden en worden meegeleverd alsook de vergunning voor de bouw van de 2 appartementen;
Voor inlichtingen of bezoek gelieve op de advertentie te reageren, wij bellen u dan zelf op om een afspraak in te plannen.
Energie
- E-peil: E0
- Beglazing: Onbekend
Op de kaart

Downloads
- Vergunning.PDF
- 1e verdieping.png
- 2e verdieping.png
- achtergevel.png
- doorsnede.jpg
- fundering.png
- Gelijkvloers.png
- inplantingsplan.png
- voorgevel.png
- kadastraal plan B11 02A.pdf
- kadastraal plan B12 A2.pdf
- rvv - nee.pdf
- ActaMaps - De Plaats, 9500 Viane (41070B001202A000).pdf
- ActaMaps - Edingseweg 416, 9500 Viane (41070B001102A000).pdf
- ActaMaps Perceelrapport Onroerend Erfgoed (41070B001102A000).pdf
- ActaMaps Perceelrapport Onroerend Erfgoed (41070B001202A000).pdf
- ActaMaps Risicozones overstromingen (41070B001102A000).pdf
- ActaMaps Risicozones overstromingen (41070B001202A000).pdf
- ActaMaps Watertoets (41070B001102A000).pdf
- ActaMaps Watertoets (41070B001202A000).pdf
- KLIM-CICC aanvraag (2c1e9b46-de64-89d3-da5f-9bfcbdeb136e) ref (CJ29265)... (156 kB).msg
- KLIP Edingseweg 416.png
- klip tuingrond.png
- KLIM-CICC aanvraag (4876ba60-8ce9-d6b5-2c49-cc79884312dc) ref (CJ29265)... (159 kB).msg
- ABA_41070B001102A000_20250351380.pdf
- ABA_41070B001202A000_20250351381.pdf
Financieel
Prijs | |
---|---|
Kadastraal inkomen (niet geïndexeerd) | € 2 |
Kadastraal inkomen (geïndexeerd) | € 0 |
Berekening kosten
Je aankoopkosten? Die heb je snel berekent via de knop hieronder.
Bijkomende info
Gebouw
Bouwcertificaat | Nee |
---|
Perceel
Overstromingsgevoelig | Mogelijk overstromingsgevoelig |
---|---|
P-score | D |
Voorkeurrecht | Nee |
Totale oppervlakte (m²) | 300 |
Vergunning
Vergunning | Vergunning beschikbaar |
---|---|
Verkavelingsvergunning | Vergunning beschikbaar |
Uitrusting
Investeringspand | Nee |
---|---|
Rioolaansluiting | Nee |
Gasaansluiting | Nee |
Wateraansluiting | Nee |
Elektriciteitsaansluiting | Nee |
TV aansluiting | Nee |
Internetaansluiting | Nee |
Telefoonaansluiting | Nee |