RUSTIG GELEGEN GROND VOOR OB
Een pand van VASTGOED SVENA
Jouw zoektocht
Overzicht
- 539 m² grond
Beschrijving
RUSTIG GELEGEN GROND VOOR OB
Vraagprijs : 149.000 euro
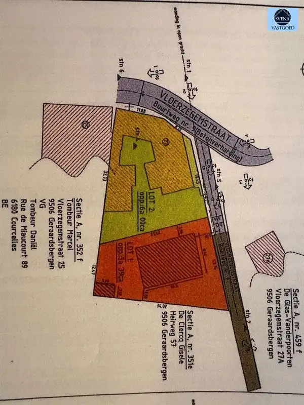
Dit goed gelegen perceel voor een open bebouwing met een oppervlakte. van 5a39 is gelegen in het pittoreske dorp nabij kerk en dorpskern.
De straat breedte bedraagt +-23m75 en de diepte van het perceel +-34m.
Wie houdt van de rust is hier zeker aan het goede adres.
Aansluitingskosten van de nutsvoorzieningen zijn ten laste van de klant.
Alle info beschikbaar op kantoor.
Stedenbouwkundig uittreksel/inlichtingen in aanvraag!
Voor meer info of bezoek bel 0475/51.40.73 of stuur een email naar sven@svena.be. Voor info zie www.svena.be
Deze gegevens zijn louter informatief en wij kunnen niet aansprakelijk gesteld worden voor eventuele onjuistheden.
De bewoonbare oppervlakte is slechts indicatief.
Energie
- E-peil: E0
- Beglazing: Onbekend
Op de kaart

Financieel
| Prijs | |
|---|---|
| Kadastraal inkomen (niet geïndexeerd) | € 0 |
| Kadastraal inkomen (geïndexeerd) | € 0 |
Berekening kosten
Je aankoopkosten? Die heb je snel berekend via de knop hieronder.
Bijkomende info
Gebouw
| Bouwcertificaat | Nee |
|---|
Perceel
| Overstromingsgevoelig | Geen |
|---|---|
| P-score | C |
| Voorkeurrecht | Ja |
| Totale oppervlakte (m²) | 539 |
Vergunning
| Vergunning | Aanvraag ingediend |
|---|---|
| Verkavelingsvergunning | Aanvraag ingediend |
Uitrusting
| Investeringspand | Nee |
|---|---|
| Rioolaansluiting | Nee |
| Gasaansluiting | Nee |
| Wateraansluiting | Nee |
| Elektriciteitsaansluiting | Nee |
| TV aansluiting | Nee |
| Internetaansluiting | Nee |
| Telefoonaansluiting | Nee |