Nieuw
PROJECTGROND VOOR OPEN BEBOUWING OF 2 HOB OF PROJECT GARAGECOMPLEX OF OPEN BEBOUWING
€ 320.000
Een pand van Makelaarskantoor De Smet
Overzicht
- 3079 m² grond
Beschrijving
PROJECTGROND VOOR OPEN BEBOUWING OF 2 HOB OF PROJECT GARAGECOMPLEX OF OPEN BEBOUWING
Project 2 half open bebouwingen of open bebouwing te Zandbergen.
Deze rustig gelegen grond is het ideale project voor 2 HOB en/of garagebox complex te voorzien.
Breedte grond +- 30 meter en diepte +- 123 meter.
Voor inlichtingen bel diego op 0472/712.337 .
Energie
- E-peil: E0
- Beglazing: Onbekend
Op de kaart

Downloads
- Overstromingsrapport.pdf
- risicokaart_waterbeheerder.pdf
- BA_CO14_G_N_1_voorgevel.pdf
- BA_CO14_G_N_2_zijgevel rechts.pdf
- BA_CO14_G_N_3_zijgevel links.pdf
- BA_CO14_G_N_4_achtergevel.pdf
- BA_CO14_I_N_1_inplantingsplan.pdf
- BA_CO14_L_N_1_legende.pdf
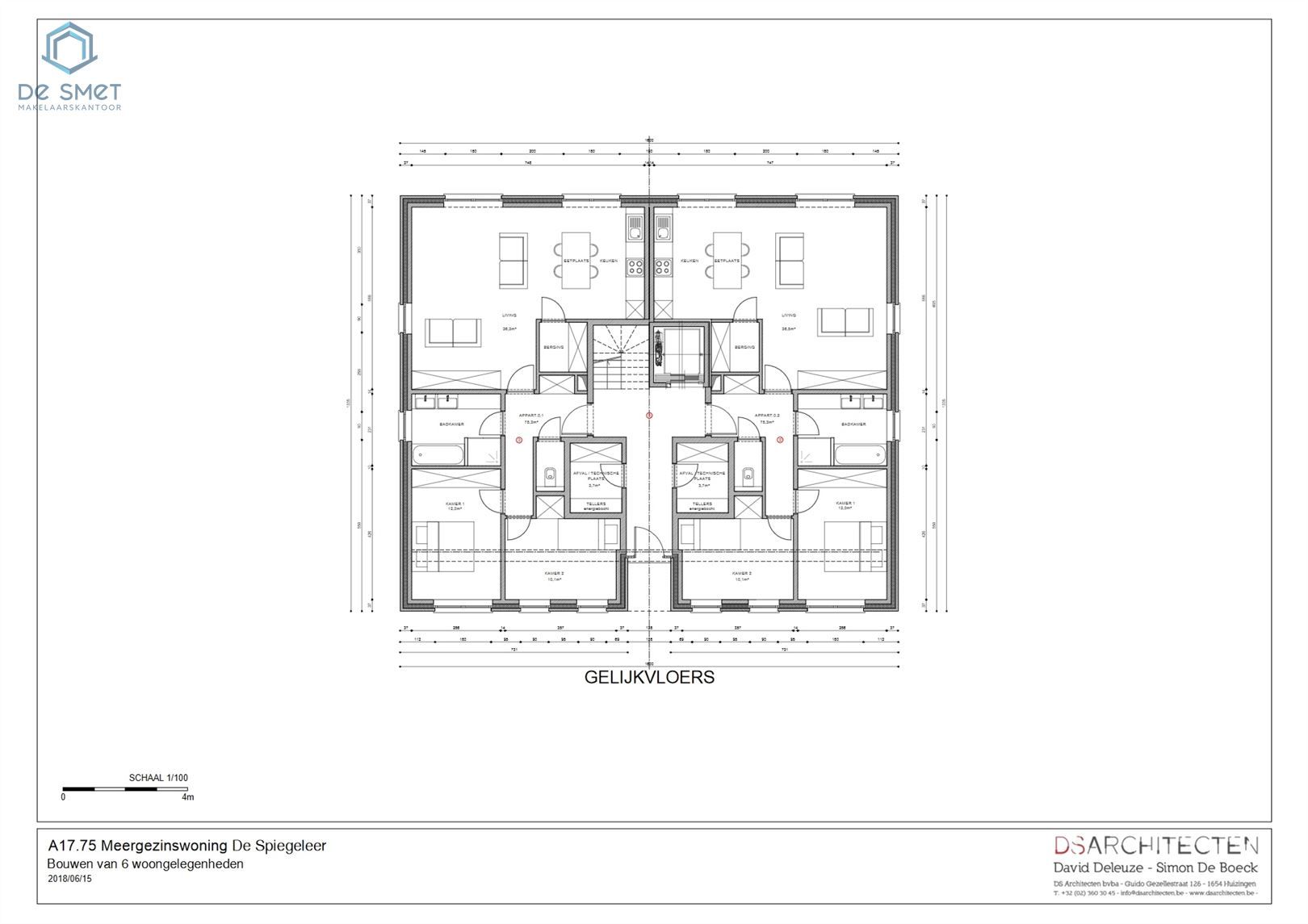
- BA_CO14_P_N_1_gelijkvloers.pdf
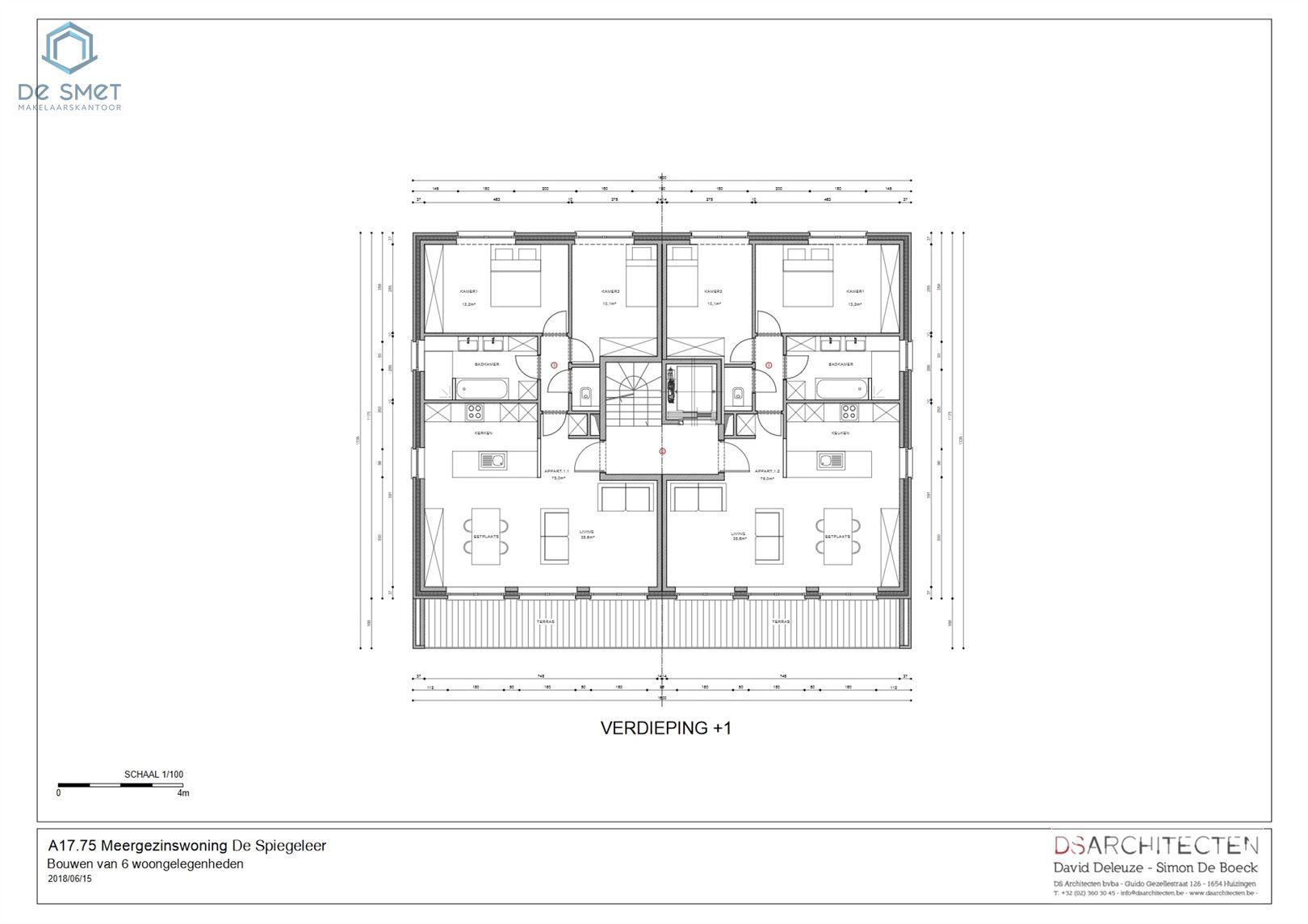
- BA_CO14_P_N_2_verdieping +1.pdf
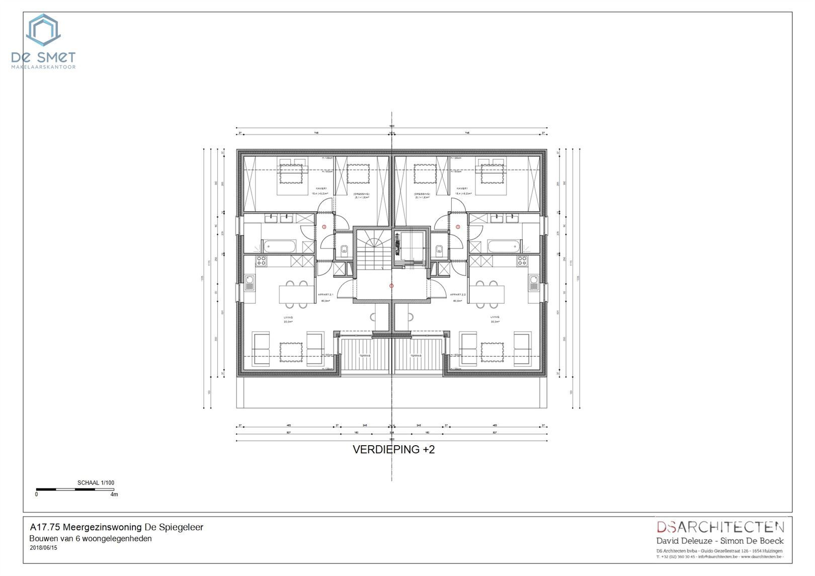
- BA_CO14_P_N_3_verdieping +2.pdf
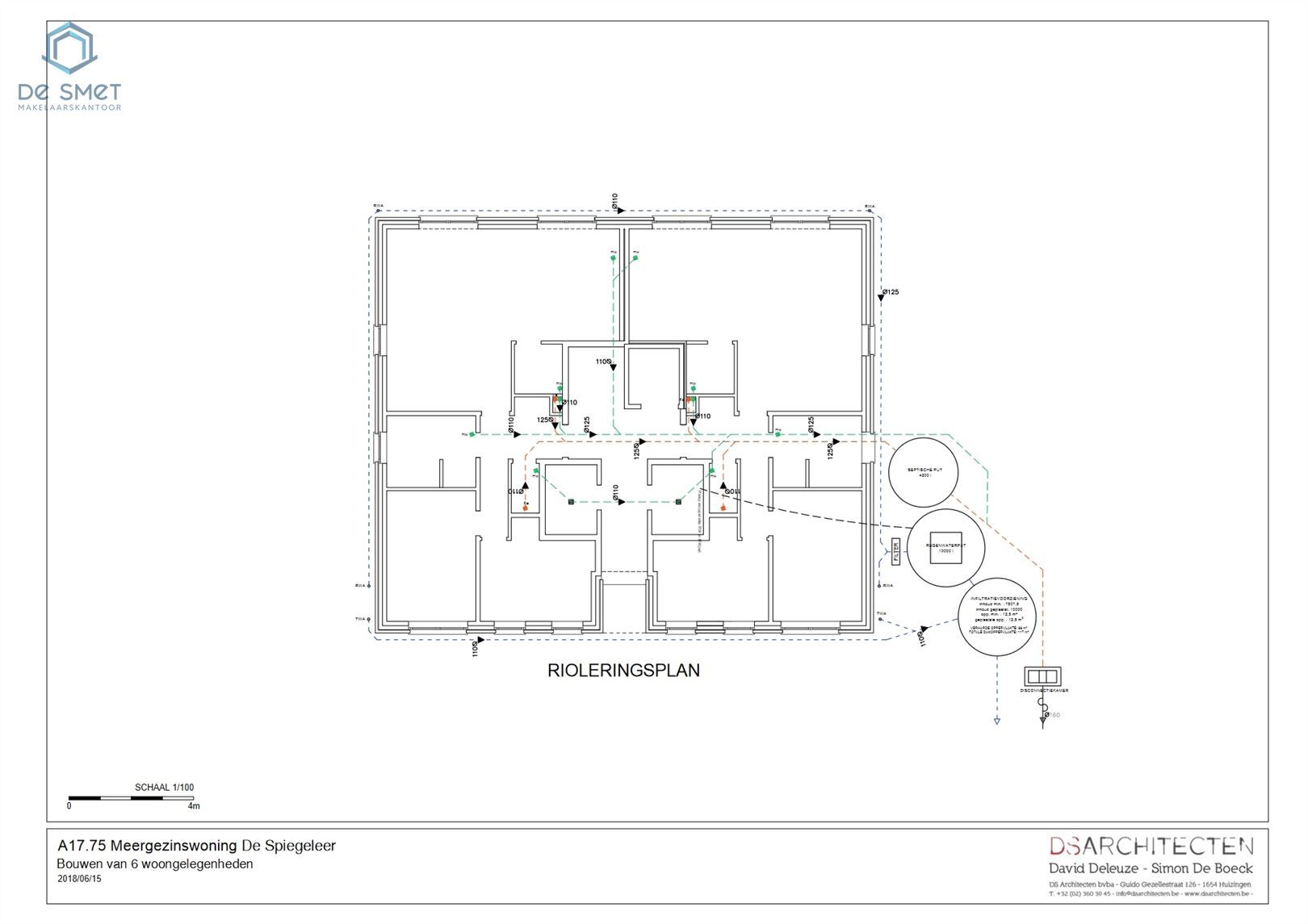
- BA_CO14_P_N_4_rioleringsplan.pdf
- BA_CO14_S_N_1_snede.pdf
- BA_CO14_T_N_1_terreinprofiel.pdf
- Bouwvergunning Middenstraat 6 units.pdf
- VVO_gelijkvloers_GM12.pdf
- VVO_verdieping 1_GM12.pdf
- VVO_verdieping 2_GM12.pdf
Financieel
Prijs | |
---|---|
Kadastraal inkomen (niet geïndexeerd) | € 19 |
Kadastraal inkomen (geïndexeerd) | € 0 |
Berekening kosten
Je aankoopkosten? Die heb je snel berekent via de knop hieronder.
Bijkomende info
Gebouw
Bouwcertificaat | Nee |
---|
Perceel
Diepte (m) | 1335 |
---|---|
Breedte (m) | 30 |
Overstromingsgevoelig | Geen |
P-score | A |
Voorkeurrecht | Nee |
Totale oppervlakte (m²) | 3079 |
Vergunning
Vergunning | Vergunning beschikbaar |
---|---|
Verkavelingsvergunning | Geen beschikbaar |
Uitrusting
Investeringspand | Nee |
---|---|
Rioolaansluiting | Nee |
Gasaansluiting | Nee |
Wateraansluiting | Nee |
Elektriciteitsaansluiting | Nee |
TV aansluiting | Nee |
Internetaansluiting | Nee |
Telefoonaansluiting | Nee |
Een pand van
Makelaarskantoor De Smet
Verkoop - Verhuur - Verzekeringen - Kredieten
Onze specialiteiten
Verkoop - Verhuur - Verzekeringen - Kredieten
Makelaarskantoor De Smet is actief als onafhankelijke Verzekerings-, Vastgoed- en Hypotheekmakelaar, met als doel een professionele kwalitatieve dienstverlening te verlenen waarbij betrouwbaarheid en klantvriendelijkheid centraal staan.
Gevestigde waarde in het centrum van Deftinge staan wij als jong en dynamisch team steeds klaar om u bij te staan.
Waarom kiezen voor makelaar De Smet?
Professionele begeleiding van A tot Z.
Open communicatie en transparantie.
Nauwe samenwerking met UW notaris.
Gerichte publiciteit op de juiste kanalen.
Als vastgoedcoach begeleiden wij kopers naar het vinden van uw droomhuis.
Ons streefdoel: Een langdurende vertrouwensrelatie.
Geen koper = Geen kosten!
Controle kredietwaardigheid van kandidaat kopers.
MIDDENSTRAAT project 2HOB OF OB ZANDBERGEN
Leer meer over vastgoed
11 June 2025
Huis kopen met bouwovertreding? Dit moet je weten
11 May 2025
Renoveren? Vraag je Mijn VerbouwPremie aan
22 April 2025
Je allereerste renovatieproject selecteren én budgetteren: met de praktische hulp van Spotto
17 February 2025