> Te koop > HERZELE > Grond > Bouwgrond voor een halfopen bebouwingen in Herzele!
Nieuw

Bouwgrond voor een halfopen bebouwingen in Herzele!

€ 100.000

9550 HERZELE

Een pand van CENTURY 21 ATG & Vast Goed

Volledige aanbod

Jouw zoektocht

Jouw scoretabel voor dit pand
Aan het laden...
Aan het laden...
Jouw geplande bezichtigingen
Aan het laden...
Aan het laden...

Overzicht


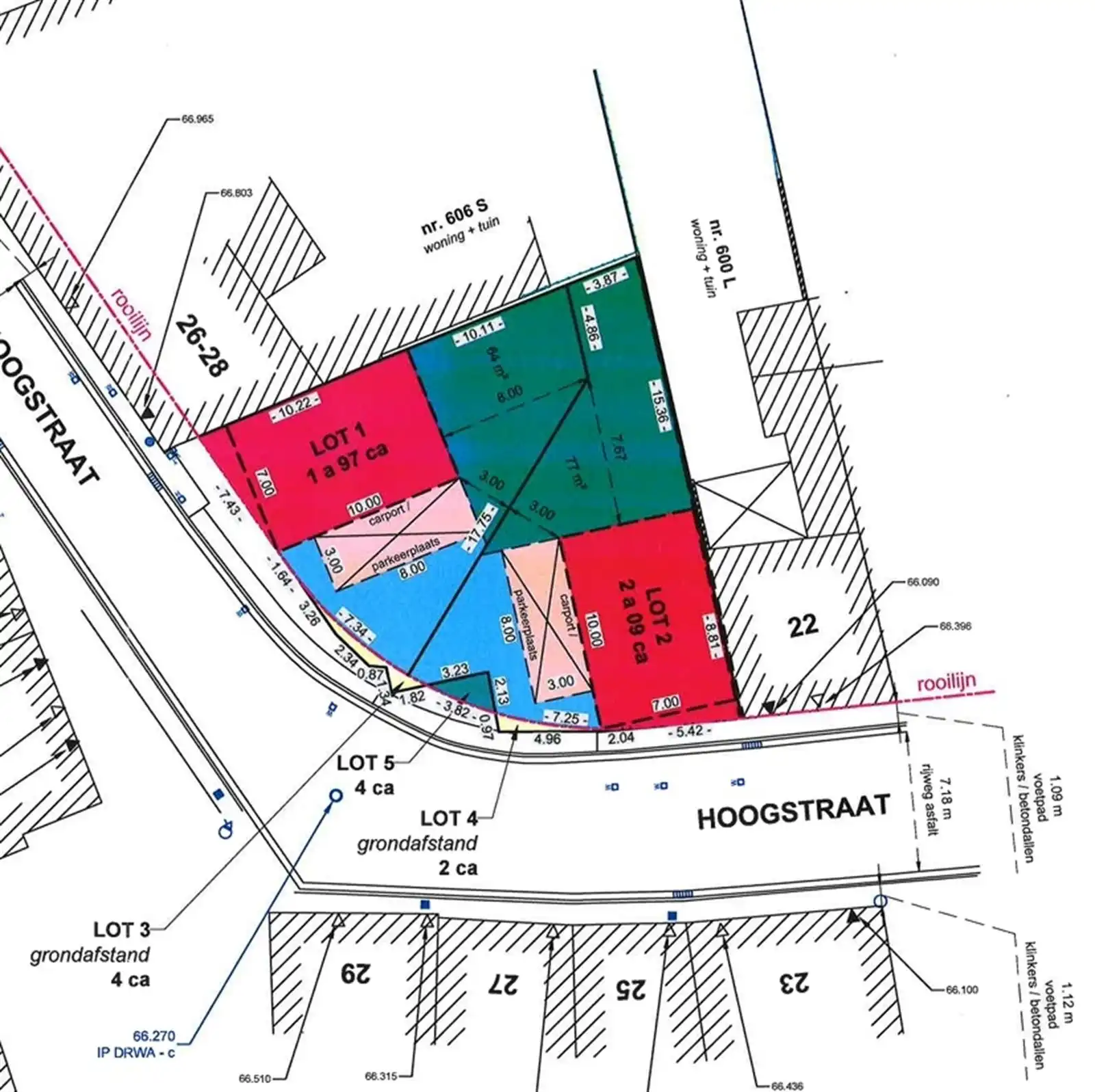
  • 197 m² grond

Beschrijving


Bent u op zoek naar een interessante bouwgrond om zelf te bouwen? 
In de Hoogstraat te Herzele bevindt zich deze strategisch gelegen opportuniteit voor het realiseren van een halfopen bebouwing (lot 1).
Het perceel biedt de mogelijk voor het realiseren van twee halfopen bebouwingen.

Het perceel laat een comfortabele woonontwikkeling toe met volgende bouwvoorschriften:
- Maximale bouwbreedte per woning: 7m
- Maximale bouwdiepte: 10m op zowel het gelijkvloers als de verdieping
- Twee volwaardige bouwlagen, afgewerkt met een zadeldak
- Maximale kroonlijsthoogte: 6,5m
- Ondergrondse ruimtes zijn toegelaten binnen de bouwzone

Daarnaast is ook de ligging een absolute troef. In de nabij omgeving vindt u tal van voorzieningen zoals lokale handelaars, scholen en gezellige horecazaken. Bovendien ligt ook het station van Herzele op korte afstand, wat zorgt voor een bijkomende vlotte verbinding.

Aarzel niet en neem vandaag nog contact met ons op voor het verkrijgen van meer informatie!

Energie


  • E-peil: E0
  • Beglazing: Onbekend

Financieel


Prijs € 100.000
Kadastraal inkomen (niet geïndexeerd) € 4
Kadastraal inkomen (geïndexeerd) € 0

Berekening kosten


Je aankoopkosten? Die heb je snel berekend via de knop hieronder.

Bijkomende info


Gebouw
Bouwcertificaat Nee
Perceel
Diepte (m) 24
Breedte (m) 16
Overstromingsgevoelig Geen
P-score A
Voorkeurrecht Ja
Totale oppervlakte (m²) 197
Vergunning
Vergunning Aanvraag ingediend
Verkavelingsvergunning Vergunning beschikbaar
Uitrusting
Investeringspand Nee
Rioolaansluiting Nee
Gasaansluiting Nee
Wateraansluiting Nee
Elektriciteitsaansluiting Nee
TV aansluiting Nee
Internetaansluiting Nee
Telefoonaansluiting Nee

Een pand van


CENTURY 21 ATG & Vast Goed
Logo van makelaar: CENTURY 21 ATG & Vast Goed
Samen sterker in jouw vastgoedtraject.
CENTURY 21 ATG en Vast Goed helpen je bij al jouw vastgoedplannen. Onze kennis en ervaring zorgen voor expertise en innovatie. Met ons versterkt team gidsen we jullie beter, sneller én persoonlijker doorheen jullie avontuur. Bij CENTURY 21 ATG & Vast Goed kan je elke dag vrijblijvend aankloppen om je bij te staan bij al jouw vastgoedplannen. Onze expertise heeft een focus op het Pajottenland, Oost-Vlaanderen en Brussel van woningen tot opbrengsteigendommen en nieuwbouw. Ons dynamisch team, gedreven door expertise en innovatie, zoekt nieuwe collega’s voor verschillende regio's. Heb jij een neus en passie voor vastgoed?
Logo van makelaar: CENTURY 21 ATG & Vast Goed
HERZELE HOOGSTRAAT 24 LOT 1
Bouwgrond voor een halfopen bebouwingen in Herzele! foto {{pictureIndex}}

Bouwgrond voor een halfopen bebouwingen in Herzele!

€ 100.000

9550 HERZELE

Bezoek het pand

Vul jouw contactgegevens hieronder in en de makelaar contacteert je.

Leer meer over vastgoed

23 March 2026
Op Spotto zoeken als een pro: 10 slimme tips
21 March 2026
Hoeveel kan ik lenen om een huis te kopen?
01 March 2026
Wanneer heb ik een bouwvergunning of omgevingsvergunning nodig?
17 February 2026
Hoe breng ik een bod uit op een woning?