Te koop: Multifunctioneel gebouw voor culturele, recreatieve of sportieve activiteiten in Sint-Maria-Lierde (deelgemeente van Lierde)
€ 150.000
Een pand van Makelaarskantoor De Smet
Overzicht
- 230 m² bewoonbaar
- 243 m² grond
Beschrijving
Te koop: Multifunctioneel gebouw voor culturele, recreatieve of sportieve activiteiten in Sint-Maria-Lierde (deelgemeente van Lierde)
Bent u op zoek naar een ruime en veelzijdige locatie voor activiteiten, evenementen of verenigingen? In een rustige zijstraat van Sint-Maria-Lierde bevindt zich deze karaktervolle parochiezaal met tal van mogelijkheden.
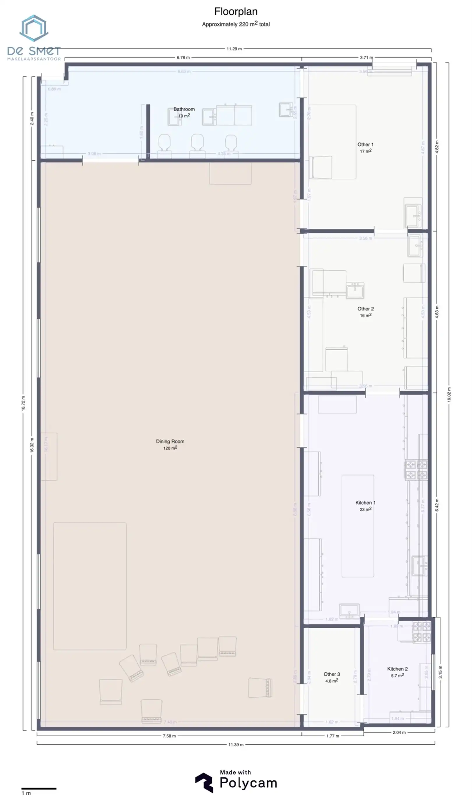
Deze eigendom beschikt over een multifunctionele zaal van ca. 230 m², ideaal voor culturele, recreatieve of sportieve activiteiten. Daarnaast is er een zolderruimte van ca. 120 m² die verder kan worden ingericht, wat extra potentieel biedt voor uitbreiding of bijkomende functies.
Het gebouw is praktisch ingericht en omvat onder meer:
- 3 damestoiletten en 3 herentoiletten
- Ruime ingerichte keuken
- Gezellige bar
- Berging en vestiaire
- Multifunctionele ruimtes geschikt voor diverse activiteiten
Dankzij de rustige ligging en de ruime indeling is dit pand bijzonder geschikt voor verenigingen, evenementen, workshops, culturele initiatieven of sportactiviteiten.
Technische info:
- Centrale verwarming op mazout
- Elektrische installatie niet conform
Bent u geïnteresseerd in dit unieke pand met veel mogelijkheden in Lierde?
Reageer eenvoudig op de advertentie voor meer informatie of een bezoek. Wij nemen vervolgens contact met u op om een afspraak in te plannen.
Energie
![]() |
- EPC Certificaat: 20260227-0003812023-KNR-2
- E-peil: E0
- Beglazing: Standaard dubbel
Op de kaart

Downloads
- EPC
- Elektrische keuring immo
- ActaMaps - Kapellestraat 3 +, 9570 Sint-Maria-Lierde (45050A065500W000).pdf
- ActaMaps Overstromingsrapport (45050A065500W000).pdf
- ActaMaps Perceelrapport Onroerend Erfgoed (45050A065500W000).pdf
- arei keuring.pdf
- Asbuilt.pdf
- ONTEIGENINGSPLANNEN_20_TITELBLAD_KAPELLESTRAAT_en_KAKEBEKE__BUURTWEGEN_NRS_7_17_20_en_25_.pdf
- export-cadgis (75).pdf
- KLIM-CICC.pdf
- OVAM_Bodemattest.pdf
- stedenbouwk inl.pdf
- VLM rapport_23022026.pdf
- [Polycam Floor Plan] 6_3_2026.pdf
- ONTEIGENINGSPLANNEN_20_DEEL_1_KAPELLESTRAAT_en_KAKEBEKE__BUURTWEGEN_NRS_7_17_20_en_25_.pdf
- Rooilijnplan_19_KAPELLESTRAAT_en_KAKEBEKE__BUURTWEGEN_NRS_7_17_20_en_25_.pdf
Financieel
| Prijs | |
|---|---|
| Kadastraal inkomen (niet geïndexeerd) | € 1.167 |
| Kadastraal inkomen (geïndexeerd) | € 0 |
Berekening kosten
Je aankoopkosten? Die heb je snel berekend via de knop hieronder.
Bijkomende info
Gebouw
| Bouwjaar | 1936 |
|---|---|
| Staat | Op te frissen |
| Bouwcertificaat | Nee |
| Bewoonbaar (m²) | 230 |
| Verdieping | 0 |
| Gevelbreedte | 19 |
| Badkamers | 0 |
| Slaapkamers | 0 |
| Verdiepingen | 0 |
| Garages | 0 |
| Parkeerplaatsen | 0 |
| Doucheruimtes | 0 |
| Toiletten | 0 |
Faciliteiten
| Materiaal ramenomlijstingen | Hout |
|---|---|
| Beglazing | Standaard dubbel |
| Elektrisch keuringsattest | Nee |
Perceel
| Diepte (m) | 11 |
|---|---|
| Breedte (m) | 19 |
| Overstromingsgevoelig | Geen |
| P-score | A |
| G-score | A |
| Voorkeurrecht | Nee |
| Totale oppervlakte (m²) | 243 |
| Bebouwde oppervlakte (m²) | 242 |
| Tuin oppervlakte (m²) | 0 |
| Oppervlakte terras (m²) | 0 |
| Oriëntatie tuin | ZuidOost |
Vergunning
| Vergunning | Vergunning beschikbaar |
|---|---|
| Verkavelingsvergunning | Geen beschikbaar |
Uitrusting
| Investeringspand | Nee |
|---|---|
| Geschikt voor praktijk | Nee |
| Parking | Nee |
| Garage | Nee |
| Thuiskantoor | Ja |
| Kelder | Nee |
| Zolder | Ja |
| Tuin | Nee |
| Terras | Nee |
| Lift | Nee |
| Rioolaansluiting | Ja |
| Gasaansluiting | Nee |
| Wateraansluiting | Ja |
| Elektriciteitsaansluiting | Ja |
| TV aansluiting | Ja |
| Internetaansluiting | Ja |
| Telefoonaansluiting | Ja |
Appartementsblok
| Lift | Nee |
|---|
