Nieuw
2 SLPK NIEUWBOUW APP. GELIJKVLOERS!
€ 229.000
Een pand van IMMO1
Favoriet
Jouw zoektocht
Jouw scoretabel voor dit pand
Aan het laden...
Jouw geplande bezichtigingen
Aan het laden...
Overzicht
- 90 m² bewoonbaar
- 90 m² grond
- 2 Slaapkamer(s)
- 1 Badkamer(s)
- 1 Toilet(ten)
Beschrijving
Mogelijkheid tot aankopen aan 6% BTW mits voldaan aan voorwaarden!
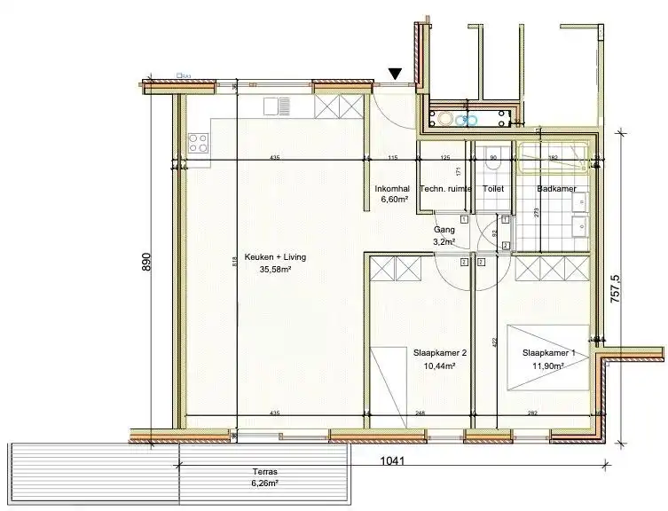
Dit ruim appartement is gelegen op het gelijkvloers, én heeft een oppervlakte van 90m². De indeling is als volgt: inkom met apart toilet (met lavabo), leefruimte met open keuken (o.a. met spoelbak, kookfornuis, dampkap, combi-oven, koelkast met vriesvak en vaatwasmachine), berging (met wasplaats), badkamer (o.a. met lavabomeubel en douche), 2 RUIME slaapkamers en een ZONgericht terras van 9,49 m² met zicht op de groene omgeving. Ook een staanplaats voor de auto is inbegrepen.
Het appartement is zeer energiezuinig (bijna energie neutraal) en heeft een zeer gunstig e-peil (e-peil 20) met energieklasse A. Er wordt gewerkt met duurzame kwalitatieve materialen en moderne technieken. Zo wordt er verwarmd met een warmtepomp, zijn er zonnepanelen op het dak en laadpalen voor auto’s en fiets voorzien. Dat maakt dat het appartement zeer toekomstgericht is. Daarom is het zeer geschikt als HOOFDVERBLIJFPLAATS én ook als INVESTERING (met mooi rendement).
Het appartement is gelegen in een nieuwbouwblok met 10 appartementen omgeven door een rustige en groene omgeving vlak bij het centrum.
De eerste fase van de bouwwerken is reeds uitgevoerd. De tweede fase start binnenkort.
Prijzen vanaf 216.000 euro exclusief BTW, registratie rechten, notariskosten.
Voor meer informatie contacteer Immo1 via 0493/40.05.29 of info@immo1.be
Dit ruim appartement is gelegen op het gelijkvloers, én heeft een oppervlakte van 90m². De indeling is als volgt: inkom met apart toilet (met lavabo), leefruimte met open keuken (o.a. met spoelbak, kookfornuis, dampkap, combi-oven, koelkast met vriesvak en vaatwasmachine), berging (met wasplaats), badkamer (o.a. met lavabomeubel en douche), 2 RUIME slaapkamers en een ZONgericht terras van 9,49 m² met zicht op de groene omgeving. Ook een staanplaats voor de auto is inbegrepen.
Het appartement is zeer energiezuinig (bijna energie neutraal) en heeft een zeer gunstig e-peil (e-peil 20) met energieklasse A. Er wordt gewerkt met duurzame kwalitatieve materialen en moderne technieken. Zo wordt er verwarmd met een warmtepomp, zijn er zonnepanelen op het dak en laadpalen voor auto’s en fiets voorzien. Dat maakt dat het appartement zeer toekomstgericht is. Daarom is het zeer geschikt als HOOFDVERBLIJFPLAATS én ook als INVESTERING (met mooi rendement).
Het appartement is gelegen in een nieuwbouwblok met 10 appartementen omgeven door een rustige en groene omgeving vlak bij het centrum.
De eerste fase van de bouwwerken is reeds uitgevoerd. De tweede fase start binnenkort.
Prijzen vanaf 216.000 euro exclusief BTW, registratie rechten, notariskosten.
Voor meer informatie contacteer Immo1 via 0493/40.05.29 of info@immo1.be
Energie
- E-peil: E0
- Beglazing: Onbekend
Op de kaart

Financieel
| Prijs |
|---|
Bijkomende info
Gebouw
| Bouwjaar | 2024 |
|---|---|
| Staat | Nieuw |
| Bouwcertificaat | Nee |
| Bewoonbaar (m²) | 90 |
| Verdieping | 0 |
| Badkamers | 1 |
| Slaapkamers | 2 |
| Verdiepingen | 2 |
| Garages | 0 |
| Parkeerplaatsen | 1 |
| Toiletten | 1 |
Faciliteiten
| Septische tank | Nee |
|---|
Perceel
| Overstromingsgevoelig | Geen |
|---|---|
| P-score | A |
| G-score | A |
| Totale oppervlakte (m²) | 90 |
| Bebouwde oppervlakte (m²) | 0 |
| Oppervlakte terras (m²) | 0 |
| Oriëntatie tuin | Zuid |
Vergunning
| Verkavelingsvergunning | Geen beschikbaar |
|---|
Uitrusting
| Investeringspand | Nee |
|---|---|
| Parking | Ja |
| Garage | Nee |
| Opslagruimte | Ja |
| Terras | Ja |
| Lift | Ja |
| Rioolaansluiting | Nee |
| Gasaansluiting | Nee |
| Wateraansluiting | Ja |
| Elektriciteitsaansluiting | Ja |
| Internetaansluiting | Ja |
| Telefoonaansluiting | Ja |
| Zonnepanelen | Ja |
| Zonneboiler | Nee |
| Alarm | Nee |
| Videofoon | Nee |
| Grondwaterput | Nee |
Appartementsblok
| Aantal verdiepingen | 2 |
|---|---|
| Lift | Ja |
| Intercom | Nee |
Een pand van
IMMO1
Vastgoed met een glimlach
IMMO1 is specialist in de bemiddeling bij aan- & verkoop en verhuur van zowel woning- als bedrijfsvastgoed.
Wij gebruiken de nieuwste digitale technologie om jouw vastgoed te commercialiseren. Spraakmakende HD-beelden, videomarketing en virtuele bezoeken zijn essentieel om jouw pand te laten opvallen. Deze digitale marketingtoolbox vertaalt zich in betere resultaten, maar vooral in een menselijke service voor al jouw vastgoedplannen.
Jouw woning, bedrijfspand of nieuwbouwproject commercialiseren? Laten we kennismaken.
VKA027/D0.03RonseC
Leer meer over vastgoed
23 March 2026
Op Spotto zoeken als een pro: 10 slimme tips
21 March 2026
Hoeveel kan ik lenen om een huis te kopen?
01 March 2026
Wanneer heb ik een bouwvergunning of omgevingsvergunning nodig?
17 February 2026