In optie
Ruim handelspand met woonst en tuin.
€ 229.000
Een pand van DMG Vastgoed
Overzicht
- 408 m² bewoonbaar
- 612 m² grond
- 4 Slaapkamer(s)
- 1 Badkamer(s)
- 2 Toilet(ten)
- 1 Tuin
Beschrijving
Groot te renoveren handelspand met woonst, stockage en tuin achteraan.
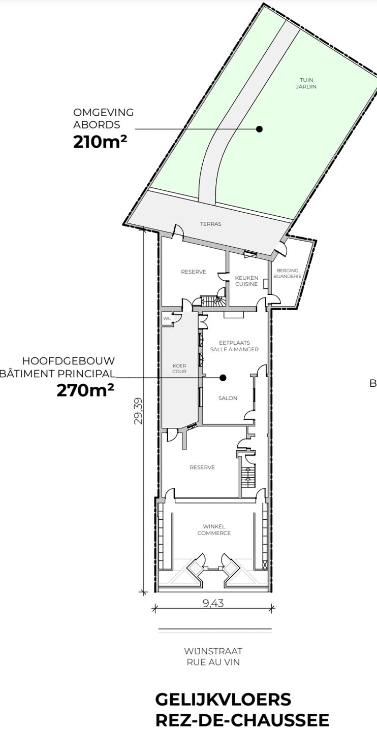
Het pand is als volgt ingedeeld: Ruime vitrine met toegang tot de winkel, 2 zijgangen en stockageruimte die uitgeeft op de koer.
Achteraan is het leefgedeelte met een ruime woonst bestaande uit salon met eetkamer gevolgd door een keuken, WC en bergingruimtes die toegang bieden tot een verassend ruime stadstuin.
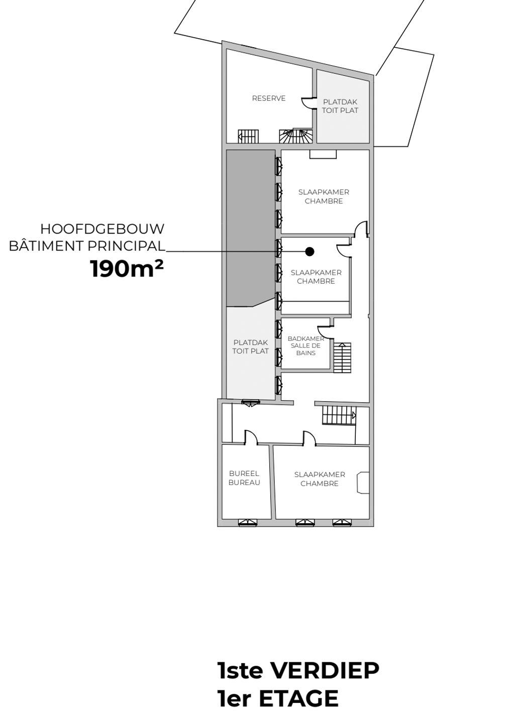
Op het 1ste verdiep zijn er 4 slaapkamers en een badkamer met nog eens een vaste trap naar verschillende zolderruimtes.
Achteraan nog verschillende stockageruimtes met verdiepingen boven.
Pand met heel veel potentieel en mogelijkheden.
Renovatieverplichting van toepassing.
Het pand is als volgt ingedeeld: Ruime vitrine met toegang tot de winkel, 2 zijgangen en stockageruimte die uitgeeft op de koer.
Achteraan is het leefgedeelte met een ruime woonst bestaande uit salon met eetkamer gevolgd door een keuken, WC en bergingruimtes die toegang bieden tot een verassend ruime stadstuin.
Op het 1ste verdiep zijn er 4 slaapkamers en een badkamer met nog eens een vaste trap naar verschillende zolderruimtes.
Achteraan nog verschillende stockageruimtes met verdiepingen boven.
Pand met heel veel potentieel en mogelijkheden.
Renovatieverplichting van toepassing.
Energie
![]() |
- EPC Certificaat: 20211208-0002505584-RES-1
- Energieverbruik: 646 kWh/m²/jaar
Let op, de renovatieverplichting in Vlaanderen verplicht de koper om deze woning na aankoop te renoveren tot een betere energieprestatie. Lees er alles over in dit artikel
Extra budget nodig voor je renovatie?
De overheid helpt je dit pand energetisch te renoveren! Hieronder zie je het premiebedrag dat je mogelijks van de overheid krijgt.
Het huidige EPC-label is:

Op de kaart

Financieel
| Prijs | |
|---|---|
| Kadastraal inkomen (niet geïndexeerd) | € 1.784 |
| Kadastraal inkomen (geïndexeerd) | € 1.784 |
Berekening kosten
Je aankoopkosten? Die heb je snel berekent via de knop hieronder.
Bijkomende info
Gebouw
| Bouwjaar | 1874 |
|---|---|
| Staat | Goed onderhouden |
| Bewoonbaar (m²) | 408 |
| Gevels | 2 |
| Badkamers | 1 |
| Slaapkamers | 4 |
| Verdiepingen | 2 |
| Parkeerplaatsen | 0 |
| Toiletten | 2 |
Faciliteiten
| Type vloer | |
|---|---|
| Keuken uitrusting | Standaard |
| Elektrisch keuringsattest | Nee |
Perceel
| Overstromingsgevoelig | Geen |
|---|---|
| P-score | A |
| G-score | A |
| Totale oppervlakte (m²) | 612 |
| Bebouwde oppervlakte (m²) | 250 |
| Tuin oppervlakte (m²) | 250 |
| Oriëntatie voorgevel | Zuidwest |
| Oriëntatie terras | Noordoost |
Vergunning
| Vergunning | Geen beschikbaar |
|---|---|
| Verkavelingsvergunning | Geen beschikbaar |
Uitrusting
| Geschikt voor rolstoelgebruikers | Nee |
|---|---|
| Parking | Nee |
| Garage | Nee |
| Tuin | Ja |
| Terras | Ja |
| Lift | Nee |
| Zwembad | Nee |
| Zwemvijver | Nee |
Een pand van
DMG Vastgoed
Uw partner in verhuur en verkoop van onroerend goed
Geboren en getogen in de streek en met reeds enkele jaren ervaring op de lokale vastgoedmarkt, staan onze makelaars U graag bij in het proces van verkoop of verhuur van uw eigendom, in uw zoektocht naar een nieuwe woonst of met vrijblijvend advies en een antwoord op al uw onroerende vragen.
Met een passie voor onroerend goed, een opleiding in vastgoed, jaren ervaring in de praktijk en de erkenning van het Beroepsinstituut van Vastgoedmakelaars, worden de belangen van onze klanten steeds op een transparante en professionele manier behartigd.
Door middel van onze permanente vorming blijven we bovendien steeds op de hoogte van veranderende wetgevingen en normen in de vastgoedwereld, waardoor we u op een correcte manier kunnen blijven informeren.
Gebeten en bezeten door de vastgoed microbe stellen we als jong en dynamisch team alles in het werk om een zo compleet en transparant mogelijke service aan te bieden aan onze klanten.
Onze filialen:
Stationsstraat 30 - RONSE Jacob Lacopstraat 36 - OUDENAARDE
5569227
Leer meer over vastgoed
24 November 2025
Uitgezocht voor jouw gemeente: Hoeveel stijgt de waarde van je woning door een renovatie?
22 October 2025
Hoeveel kan ik lenen om een huis te kopen?
11 June 2025
Huis kopen met bouwovertreding? Dit moet je weten
11 May 2025



