Nieuw
Gunstig gelegen halfopen bebouwing met garage.
€ 210.000
9600 Ronse
Een pand van DMG Vastgoed
Overzicht
- 166 m² bewoonbaar
- 429 m² grond
- 4 Slaapkamer(s)
- 1 Badkamer(s)
- 2 Toilet(ten)
- 1 Tuin
- 1 Garage(s)
Beschrijving
Deze halfopen bebouwing bevindt zich op een rustige en goed bereikbare locatie, vlak bij het stadscentrum, scholen en belangrijke verbindingswegen. De ligging biedt het ideale evenwicht tussen wonen in een aangename buurt en een vlotte verbinding naar het centrum en de omliggende gemeenten.
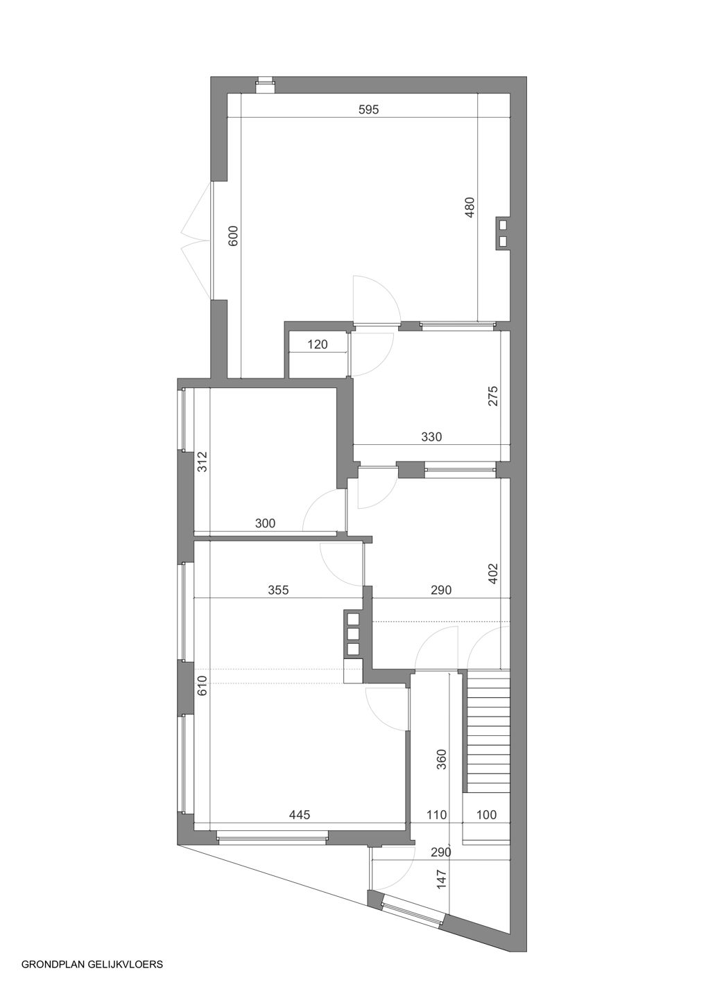
Bij het binnenkomen wordt u verwelkomd in een centrale inkomhal met trap, die toegang biedt tot zowel de leefruimte als de keuken. De woonkamer geniet van natuurlijk licht en sluit aan op de functionele keuken. Vanuit de keuken is er niet alleen toegang tot een centrale verbindingsruimte, maar ook tot de kelder, wat extra praktische bergruimte biedt.
De verbindingsruimte centraal in de woning geeft respectievelijk toegang tot : een apart toilet, een kamer met vrije invulling (bijvoorbeeld als bureau of hobbyruimte) en de garage.
De ruime garage beschikt over een mezzanine, ideaal voor extra opslag, en biedt rechtstreeks toegang tot de aangename tuin. Deze tuin is mooi beplant en vormt een rustige buitenplek om van te genieten.
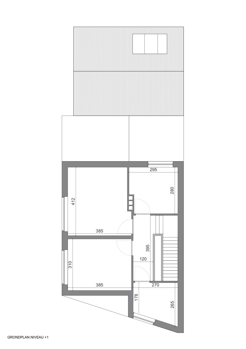
Op de eerste verdieping bevinden zich drie ruime slaapkamers en een badkamer met douche, wastafel en toilet. Verder is er nog een zolderruimte die, mits renovatie, kan worden omgevormd tot een extra kamer of polyvalente ruimte.
Deze woning biedt een solide basis (betonnen structuur) met veel potentieel en is ideaal voor wie op zoek is naar een pand dat naar eigen smaak en stijl kan worden gerenoveerd.
Bij het binnenkomen wordt u verwelkomd in een centrale inkomhal met trap, die toegang biedt tot zowel de leefruimte als de keuken. De woonkamer geniet van natuurlijk licht en sluit aan op de functionele keuken. Vanuit de keuken is er niet alleen toegang tot een centrale verbindingsruimte, maar ook tot de kelder, wat extra praktische bergruimte biedt.
De verbindingsruimte centraal in de woning geeft respectievelijk toegang tot : een apart toilet, een kamer met vrije invulling (bijvoorbeeld als bureau of hobbyruimte) en de garage.
De ruime garage beschikt over een mezzanine, ideaal voor extra opslag, en biedt rechtstreeks toegang tot de aangename tuin. Deze tuin is mooi beplant en vormt een rustige buitenplek om van te genieten.
Op de eerste verdieping bevinden zich drie ruime slaapkamers en een badkamer met douche, wastafel en toilet. Verder is er nog een zolderruimte die, mits renovatie, kan worden omgevormd tot een extra kamer of polyvalente ruimte.
Deze woning biedt een solide basis (betonnen structuur) met veel potentieel en is ideaal voor wie op zoek is naar een pand dat naar eigen smaak en stijl kan worden gerenoveerd.
Energie
![]() |
- EPC Certificaat: 20250220-0003533183-RES-1
- Energieverbruik: 546 kWh/m²/jaar
Let op, de renovatieverplichting in Vlaanderen verplicht de koper om deze woning na aankoop te renoveren tot een betere energieprestatie. Lees er alles over in dit artikel
Extra budget nodig voor je renovatie?
De overheid helpt je dit pand energetisch te renoveren! Hieronder zie je het premiebedrag dat je mogelijks van de overheid krijgt.
Het huidige EPC-label is:

Downloads
Financieel
| Prijs |
|---|
Berekening kosten
Je aankoopkosten? Die heb je snel berekent via de knop hieronder.
Bijkomende info
Gebouw
| Bouwjaar | 1961 |
|---|---|
| Staat | Te renoveren |
| Bewoonbaar (m²) | 166 |
| Gevels | 3 |
| Gevelbreedte | 7 |
| Badkamers | 1 |
| Slaapkamers | 4 |
| Verdiepingen | 2 |
| Garages | 1 |
| Parkeerplaatsen | 0 |
| Doucheruimtes | 1 |
| Toiletten | 2 |
Faciliteiten
| Type vloer | |
|---|---|
| Keuken uitrusting | Standaard |
| Elektrisch keuringsattest | Nee |
Perceel
| P-score | A |
|---|---|
| G-score | A |
| Voorkeurrecht | Nee |
| Totale oppervlakte (m²) | 429 |
| Bebouwde oppervlakte (m²) | 120 |
| Tuin oppervlakte (m²) | 217 |
| Oriëntatie voorgevel | Noord |
Vergunning
| Vergunning | Geen beschikbaar |
|---|---|
| Verkavelingsvergunning | Geen beschikbaar |
| Bouwovertreding | Geen |
| Bouwovertreding dagvaardiging | Geen |
Uitrusting
| Geschikt voor rolstoelgebruikers | Nee |
|---|---|
| Parking | Nee |
| Garage | Ja |
| Kelder | Ja |
| Zolder | Ja |
| Tuin | Ja |
| Terras | Nee |
| Lift | Nee |
| Gasaansluiting | Ja |
| Wateraansluiting | Ja |
| Elektriciteitsaansluiting | Ja |
| TV aansluiting | Ja |
| Telefoonaansluiting | Ja |
| Zwembad | Nee |
| Zwemvijver | Nee |
| Regenwaterput | Ja |
Een pand van
DMG Vastgoed
Uw partner in verhuur en verkoop van onroerend goed
Geboren en getogen in de streek en met reeds enkele jaren ervaring op de lokale vastgoedmarkt, staan onze makelaars U graag bij in het proces van verkoop of verhuur van uw eigendom, in uw zoektocht naar een nieuwe woonst of met vrijblijvend advies en een antwoord op al uw onroerende vragen.
Met een passie voor onroerend goed, een opleiding in vastgoed, jaren ervaring in de praktijk en de erkenning van het Beroepsinstituut van Vastgoedmakelaars, worden de belangen van onze klanten steeds op een transparante en professionele manier behartigd.
Door middel van onze permanente vorming blijven we bovendien steeds op de hoogte van veranderende wetgevingen en normen in de vastgoedwereld, waardoor we u op een correcte manier kunnen blijven informeren.
Gebeten en bezeten door de vastgoed microbe stellen we als jong en dynamisch team alles in het werk om een zo compleet en transparant mogelijke service aan te bieden aan onze klanten.
Onze filialen:
Stationsstraat 30 - RONSE Jacob Lacopstraat 36 - OUDENAARDE
Leer meer over vastgoed
22 October 2025
Hoeveel kan ik lenen om een huis te kopen?
11 June 2025
Huis kopen met bouwovertreding? Dit moet je weten
11 May 2025
Renoveren? Vraag je Mijn VerbouwPremie aan
22 April 2025



