Nieuwbouw woning met 3 slaapkamers
€ 347.400
Een pand van Immo Zone
Overzicht
- 168.5 m² bewoonbaar
- 166 m² grond
- 3 Slaapkamer(s)
- 1 Badkamer(s)
Beschrijving
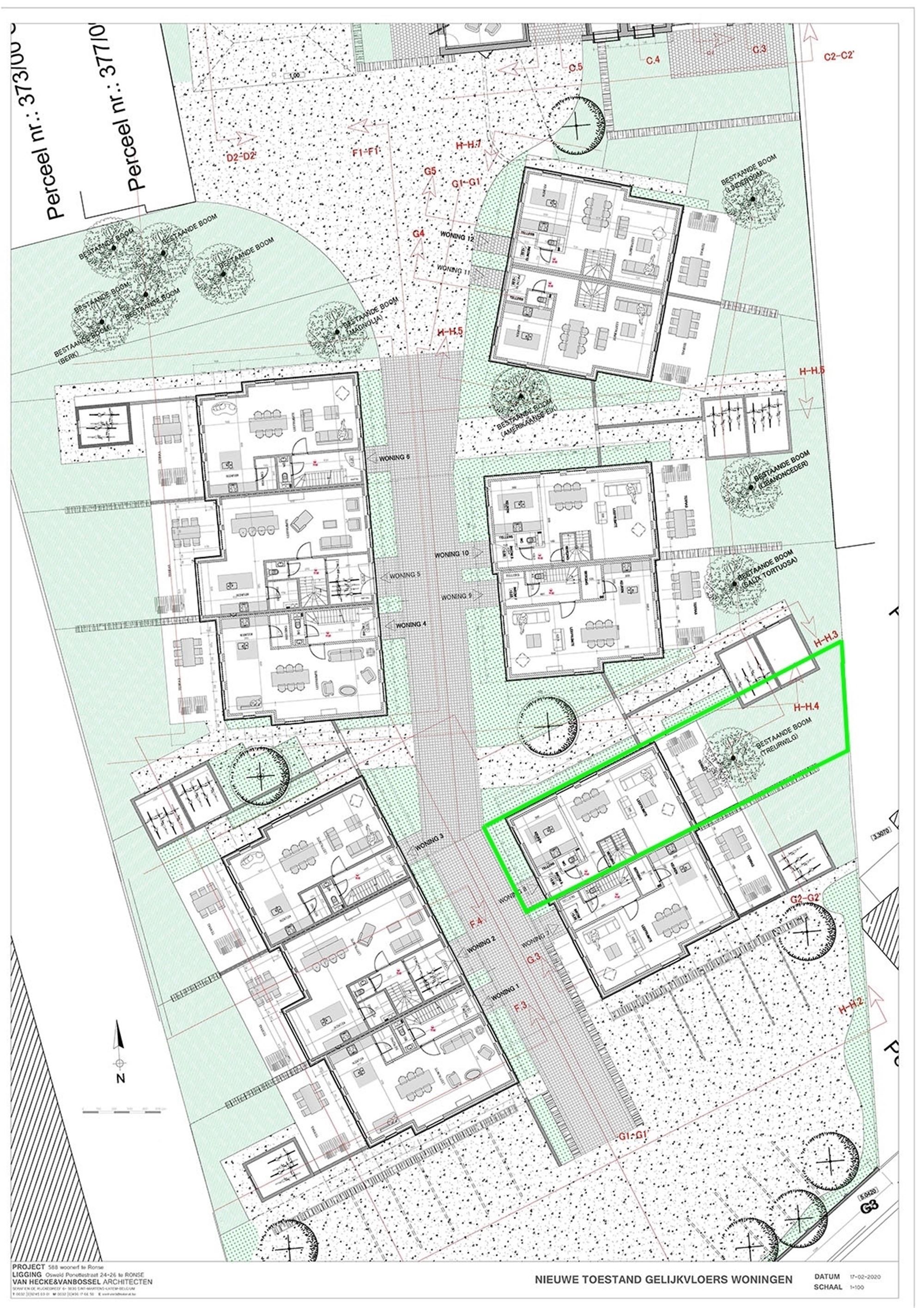
Welkom bij dit nieuwbouw project HOEVE PESSEMIER
In het hart van de stad Ronse op de oude site van een textielfabriek inclusief de hoeve en het woonerf rijst dit nieuwbouwproject uit de grond.
In een eerste fase hebben we de oplevering van 12 woningen op de site, waarvan er reeds 9 verkocht zijn. Bekijk alvast de plannen per woning met 2, 3 of 4 slaapkamers. Is er een zolder dan kan deze ook worden ingericht als bijkomende kamer.
De woningen worden afgewerkt met kwaliteitsvolle, duurzame materialen en voldoen aan alle comfort en de hoogste energie normen. In een volgende fase wordt de hoeve met 8 woningen opgeleverd.
Volgende entiteiten zijn beschikbaar:
-1 gezinswoning met 2 slaapkamers en private tuin met terras;
-1 gezinswoning met 3 slaapkamers en private tuin met terras;
-1 gezinswoning met 4 slaapkamers en private tuin met terras;
Vooraan zijn autostaanplaatsen voorzien die apart kunnen aangekocht worden.
Alle vermelde prijzen zijn steeds exclusief BTW en aankoopkosten.
Energie
- E-peil: E0
- Verwarming: Gas
- Beglazing: Standaard dubbel
Op de kaart

Financieel
| Prijs | |
|---|---|
| Kadastraal inkomen (niet geïndexeerd) | € 0 |
| Kadastraal inkomen (geïndexeerd) | € 0 |
Bijkomende info
Gebouw
| Staat | Nieuw |
|---|---|
| Bouwcertificaat | Nee |
| Bewoonbaar (m²) | 168.5 |
| Verdieping | 2 |
| Badkamers | 1 |
| Slaapkamers | 3 |
| Verdiepingen | 0 |
| Garages | 0 |
| Parkeerplaatsen | 0 |
| Doucheruimtes | 0 |
| Toiletten | 0 |
Faciliteiten
| Keuken uitrusting | Luxueus uitgerust |
|---|---|
| Materiaal ramenomlijstingen | Hout |
| Beglazing | Standaard dubbel |
| Brandstof primaire verwarming | Gas |
| Elektrisch keuringsattest | Ja |
Perceel
| Overstromingsgevoelig | Geen |
|---|---|
| Voorkeurrecht | Ja |
| Totale oppervlakte (m²) | 166 |
| Bebouwde oppervlakte (m²) | 0 |
| Tuin oppervlakte (m²) | 0 |
| Oppervlakte terras (m²) | 0 |
Vergunning
| Vergunning | Geen beschikbaar |
|---|---|
| Verkavelingsvergunning | Geen beschikbaar |
Uitrusting
| Investeringspand | Nee |
|---|---|
| Geschikt voor praktijk | Nee |
| Parking | Nee |
| Garage | Nee |
| Thuiskantoor | Nee |
| Kelder | Nee |
| Zolder | Ja |
| Tuin | Nee |
| Terras | Nee |
| Lift | Nee |
| Rioolaansluiting | Nee |
| Gasaansluiting | Nee |
| Wateraansluiting | Nee |
| Elektriciteitsaansluiting | Nee |
| TV aansluiting | Nee |
| Internetaansluiting | Nee |
| Telefoonaansluiting | Nee |