Karaktervolle zorgwoning met alle comfort gelegen in woonerf Ter Roosebeke
€ 335.000
Een pand van Vastgoed Browaeys
Favoriet
Jouw zoektocht
Jouw scoretabel voor dit pand
Aan het laden...
Jouw geplande bezichtigingen
Aan het laden...
Overzicht
- 245 m² bewoonbaar
- 245 m² grond
- 4 Slaapkamer(s)
- 2 Badkamer(s)
Beschrijving
Deze gerenoveerde schuur wordt omgebouwd tot energiezuinige zorgwoning. Deze half-openbebouwing is gelegen te Zwalm. Toegankelijk via de invalswegen richting Brakel en Zottegem.
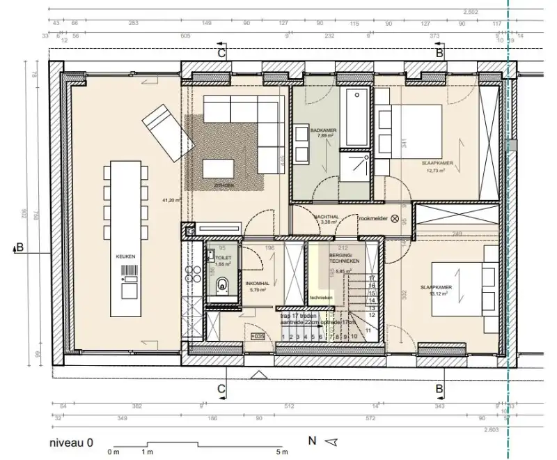
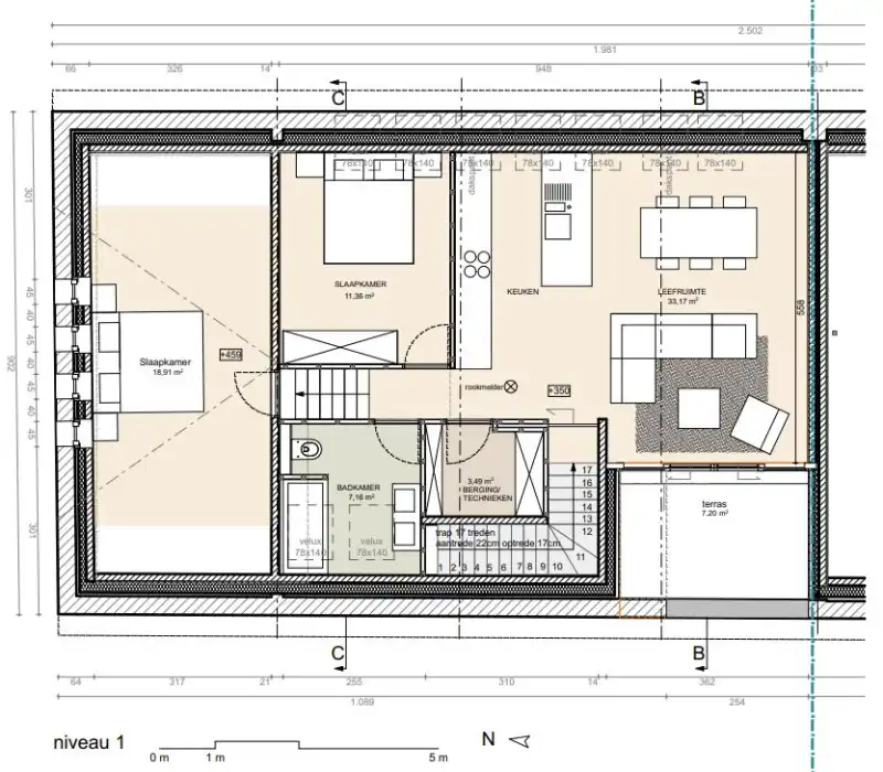
Deze zorgwoning (245m²) situeert zich in de authentieke karaktervolle schuur dat omgevormd wordt naar een hedendaagse zorgwoning. Een zorgwoning wordt hier geïnterpreteerd dat er twee woonvolumes gecreëerd worden waarvan 1 op het gelijkvloers en 1 op het eerste verdiep met deels gemeenschappelijk nut.
Het plan in bijlage heeft een beeld naar mogelijke afwerking:
GELIJKVLOERS: gemeenschappelijke hal met bezoekerstoilet, vestiaire en trap naar bovenverdieping. Deze omvat een leefkeuken, zithoek, terras en tuin, berging, 2 slaapkamers, ingerichte badkamer voorzien van ligbad, inloopdouche en dubbel lavabomeubel.
BOVENVERDIEPING: leefruimte met open ingerichte keuken met aansluitend overdekt terras, berging, twee slaapkamers en ingerichte badkamer met dubbel lavabomeubel, inloopdouche en toilet.
De vermelde prijs is CASCO afgewerkt en excl. kosten maar inclusief de volledige buitenaanleg.
U kan in meerkost deze ook door ons volledig laten afwerken! Deze woning voldoet aan de normen voor een verkoop onder 6% BTW.
Contacteer ons vandaag nog voor meer informatie over dit uniek project op het nummer 0478/72 13 00 of email info@vastgoedbrowaeys.be
Deze zorgwoning (245m²) situeert zich in de authentieke karaktervolle schuur dat omgevormd wordt naar een hedendaagse zorgwoning. Een zorgwoning wordt hier geïnterpreteerd dat er twee woonvolumes gecreëerd worden waarvan 1 op het gelijkvloers en 1 op het eerste verdiep met deels gemeenschappelijk nut.
Het plan in bijlage heeft een beeld naar mogelijke afwerking:
GELIJKVLOERS: gemeenschappelijke hal met bezoekerstoilet, vestiaire en trap naar bovenverdieping. Deze omvat een leefkeuken, zithoek, terras en tuin, berging, 2 slaapkamers, ingerichte badkamer voorzien van ligbad, inloopdouche en dubbel lavabomeubel.
BOVENVERDIEPING: leefruimte met open ingerichte keuken met aansluitend overdekt terras, berging, twee slaapkamers en ingerichte badkamer met dubbel lavabomeubel, inloopdouche en toilet.
De vermelde prijs is CASCO afgewerkt en excl. kosten maar inclusief de volledige buitenaanleg.
U kan in meerkost deze ook door ons volledig laten afwerken! Deze woning voldoet aan de normen voor een verkoop onder 6% BTW.
Contacteer ons vandaag nog voor meer informatie over dit uniek project op het nummer 0478/72 13 00 of email info@vastgoedbrowaeys.be
Energie
![]() |
- Energieverbruik: 150 kWh/m²/jaar
- E-peil: E60
- Beglazing: Onbekend
Op de kaart

Financieel
| Prijs |
|---|
Bijkomende info
Gebouw
| Bouwjaar | 2021 |
|---|---|
| Is beschermd | Nee |
| Bouwcertificaat | Nee |
| Bewoonbaar (m²) | 245 |
| Verdieping | 0 |
| Gevelbreedte | 8.5 |
| Badkamers | 2 |
| Slaapkamers | 4 |
| Verdiepingen | 0 |
| Garages | 0 |
| Parkeerplaatsen | 0 |
| Toiletten | 0 |
Faciliteiten
| Septische tank | Nee |
|---|
Perceel
| Overstromingsgevoelig | Geen |
|---|---|
| Totale oppervlakte (m²) | 245 |
| Bebouwde oppervlakte (m²) | 123 |
| Oppervlakte terras (m²) | 0 |
| Oriëntatie tuin | Oost |
Vergunning
| Verkavelingsvergunning | Geen beschikbaar |
|---|
Uitrusting
| Investeringspand | Nee |
|---|---|
| Parking | Nee |
| Garage | Nee |
| Opslagruimte | Ja |
| Terras | Ja |
| Lift | Nee |
| Rioolaansluiting | Nee |
| Gasaansluiting | Nee |
| Wateraansluiting | Ja |
| Elektriciteitsaansluiting | Ja |
| Internetaansluiting | Nee |
| Telefoonaansluiting | Nee |
| Zonnepanelen | Nee |
| Zonneboiler | Nee |
| Alarm | Nee |
| Videofoon | Nee |
| Grondwaterput | Nee |
Een pand van
Vastgoed Browaeys
Bemiddelen in vastgoed komt bij ons vanuit het hart!
Vastgoed Browaeys is gespecialiseerd in de verkoop en verhuur van residentieel vastgoed en u kunt bij ons ook terecht voor projectontwikkeling. Denk maar aan verkavelingen, meergezinswoningen en de vernieuwde woonvorm: woonerven met aandacht voor wonen in het groen.
Onze portefeuille is erg gevarieerd: van gezellige rijhuizen, charmante herenwoningen, knusse appartementen, te renoveren of op te frissen parels, bouw- en projectgronden tot luxueuze villa’s.
Of het nu gaat over investeerders op zoek naar veilige opportuniteiten, gezinnen op zoek naar meer ruimte en groen, of mensen die zich aanpassen aan een nieuwe gezinssituatie: iedereen heeft een ander verhaal en dáár houden wij van.
Wij geloven in een feilloze service, zo veel mogelijk persoonlijk contact, handelen met het oog op een win-win situatie voor beide partijen, eerlijkheid en integriteit. Bemiddelen in vastgoed komt bij ons vanuit het hart.
“Doe altijd meer dan je belooft” is één van de motto’s waarmee we onze klanten willen verbazen. Een eigendom verkopen of verhuren is niet enkel een goed contact, of een waterdichte verkoop- of verhuurovereenkomst, of goede bezichtigingen.
Elk dossier verdient het beste – en nog wat meer. Een puzzel geeft je ook maar voldoening wanneer je alle stukjes perfect hebt kunnen leggen, toch?
Gedurende de realisatie van onze verkoop- of verhuuropdracht, deelden we op korte tijd in emoties en bouwden we een relatie op. Die relatie willen we te allen koste onderhouden. De bankier die al jaren voor jouw familie werkt, of de kassierster die jou aanspreekt bij je voornaam. Dat is de persoon die wij willen zijn voor jou!
WO5EC
Leer meer over vastgoed
23 March 2026
Op Spotto zoeken als een pro: 10 slimme tips
21 March 2026
Hoeveel kan ik lenen om een huis te kopen?
01 March 2026
Wanneer heb ik een bouwvergunning of omgevingsvergunning nodig?
17 February 2026
