bouwgrond 2544 m2 Zwalm
Een pand van Immo D'hondt
Favoriet
Jouw zoektocht
Jouw scoretabel voor dit pand
Aan het laden...
Jouw geplande bezichtigingen
Aan het laden...
Overzicht
- 2544 m² grond
Beschrijving
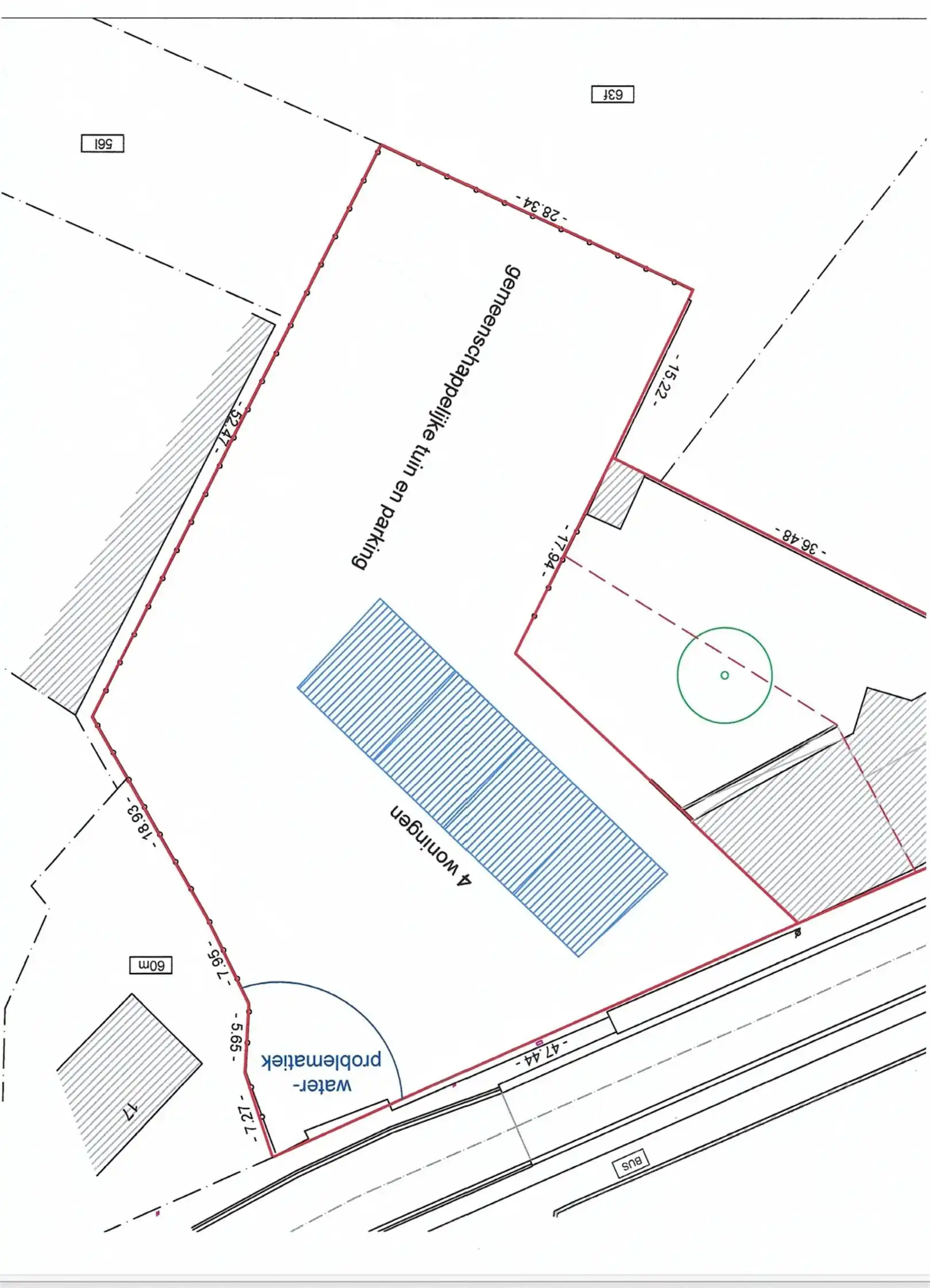
Grond gelegen in woongebied landelijk karakter.
Straatzijde 47 m.
Onder voorbehoud werd volgend advies gegeven van stedenbouw:
- geen verkaveling gewenst
- ontwikkeling terrein ifv grondgebonden woningen(4) met gemeenschappelijke tuin en parkeerplaatsen
- geen meergezinswoningen toegelaten
-Open zicht dien maximaal behouden te worden
Wenst u meer info neem dan contact op via jurgen@immodhondt.be of 0471 53 06 18
Energie
- E-peil: E0
- Beglazing: Onbekend
Op de kaart

Downloads
- ActaMaps Risicozones overstromingen (45030A005800G000).pdf
- ActaMaps Watertoets (45030A005600K000).pdf
- ActaMaps Watertoets (45030A005800G000).pdf
- bodemattest 56K - nieuw ABA_45030A005600K000_20230012161.pdf
- bodemattest 58G - nieuw ABA_45030A005800G000_20230012162.pdf
- Overstromingsrapport (1) 2023.pdf
- Overstromingsrapport (2).pdf
- stedenbouw perceel 56K grond Hoogstraat - Dorp.pdf
- stedenbouw perceel 58G - grond Hoogstraat.pdf
- ActaMaps - Hoogstraat 23, 9636 Nederzwalm-Hermelgem (45030A005600K000).pdf
- ActaMaps - Hoogstraat 23, 9636 Nederzwalm-Hermelgem (45030A005800G000).pdf
- ActaMaps Risicozones overstromingen (45030A005600K000).pdf
Financieel
| Prijs | |
|---|---|
| Kadastraal inkomen (niet geïndexeerd) | € 0 |
| Kadastraal inkomen (geïndexeerd) | € 0 |
Berekening kosten
Je aankoopkosten? Die heb je snel berekend via de knop hieronder.
Bijkomende info
Gebouw
| Bouwcertificaat | Nee |
|---|
Perceel
| Overstromingsgevoelig | Bepaald overstromingsgebied |
|---|---|
| P-score | C |
| Voorkeurrecht | Ja |
| Totale oppervlakte (m²) | 2544 |
Vergunning
| Vergunning | Geen beschikbaar |
|---|---|
| Verkavelingsvergunning | Geen beschikbaar |
Uitrusting
| Investeringspand | Nee |
|---|---|
| Rioolaansluiting | Nee |
| Gasaansluiting | Nee |
| Wateraansluiting | Nee |
| Elektriciteitsaansluiting | Nee |
| TV aansluiting | Nee |
| Internetaansluiting | Nee |
| Telefoonaansluiting | Nee |
Een pand van
Immo D'hondt
Immo D'hondt
Jong, dynamisch team in regio Vlaamse Ardennen
HOOGSTRAAT 23 NEDERZWALM-HERMELGEM
Leer meer over vastgoed
24 April 2026
Duurzaam gelegen woning? Check je Mobiscore
23 March 2026
Op Spotto zoeken als een pro: 10 slimme tips
21 March 2026
Hoeveel kan ik lenen om een huis te kopen?
01 March 2026