Mooi gelegen bouwgrond
€ 185.000
Een pand van Immo D'hondt
Favoriet
Jouw zoektocht
Jouw scoretabel voor dit pand
Aan het laden...
Jouw geplande bezichtigingen
Aan het laden...
Overzicht
- 1069 m² grond
Beschrijving
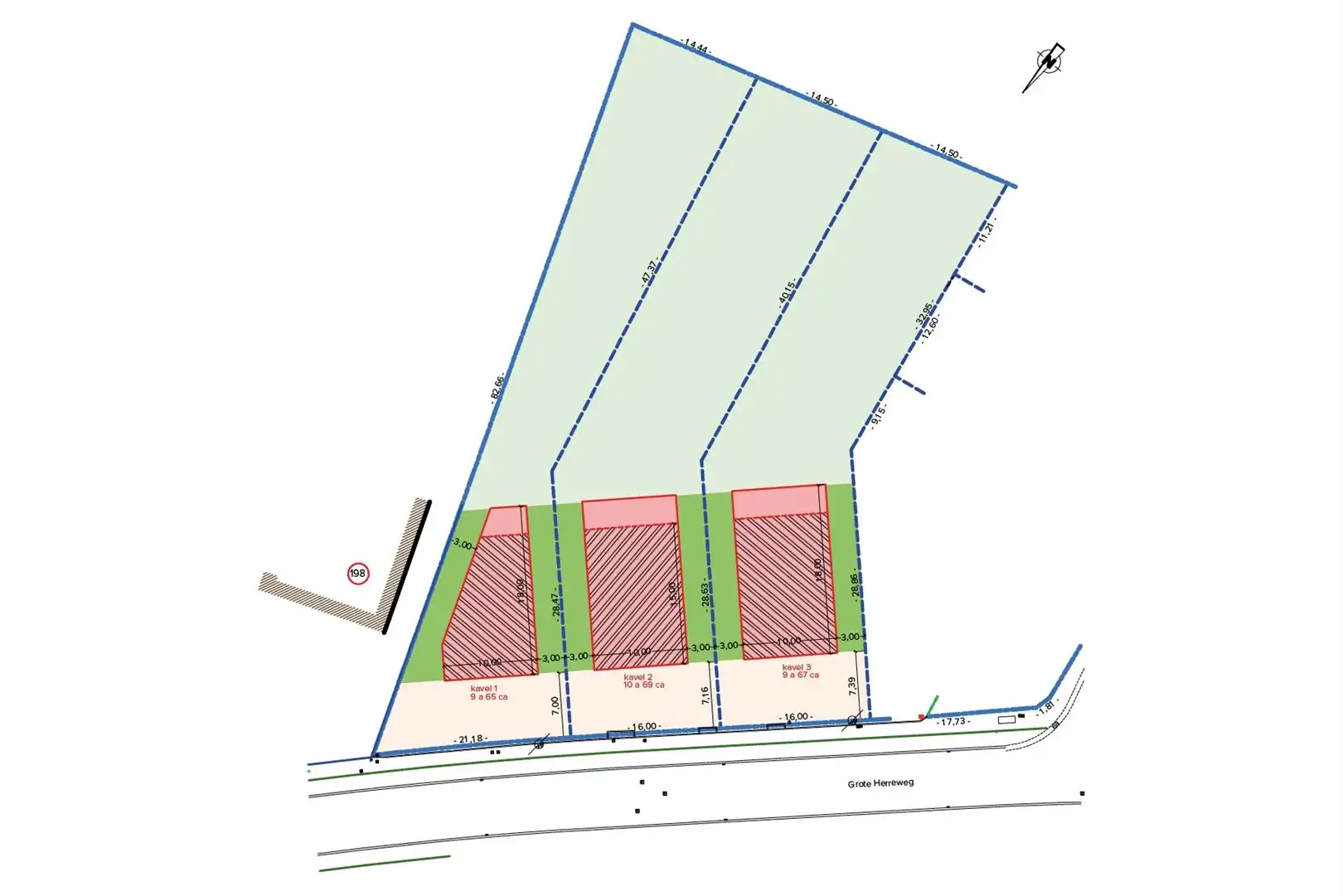
KAVEL 2 :
Deze bouwgrond is gelegen tussen de Schelde en het Kluisbos en omgeven door het prachtig landelijk gebied van de Vlaamse Ardennen.
Je kan er heerlijk ontspannen langs tal van wandelpaden en fietsroutes. Bovendien woon je er op wandelafstand van winkels, scholen en openbaar vervoer.
Dit perceel is bestemd voor open bebouwing met een volwaardige eerste verdieping.
P en G-score =A
Ontdek deze bouwgrond in Ruien, een dorp met heel wat troeven.
Meer info ?
Neem contact op met jurgen@immodhondt.be
Energie
- E-peil: E0
- Beglazing: Onbekend
Op de kaart

Downloads
Financieel
| Prijs | |
|---|---|
| Kadastraal inkomen (niet geïndexeerd) | € 0 |
| Kadastraal inkomen (geïndexeerd) | € 0 |
Berekening kosten
Je aankoopkosten? Die heb je snel berekend via de knop hieronder.
Bijkomende info
Gebouw
| Bouwcertificaat | Nee |
|---|
Perceel
| Overstromingsgevoelig | Geen |
|---|---|
| P-score | A |
| Voorkeurrecht | Ja |
| Totale oppervlakte (m²) | 1069 |
Vergunning
| Vergunning | Vergunning beschikbaar |
|---|---|
| Verkavelingsvergunning | Vergunning beschikbaar |
Uitrusting
| Investeringspand | Nee |
|---|---|
| Rioolaansluiting | Nee |
| Gasaansluiting | Nee |
| Wateraansluiting | Nee |
| Elektriciteitsaansluiting | Nee |
| TV aansluiting | Nee |
| Internetaansluiting | Nee |
| Telefoonaansluiting | Nee |
Een pand van
Immo D'hondt
Immo D'hondt
Jong, dynamisch team in regio Vlaamse Ardennen
GROTE HERREWEG KLUISBERGEN
Leer meer over vastgoed
23 March 2026
Op Spotto zoeken als een pro: 10 slimme tips
21 March 2026
Hoeveel kan ik lenen om een huis te kopen?
01 March 2026
Wanneer heb ik een bouwvergunning of omgevingsvergunning nodig?
17 February 2026