Nieuwbouwwoning te Eine.
€ 387.000
Een pand van VDS Vastgoed
Overzicht
- 131.73 m² bewoonbaar
- 466 m² grond
- 3 Slaapkamer(s)
- 1 Badkamer(s)
- 2 Toilet(ten)
- 1 Tuin
Beschrijving
Deze moderne nieuwbouwwoning combineert comfort, kwaliteit en een doordachte indeling.
Op het gelijkvloers verwelkomt een ruime inkomhal met gastentoilet je in de woning. De lichte leefruimte met halfopen keuken vormt het hart van het huis, met uitzicht op de tuin. Aansluitend aan de keuken bevindt zich een praktische berging/wasplaats.
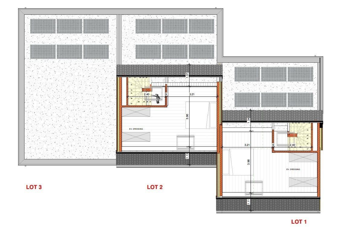
Op de eerste verdieping vind je 3 aangename slaapkamers, een afzonderlijk toilet en een stijlvolle badkamer. Via een vaste trap bereik je de afgewerkte zolderverdieping, ideaal als extra slaapkamer, bureau of hobbyruimte.
De koper kan, indien gewenst, nog een garage en tuinberging plaatsen in de achtertuin.
Achteraan het perceel is er eveneens ontsluiting via een gemeenteweg.
De woning is afgewerkt met kwalitatieve materialen en voorzien van vloerverwarming op aardgas, sanitaire installatie (incl. sanitaire toestellen), ventilatiesysteem type D, gekeurde elektrische installatie met zonnepanelen, regenwaterpomp (geplaatst in de regenwaterput), gepleisterd en volledig gechapt. Tevens is een binnentrap in beuk voorzien.
De verdere afwerking, waaronder sanitaire toestellen met meubilair, vloeren en faïence, binnendeuren en keuken, wordt gerealiseerd naar eigen smaak van de koper. De laminaatvloeren in de slaapkamers worden door de koper zelf voorzien.
Indien gewenst kan de woning ook 'niet afgewerkt' worden aangekocht (>> zie publicatie 'LOT 3 - NIET AFGEWERKT').
Een woning die klaarstaat om jouw thuis te worden — comfortabel, energiezuinig (E-peil 27) en met oog voor detail.
Grondaandeel: € 140.000,00 (excl. notaris, aandeel verkavelingsakte, prekadastratie, ... *)
Constructie: € 247.000,00 (excl. 21% BTW)
* Kosten voor nutsaansluitingen (€ 3744,47 excl. btw), aandeel verkavelingsakte (€ 800,00 excl. btw), prekadastratie (€ 250,00 excl. btw) en notaris te dragen door de koper.
Op het gelijkvloers verwelkomt een ruime inkomhal met gastentoilet je in de woning. De lichte leefruimte met halfopen keuken vormt het hart van het huis, met uitzicht op de tuin. Aansluitend aan de keuken bevindt zich een praktische berging/wasplaats.
Op de eerste verdieping vind je 3 aangename slaapkamers, een afzonderlijk toilet en een stijlvolle badkamer. Via een vaste trap bereik je de afgewerkte zolderverdieping, ideaal als extra slaapkamer, bureau of hobbyruimte.
De koper kan, indien gewenst, nog een garage en tuinberging plaatsen in de achtertuin.
Achteraan het perceel is er eveneens ontsluiting via een gemeenteweg.
De woning is afgewerkt met kwalitatieve materialen en voorzien van vloerverwarming op aardgas, sanitaire installatie (incl. sanitaire toestellen), ventilatiesysteem type D, gekeurde elektrische installatie met zonnepanelen, regenwaterpomp (geplaatst in de regenwaterput), gepleisterd en volledig gechapt. Tevens is een binnentrap in beuk voorzien.
De verdere afwerking, waaronder sanitaire toestellen met meubilair, vloeren en faïence, binnendeuren en keuken, wordt gerealiseerd naar eigen smaak van de koper. De laminaatvloeren in de slaapkamers worden door de koper zelf voorzien.
Indien gewenst kan de woning ook 'niet afgewerkt' worden aangekocht (>> zie publicatie 'LOT 3 - NIET AFGEWERKT').
Een woning die klaarstaat om jouw thuis te worden — comfortabel, energiezuinig (E-peil 27) en met oog voor detail.
Grondaandeel: € 140.000,00 (excl. notaris, aandeel verkavelingsakte, prekadastratie, ... *)
Constructie: € 247.000,00 (excl. 21% BTW)
* Kosten voor nutsaansluitingen (€ 3744,47 excl. btw), aandeel verkavelingsakte (€ 800,00 excl. btw), prekadastratie (€ 250,00 excl. btw) en notaris te dragen door de koper.
Energie
![]() |
- E-peil: E27
- Verwarming: Gas
- Beglazing: Hoog efficient dubbel
Op de kaart

Financieel
| Prijs | |
|---|---|
| Kadastraal inkomen (niet geïndexeerd) | € 0 |
| Kadastraal inkomen (geïndexeerd) | € 0 |
Bijkomende info
Gebouw
| Bouwjaar | 2025 |
|---|---|
| Is beschermd | Nee |
| Bewoonbaar (m²) | 131.73 |
| Gevelbreedte | 6.22 |
| Badkamers | 1 |
| Slaapkamers | 3 |
| Toiletten | 2 |
Faciliteiten
| Materiaal ramenomlijstingen | PVC |
|---|---|
| Beglazing | Hoog efficient dubbel |
| Luiken | Nee |
| Primaire verwarmingsbron | Condensatieketel |
| Brandstof primaire verwarming | Gas |
| Warm water type | Geen verwarming |
Perceel
| Overstromingsgevoelig | Geen |
|---|---|
| Voorkeurrecht | Nee |
| Totale oppervlakte (m²) | 466 |
| Oriëntatie tuin | ZuidOost |
Vergunning
| Vergunning | Vergunning beschikbaar |
|---|---|
| Verkavelingsvergunning | Vergunning beschikbaar |
| Bouwovertreding dagvaardiging | Geen |
| Type gebied | Stedelijk |
Uitrusting
| Meerdere eigenaars | Nee |
|---|---|
| Geschikt als kangoeroewoning | Nee |
| Geschikt voor rolstoelgebruikers | Nee |
| Geschikt voor praktijk | Nee |
| Volledig onderkelderd | Nee |
| Parking | Nee |
| Garage | Nee |
| Thuiskantoor | Nee |
| Kelder | Nee |
| Zolder | Nee |
| Opslagruimte | Nee |
| Tuin | Ja |
| Terras | Ja |
| Lift | Nee |
| Rioolaansluiting | Ja |
| Gasaansluiting | Ja |
| Wateraansluiting | Ja |
| Elektriciteitsaansluiting | Ja |
| TV aansluiting | Nee |
| Internetaansluiting | Nee |
| Zonnepanelen | Ja |
| Zonneboiler | Nee |
| Alarm | Nee |
| Zwembad | Nee |
| Jacuzzi | Nee |
| Toonzaal | Nee |
| Ventilatie | Ja |
Een pand van
VDS Vastgoed
STERK IN VASTGOED
#WeStekenErBovenuit
TK/3462
Leer meer over vastgoed
Nieuw
24 November 2025
Uitgezocht voor jouw gemeente: Hoeveel stijgt de waarde van je woning door een renovatie?
22 October 2025
Hoeveel kan ik lenen om een huis te kopen?
11 June 2025
Huis kopen met bouwovertreding? Dit moet je weten
11 May 2025
