€ 388.800
Een pand van CEUSTERS
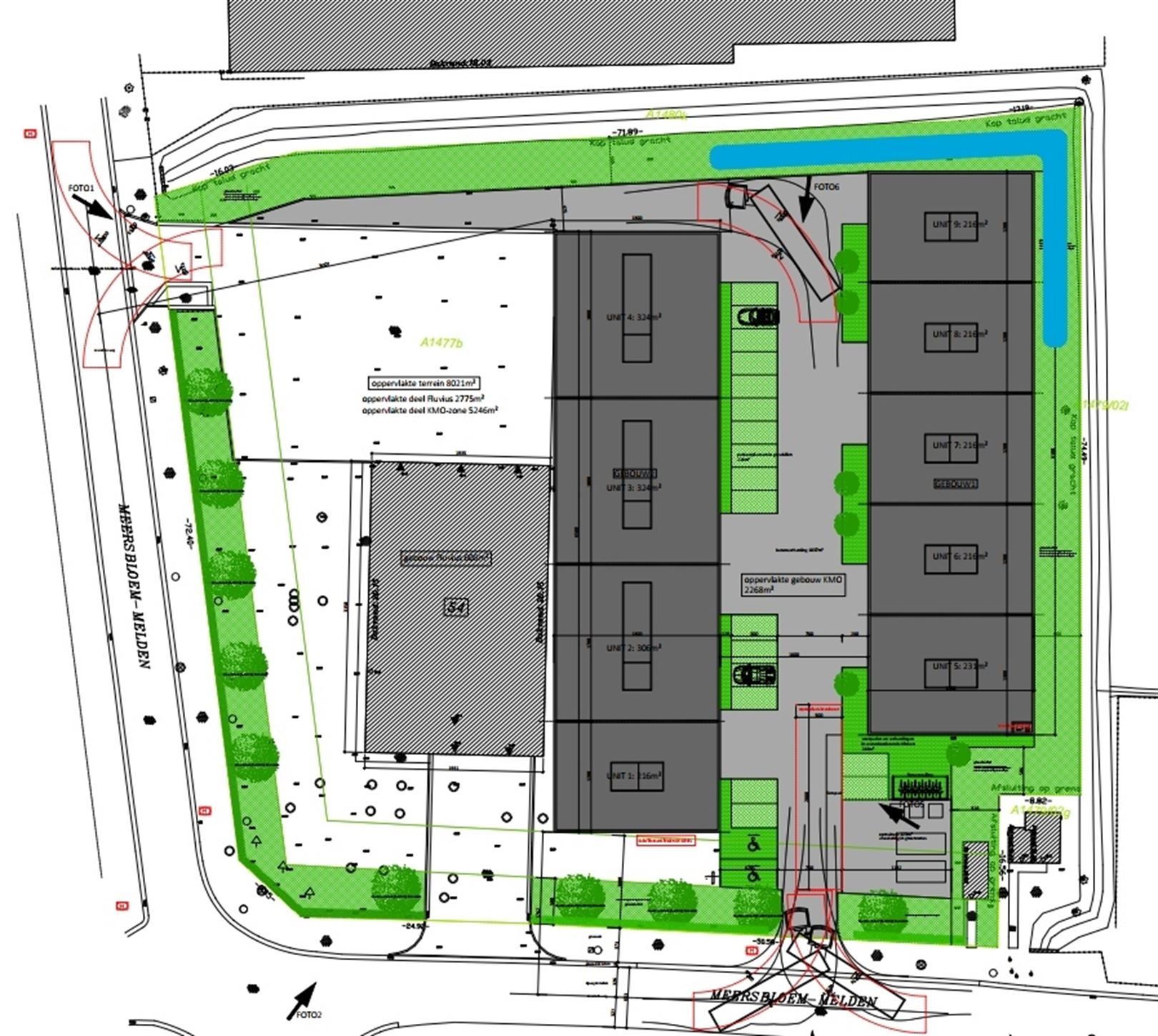
Overzicht
- 216 m² bewoonbaar
Overstromingsgevaar perceel
Beschrijving
Kwalitatieve KMO-ontwikkeling met een focus op het gebied van veiligheid, comfort en duurzaamheid.
Alle units zijn uitgerust met een elektrische sectionale poort, een lichtstraat, een eigen raamgedeelte en toegangsdeur. Nutsleidingen zijn voorzien tot aan de voorgevel van de units.
Specificaties:
- Staalstructuur met plat dak met een hoogte van 7,25 meter (vrije hoogte 6 meter);
- Buitengevel van 25 cm dik beton met 10 cm PIR isolatie;
- Binnenwanden uit betonpanelen met een brandweerstand van 1 uur (Rf60);
- Gepolierde betonvloer c25/30 van 20 cm voorzien van dubbel wapeningsnet van 150/150/8/8 met een draagkracht van 1 ton/m² en 10 cm PIR isolatie;
- Dakbedekking bestaande uit 2-laagse bitumeuze dakdichting en 12 cm PIR dakisolatie;
- Buitenschrijnwerk van AluK in thermisch onderbroken aluminium profielen, structuurlak
- RAL 9005 zwart met 1.0 dubbele beglazing;
- Sectionaal poort van 4 meter breed en 4,7 meter hoog;
- Septische put van 1.500 liter en een regenwaterput van 10.000 liter per KMO-unit;
- Buitenverharding uit beton van 20 cm dik met dubbel wapeningsnet 150/150/8/8 met een draagkracht van 1 ton/m²;
- 3-fasige aansluiting met een vermogen van 40kVA (27,7 kVA);
- Mogelijkheid om op eigen initiatief burelen in te richten op het gelijkvloers en op een mezzanine;
- Voorgevel met alu bardageplaat
Elke unit beschikt over twee privatieve parkeerplaatsen, aangelegd met grasdallen. Aan de zuidkant van het project bevinden zich twee extra gemeenschappelijke parkeerplaatsen. Binnen het project is een gemeenschappelijke fietsenstalling geïntegreerd.
Hier kunnen zowel werknemers als bezoekers hun fiets veilig stallen, waardoor een gezonde en milieuvriendelijke transportoptie wordt aangemoedigd.
De inrichting van het project voorziet in twee gemeenschappelijke afvalcontainers, tot behoud van een propere werkomgeving. De groenbuffers die het project insluiten, waarborgen een rustige en inspirerende werkomgeving, die essentieel is voor de productiviteit en het welzijn.
Tot slot is er de mogelijkheid om de daken uit te rusten met zonnepanelen, die van voldoende draagkracht voorzien zijn.
Oplevering voorzien voor Q1 2025.
Unit 1 vooraan, kan verhuurd worden aan 19.440 EUR/jaar (+ deelname gemeenschappelijke lasten en doorrekening onroerende voorheffing).
Prijzen incl. parkeerplaatsen, maar excl. notariskosten en btw.
Op aanvraag: plannen, bodemattest en basisakte.
Energie
- E-peil: E0
- Beglazing: Onbekend
Op de kaart

Financieel
Prijs | |
---|---|
Kadastraal inkomen (niet geïndexeerd) | € 0 |
Kadastraal inkomen (geïndexeerd) | € 0 |
Berekening kosten
Je aankoopkosten? Die heb je snel berekent via de knop hieronder.
Bijkomende info
Gebouw
Bouwcertificaat | Ja |
---|---|
Bewoonbaar (m²) | 216 |
Verdieping | 0 |
Badkamers | 0 |
Slaapkamers | 0 |
Verdiepingen | 0 |
Garages | 0 |
Parkeerplaatsen | 0 |
Doucheruimtes | 0 |
Toiletten | 0 |
Faciliteiten
Elektrisch keuringsattest | Ja |
---|
Perceel
Overstromingsgevoelig | Geen |
---|---|
P-score | D |
G-score | B |
Voorkeurrecht | Nee |
Bebouwde oppervlakte (m²) | 0 |
Tuin oppervlakte (m²) | 0 |
Oppervlakte terras (m²) | 0 |
Vergunning
Vergunning | Vergunning beschikbaar |
---|
Uitrusting
Investeringspand | Nee |
---|---|
Geschikt voor praktijk | Nee |
Parking | Nee |
Garage | Nee |
Thuiskantoor | Nee |
Kelder | Nee |
Zolder | Nee |
Tuin | Nee |
Terras | Nee |
Lift | Nee |
Rioolaansluiting | Nee |
Gasaansluiting | Nee |
Wateraansluiting | Nee |
Elektriciteitsaansluiting | Nee |
TV aansluiting | Nee |
Internetaansluiting | Nee |
Telefoonaansluiting | Nee |
Appartementsblok
Lift | Nee |
---|