Herbouw à 6% btw! 2129m² Grond met bouwvallig hoevetje.
€ 299.000
Favoriet
Jouw zoektocht
Jouw scoretabel voor dit pand
Aan het laden...
Jouw geplande bezichtigingen
Aan het laden...
Overzicht
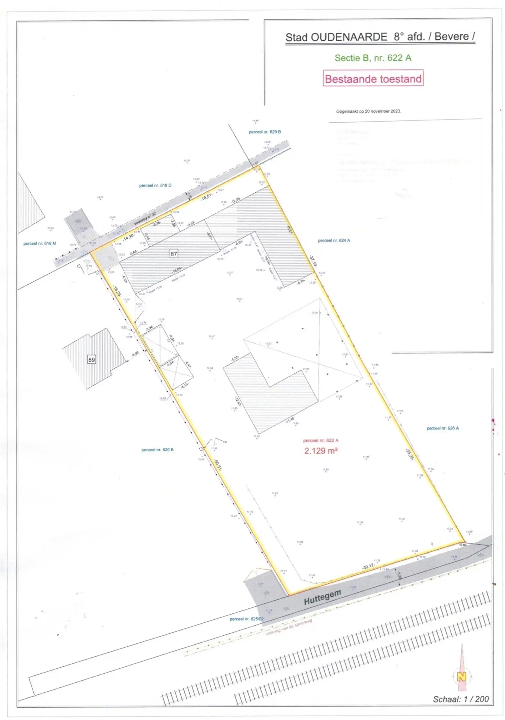
- 2129 m² grond
Overstromingsgevaar perceel
Beschrijving
Mogelijkheid (onder voorwaarden) tot herop bouwen à 6% btw: Te koop, perceel grond met een oppervlakte van 2129m², in woongebied gelegen, met bouwvallig hoevetje en bijgebouwen. Deze plek kan dienen om uw droomwoning te bouwen, of voor bouw van méér dan één woning. Gunstige ligging nabij centrum Oudenaarde, uitstekende verbindingen ook per fiets, te voet,... Scholen, winkels, treinstation, markt, alles nabij... Uitzicht op de plaatselijke Donkvijver. Contacteer ons voor een bezoek ter plaatse, het loont de moeite!
Energie
![]() |
- EPC Certificaat: 20240120-0003114023-RES-1
- Energieverbruik: 920 kWh/m²/jaar
- E-peil: E0
- Beglazing: Onbekend
Let op, de renovatieverplichting in Vlaanderen verplicht de koper om deze woning na aankoop te renoveren tot een betere energieprestatie. Lees er alles over in dit artikel
Op de kaart

Financieel
| Prijs | |
|---|---|
| Kadastraal inkomen (niet geïndexeerd) | € 622 |
| Kadastraal inkomen (geïndexeerd) | € 0 |
Berekening kosten
Je aankoopkosten? Die heb je snel berekend via de knop hieronder.
Bijkomende info
Gebouw
| Bouwcertificaat | Nee |
|---|---|
| Verdieping | 0 |
| Badkamers | 0 |
| Slaapkamers | 0 |
| Verdiepingen | 0 |
| Garages | 0 |
| Parkeerplaatsen | 0 |
| Doucheruimtes | 0 |
| Toiletten | 0 |
Faciliteiten
| Elektrisch keuringsattest | Ja |
|---|
Perceel
| Breedte (m) | 33 |
|---|---|
| Overstromingsgevoelig | Geen |
| P-score | D |
| G-score | A |
| Voorkeurrecht | Nee |
| Totale oppervlakte (m²) | 2129 |
| Bebouwde oppervlakte (m²) | 0 |
| Tuin oppervlakte (m²) | 0 |
| Oppervlakte terras (m²) | 0 |
Uitrusting
| Investeringspand | Nee |
|---|---|
| Geschikt voor praktijk | Nee |
| Parking | Nee |
| Garage | Nee |
| Thuiskantoor | Nee |
| Kelder | Nee |
| Zolder | Nee |
| Tuin | Nee |
| Terras | Nee |
| Lift | Nee |
| Rioolaansluiting | Nee |
| Gasaansluiting | Nee |
| Wateraansluiting | Nee |
| Elektriciteitsaansluiting | Nee |
| TV aansluiting | Nee |
| Internetaansluiting | Nee |
| Telefoonaansluiting | Nee |
Leer meer over vastgoed
23 March 2026
Op Spotto zoeken als een pro: 10 slimme tips
21 March 2026
Hoeveel kan ik lenen om een huis te kopen?
01 March 2026
Wanneer heb ik een bouwvergunning of omgevingsvergunning nodig?
17 February 2026
