Modern huis met 2 slaapkamers, vide en speel- of leeshoek – Nieuwbouwproject Ernest, Oudenaarde
€ 468.225
Een pand van agence rosseel
Overzicht
- 172.8 m² bewoonbaar
- 2 Slaapkamer(s)
- 1 Badkamer(s)
- 2 Toilet(ten)
- 1 Tuin
Beschrijving
Deze moderne woning maakt deel uit van het nieuwbouwproject Ernest in Oudenaarde – een eigentijdse en duurzame woonontwikkeling op een gunstige locatie.
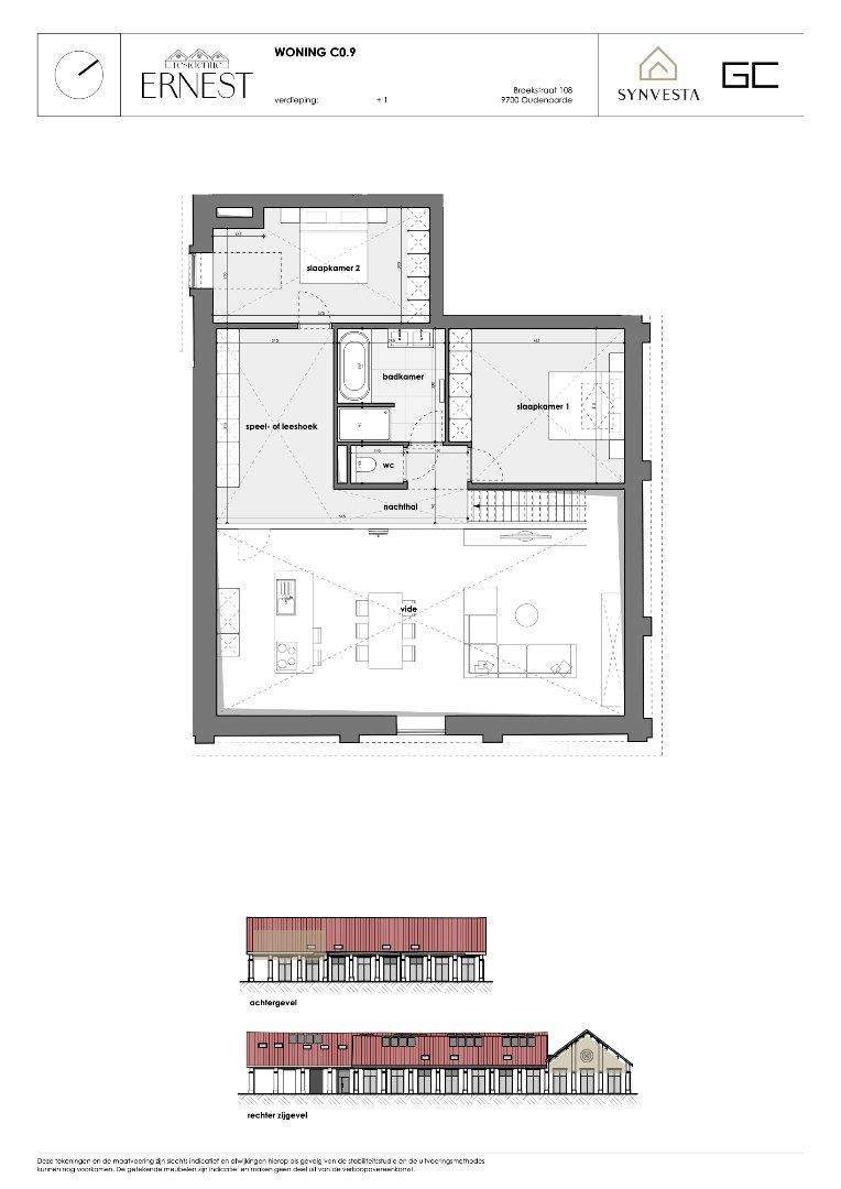
Op het gelijkvloers komt u binnen via de inkomhal met een apart toilet en ruime berging. Van daaruit stapt u binnen in de lichtrijke leefruimte met open keuken – het kloppend hart van de woning. Grote raampartijen zorgen voor een directe verbinding met het aangename terras, ideaal voor een ontspannen moment of een diner in de buitenlucht.
De eerste verdieping omvat een nachthal, een apart toilet en een moderne badkamer met ligbad, inloopdouche en dubbele wastafel. Daarnaast zijn er twee volwaardige slaapkamers, een open vide en een extra ruimte die perfect dienst kan doen als speel- of leeshoek – een veelzijdige aanvulling op het wooncomfort.
Een bijkomende troef is de aangename groenzone, die rust en privacy biedt en het buitengevoel versterkt.
Deze woning combineert hedendaagse architectuur met functioneel wooncomfort – perfect voor wie modern en flexibel wil wonen.
Alle oppervlaktes zijn BVO. EPC en KI zijn nog niet gekend.
De foto’s zijn louter illustratief.
Op het gelijkvloers komt u binnen via de inkomhal met een apart toilet en ruime berging. Van daaruit stapt u binnen in de lichtrijke leefruimte met open keuken – het kloppend hart van de woning. Grote raampartijen zorgen voor een directe verbinding met het aangename terras, ideaal voor een ontspannen moment of een diner in de buitenlucht.
De eerste verdieping omvat een nachthal, een apart toilet en een moderne badkamer met ligbad, inloopdouche en dubbele wastafel. Daarnaast zijn er twee volwaardige slaapkamers, een open vide en een extra ruimte die perfect dienst kan doen als speel- of leeshoek – een veelzijdige aanvulling op het wooncomfort.
Een bijkomende troef is de aangename groenzone, die rust en privacy biedt en het buitengevoel versterkt.
Deze woning combineert hedendaagse architectuur met functioneel wooncomfort – perfect voor wie modern en flexibel wil wonen.
Alle oppervlaktes zijn BVO. EPC en KI zijn nog niet gekend.
De foto’s zijn louter illustratief.
Energie
![]() |
- Beglazing: Hoog efficient driedubbel
Op de kaart

Financieel
| Prijs | |
|---|---|
| Kadastraal inkomen (niet geïndexeerd) | € 0 |
| Kadastraal inkomen (geïndexeerd) | € 0 |
Bijkomende info
Gebouw
| Is beschermd | Nee |
|---|---|
| Bewoonbaar (m²) | 172.8 |
| Badkamers | 1 |
| Slaapkamers | 2 |
| Toiletten | 2 |
Ruimtes
| Terras | 9.86 m² |
|---|
Faciliteiten
| Keuken | Open keuken |
|---|---|
| Materiaal ramenomlijstingen | Hout |
| Beglazing | Hoog efficient driedubbel |
| Luiken | Nee |
| Primaire verwarmingsbron | EXTRA_INFO.OUTFITTING.VALUE.HEATPUMPAIRGROUNDWATER |
Perceel
| Overstromingsgevoelig | Geen |
|---|---|
| Voorkeurrecht | Nee |
| Oppervlakte terras (m²) | 9 |
Vergunning
| Vergunning | Vergunning beschikbaar |
|---|---|
| Bouwovertreding dagvaardiging | Geen |
| Type gebied | Stedelijk |
Uitrusting
| Meerdere eigenaars | Nee |
|---|---|
| Geschikt als kangoeroewoning | Nee |
| Geschikt voor rolstoelgebruikers | Nee |
| Geschikt voor praktijk | Nee |
| Volledig onderkelderd | Nee |
| Parking | Nee |
| Garage | Nee |
| Thuiskantoor | Nee |
| Kelder | Nee |
| Zolder | Nee |
| Opslagruimte | Ja |
| Tuin | Ja |
| Terras | Ja |
| Lift | Nee |
| Rioolaansluiting | Nee |
| Gasaansluiting | Nee |
| Wateraansluiting | Nee |
| Elektriciteitsaansluiting | Nee |
| TV aansluiting | Nee |
| Internetaansluiting | Nee |
| Zonnepanelen | Ja |
| Zonneboiler | Nee |
| Alarm | Nee |
| Zwembad | Nee |
| Jacuzzi | Nee |
| Toonzaal | Nee |
| Ventilatie | Nee |
Een pand van
agence rosseel
agence rosseel | steengoed in vastgoed
Vanaf de kennismaking tot aan de ondertekening van de overeenkomst staan wij je bij. Door continue opleidingen en samenwerking met specialisten in onder andere vastgoedrecht, stedenbouw en andere specifieke vakgebieden kunnen wij jou helpen met een uitgebreide vastgoedkennis.
agence rosseel bestaat uit een team van gedreven vastgoedmakelaars, commerciële medewerkers, administratieve duizendpoten en enthousiaste marketeers die allen uitstekende diensten verlenen tijdens de verkoop/verhuur van jouw eigendom. Samen met haar klanten wil agence rosseel een langetermijnrelatie opbouwen, gebaseerd op betrouwbaarheid, eerlijkheid en professionaliteit.
NB-5994-C0.9
Leer meer over vastgoed
Nieuw
24 November 2025
Uitgezocht voor jouw gemeente: Hoeveel stijgt de waarde van je woning door een renovatie?
22 October 2025
Hoeveel kan ik lenen om een huis te kopen?
11 June 2025
Huis kopen met bouwovertreding? Dit moet je weten
11 May 2025
