Wie wenst een nieuwbouwproject?
€ 438.723
9700 OUDENAARDE
Een pand van CENTURY 21 ATG & Vast Goed
Overzicht
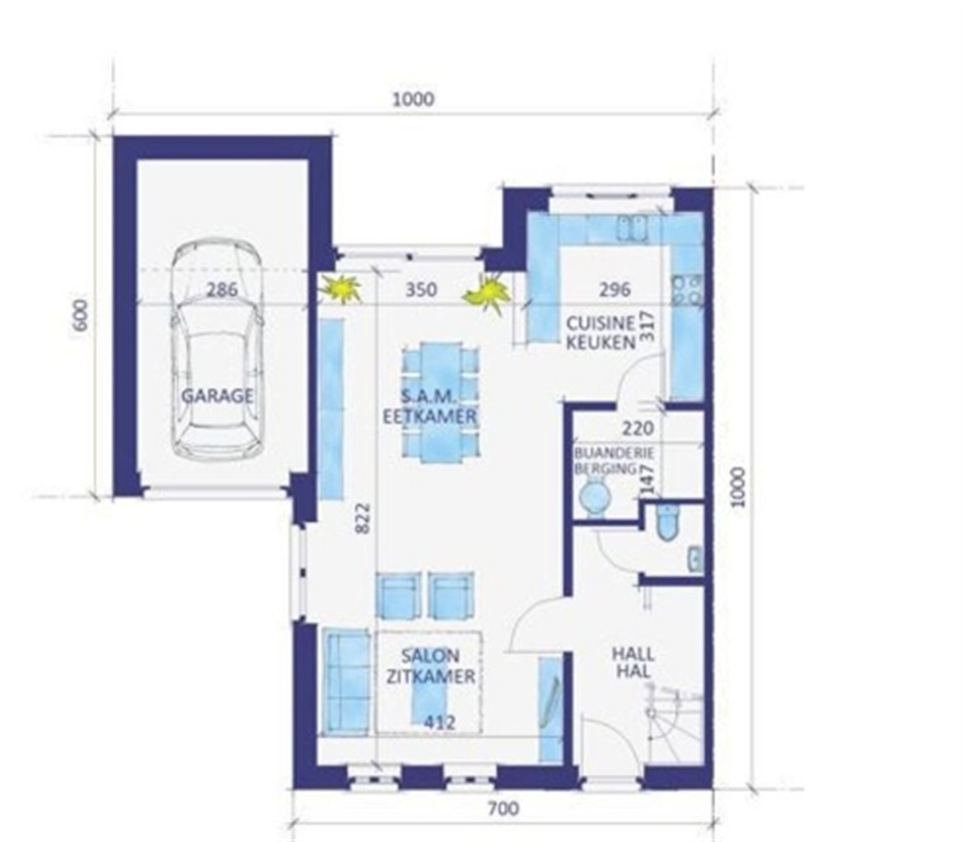
- 1043 m² bewoonbaar
- 3 Slaapkamer(s)
- 1 Badkamer(s)
- 2 Toilet(ten)
Beschrijving
Bent u op zoek naar de perfecte locatie om uw droomwoning te realiseren?
Dan biedt dit mooie perceel bouwgrond van 1043m² in het landelijke Mater een unieke kans. Ideaal voor het oprichten van een halfopen bebouwing op een groene en rustige locatie met prachtig open zicht achteraan.
Kenmerken van het perceel:
Oppervlakte: 10a43ca
Straatbreedte: 17 meter
Diepte: 55,5 meter
Rustige ligging met groene vergezichten
Uitstekende bereikbaarheid
Geniet van de rust van het platteland zonder in te boeten aan comfort. Winkels, scholen, openbaar vervoer en belangrijke invalswegen bevinden zich op een boogscheut.
Bouwvoorschriften:
Max bouwbreedte: 9m
Max. bouwdiepte: 18m (gelijkvloers), 12m (verdieping)
Max nokhoogte: 12m
Max kroonlijsthoogte: 6m
Het bouwen van een veranda is mogelijk binnen de bouwzone.
Een carport is mogelijk inpandig of wordt gezien als bijgebouw.
Zijtuinstroken moeten bouwvrij blijven
Inplanting conform verkavelingsplan
Bouwmaterialen dienen in harmonie te zijn met de omliggende bebouwing
Waarom kiezen voor dit perceel?
Rustige, groene omgeving
Goede verbindingen
Ruime bouwmogelijkheden
Harmonieuze verkaveling
Prachtig achterliggend uitzicht
Een uitgelezen kans om te bouwen in het pittoreske Ename/Mater ,waar rust, natuur en bereikbaarheid hand in hand gaan.
Heeft u interesse of vragen? Neem gerust contact op met ons kantoor voor meer informatie of een plaatsbezoek.
Energie
![]() |
- EPC Certificaat: xxxxxxx
- Energieverbruik: 2025 kWh/m²/jaar
- E-peil: E0
- Beglazing: Onbekend
Financieel
| Prijs | |
|---|---|
| Kadastraal inkomen (niet geïndexeerd) | € 7 |
| Kadastraal inkomen (geïndexeerd) | € 0 |
Berekening kosten
Je aankoopkosten? Die heb je snel berekent via de knop hieronder.
Bijkomende info
Gebouw
| Staat | Nieuw |
|---|---|
| Bouwcertificaat | Nee |
| Bewoonbaar (m²) | 1043 |
| Verdieping | 0 |
| Gevelbreedte | 7 |
| Badkamers | 1 |
| Slaapkamers | 3 |
| Verdiepingen | 0 |
| Garages | 0 |
| Parkeerplaatsen | 1 |
| Doucheruimtes | 0 |
| Toiletten | 2 |
Faciliteiten
| Elektrisch keuringsattest | Nee |
|---|
Perceel
| Overstromingsgevoelig | Geen |
|---|---|
| P-score | A |
| G-score | A |
| Voorkeurrecht | Nee |
| Bebouwde oppervlakte (m²) | 0 |
| Tuin oppervlakte (m²) | 0 |
| Oppervlakte terras (m²) | 0 |
Vergunning
| Vergunning | Aanvraag ingediend |
|---|---|
| Verkavelingsvergunning | Aanvraag ingediend |
Uitrusting
| Investeringspand | Nee |
|---|---|
| Geschikt voor praktijk | Nee |
| Parking | Ja |
| Garage | Nee |
| Thuiskantoor | Nee |
| Kelder | Nee |
| Zolder | Nee |
| Tuin | Nee |
| Terras | Nee |
| Lift | Nee |
| Rioolaansluiting | Nee |
| Gasaansluiting | Nee |
| Wateraansluiting | Nee |
| Elektriciteitsaansluiting | Nee |
| TV aansluiting | Nee |
| Internetaansluiting | Nee |
| Telefoonaansluiting | Nee |
