Nieuw
Instapklare bungalow met potentieel op prachtig perceel te koop
€ 399.000
Een pand van Casteels vastgoed
Overzicht
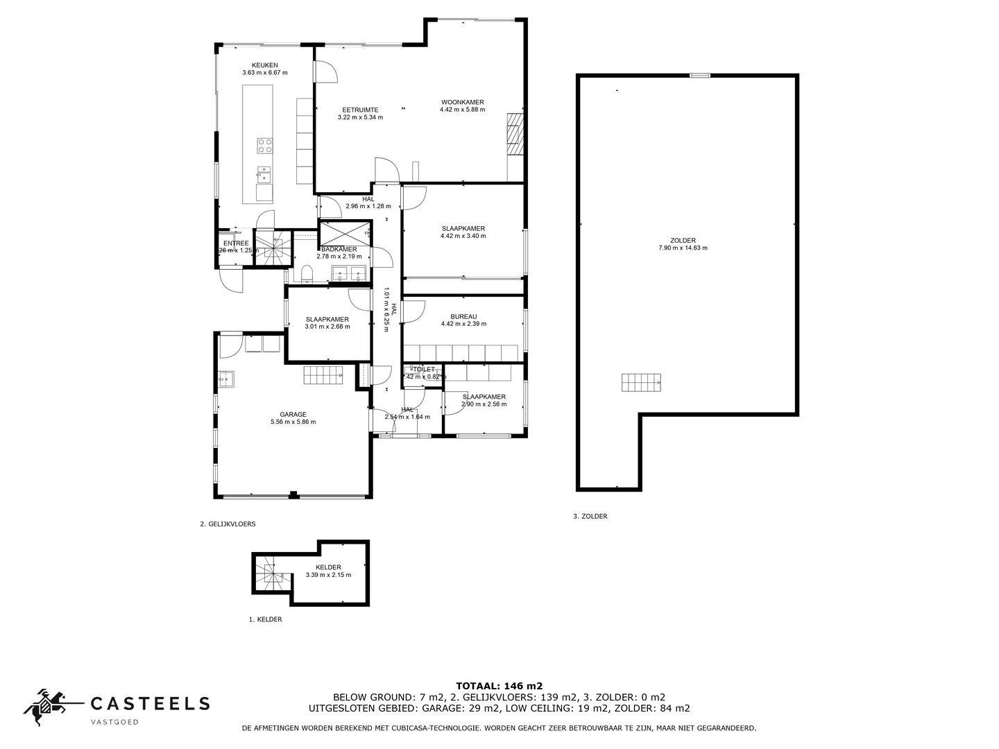
- 208 m² bewoonbaar
- 1014 m² grond
- 3 Slaapkamer(s)
- 1 Badkamer(s)
- 2 Toilet(ten)
- 1 Garage(s)
Overstromingsgevaar gebouw
Overstromingsgevaar perceel
Beschrijving
Contacteer Valerie op 0477 38 35 21 of via valerie@casteelsvastgoed.be
Dossierstukken en plannen steeds beschikbaar op onze website.
__
Deze charmante bungalow op een perceel van maar liefst 1.014 m² aan de Ronseweg 33 in Oudenaarde is beslist iets voor u! Deze gelijkvloerse woning biedt een bewoonbare oppervlakte van 168 m², met nog een mogelijkheid tot het afwerken van een ruime zolder van 84 m².
De woning heeft momenteel EPC-label F, maar met de reeds voorziene offerte voor een warmtepompinstallatie kan dit opgewaardeerd worden naar een energiezuinig EPC B-label. Bovendien is er een simulatie beschikbaar die aantoont hoe het EPC zou verbeteren na plaatsing van de warmtepomp. *Bewoonbare opp.: 168 m² + 84 m² zolder *Perceel: 1.014 m² *Offerte warmtepomp beschikbaar via onze website.
Dossierstukken en plannen steeds beschikbaar op onze website.
__
Deze charmante bungalow op een perceel van maar liefst 1.014 m² aan de Ronseweg 33 in Oudenaarde is beslist iets voor u! Deze gelijkvloerse woning biedt een bewoonbare oppervlakte van 168 m², met nog een mogelijkheid tot het afwerken van een ruime zolder van 84 m².
- Grote en lichtrijke woonkamer met zicht op de tuin
- Moderne, volledig vernieuwde keuken
- Stijlvolle en recente badkamer
- Drie volwaardige slaapkamers
- Praktische bureauruimte
- Apart toilet
- Functionele kelder
- Dubbele garage
- Ruim overdekt terras met geïntegreerde screens
- Grote, mooi aangelegde tuin met tuinhuis en serre
- Thuisbatterijen en zonnepanelen aanwezig
De woning heeft momenteel EPC-label F, maar met de reeds voorziene offerte voor een warmtepompinstallatie kan dit opgewaardeerd worden naar een energiezuinig EPC B-label. Bovendien is er een simulatie beschikbaar die aantoont hoe het EPC zou verbeteren na plaatsing van de warmtepomp. *Bewoonbare opp.: 168 m² + 84 m² zolder *Perceel: 1.014 m² *Offerte warmtepomp beschikbaar via onze website.
Op zoek naar een ruime, comfortabele woning met tal van troeven én potentieel tot energetische opwaardering?
Dan is deze charmante bungalow op een perceel van maar liefst 1.014 m² aan de Ronseweg 33 in Oudenaarde beslist iets voor u!
Deze gelijkvloerse woning biedt een bewoonbare oppervlakte van 168 m², met nog een mogelijkheid tot het afwerken van een ruime zolder van 84 m². Dankzij de bestaande indeling en de vele ruimtes is het huis perfect geschikt voor gezinnen, thuiswerkers of wie gewoon ruim en comfortabel wil wonen.
Indeling:
De woning heeft momenteel een EPC-label F, maar met de reeds voorziene offerte voor een warmtepompinstallatie (raadpleegbaar via de documenten op onze website) kan dit opgewaardeerd worden naar een energiezuinig EPC B-label. Dit biedt niet alleen comfort en lagere energiekosten, maar ook een duidelijke meerwaarde voor de toekomst. Bovendien is er een simulatie beschikbaar die aantoont hoe het EPC zou verbeteren na plaatsing van de warmtepomp – een waardevol document dat u helpt om het potentieel van deze woning correct in te schatten.
Premie actief van 300€ per 1000 kWh tot 2031. Ongeveer 10.000 kWh per jaar opbrengst ~ 3000 € / jaar
📐 Bewoonbare opp.: 168 m² + 84 m² zolder
🌿 Perceel: 1.014 m²
🔧 Offerte warmtepomp beschikbaar via onze website
Bent u op zoek naar een woning met ruimte, licht, een prachtige tuin én energetisch potentieel? Aarzel dan niet en plan vandaag nog uw bezoek aan deze woning met tal van mogelijkheden.
Dan is deze charmante bungalow op een perceel van maar liefst 1.014 m² aan de Ronseweg 33 in Oudenaarde beslist iets voor u!
Deze gelijkvloerse woning biedt een bewoonbare oppervlakte van 168 m², met nog een mogelijkheid tot het afwerken van een ruime zolder van 84 m². Dankzij de bestaande indeling en de vele ruimtes is het huis perfect geschikt voor gezinnen, thuiswerkers of wie gewoon ruim en comfortabel wil wonen.
Indeling:
- Grote en lichtrijke woonkamer met zicht op de tuin
- Moderne, volledig vernieuwde keuken
- Stijlvolle en recente badkamer
- Drie volwaardige slaapkamers
- Praktische bureauruimte
- Apart toilet
- Functionele kelder
- Dubbele garage
- Ruim overdekt terras met geïntegreerde screens – ideaal voor zomeravonden
- Grote, mooi aangelegde tuin met tuinhuis en serre
- Extra pluspunten: Thuisbatterijen en zonnepanelen aanwezig!
De woning heeft momenteel een EPC-label F, maar met de reeds voorziene offerte voor een warmtepompinstallatie (raadpleegbaar via de documenten op onze website) kan dit opgewaardeerd worden naar een energiezuinig EPC B-label. Dit biedt niet alleen comfort en lagere energiekosten, maar ook een duidelijke meerwaarde voor de toekomst. Bovendien is er een simulatie beschikbaar die aantoont hoe het EPC zou verbeteren na plaatsing van de warmtepomp – een waardevol document dat u helpt om het potentieel van deze woning correct in te schatten.
Premie actief van 300€ per 1000 kWh tot 2031. Ongeveer 10.000 kWh per jaar opbrengst ~ 3000 € / jaar
📐 Bewoonbare opp.: 168 m² + 84 m² zolder
🌿 Perceel: 1.014 m²
🔧 Offerte warmtepomp beschikbaar via onze website
Bent u op zoek naar een woning met ruimte, licht, een prachtige tuin én energetisch potentieel? Aarzel dan niet en plan vandaag nog uw bezoek aan deze woning met tal van mogelijkheden.
Energie
![]() |
- EPC Certificaat: 20250529-0003598834-RES-1
- Energieverbruik: 506 kWh/m²/jaar
- E-peil: E0
- Verwarming: Elektriciteit
- Beglazing: Standaard dubbel
Let op, de renovatieverplichting in Vlaanderen verplicht de koper om deze woning na aankoop te renoveren tot een betere energieprestatie. Lees er alles over in dit artikel
Extra budget nodig voor je renovatie?
De overheid helpt je dit pand energetisch te renoveren! Hieronder zie je het premiebedrag dat je mogelijks van de overheid krijgt.
Het huidige EPC-label is:

Op de kaart

Financieel
Prijs | |
---|---|
Kadastraal inkomen (niet geïndexeerd) | € 1.184 |
Berekening kosten
Je aankoopkosten? Die heb je snel berekent via de knop hieronder.
Bijkomende info
Gebouw
Bouwjaar | 1979 |
---|---|
Renovatie jaar | 2015 |
Bewoonbaar (m²) | 208 |
Badkamers | 1 |
Slaapkamers | 3 |
Verdiepingen | 0 |
Garages | 1 |
Parkeerplaatsen | 0 |
Toiletten | 2 |
Faciliteiten
Beglazing | Standaard dubbel |
---|---|
Brandstof primaire verwarming | Elektriciteit |
Septische tank | Nee |
Perceel
Overstromingsgevoelig | Geen |
---|---|
P-score | D |
G-score | D |
Totale oppervlakte (m²) | 1014 |
Bebouwde oppervlakte (m²) | 0 |
Oriëntatie tuin | West |
Vergunning
Verkavelingsvergunning | Vergunning beschikbaar |
---|
Uitrusting
Investeringspand | Nee |
---|---|
Parking | Nee |
Garage | Ja |
Thuiskantoor | Ja |
Kelder | Ja |
Zolder | Ja |
Lift | Nee |
Rioolaansluiting | Ja |
Gasaansluiting | Ja |
Wateraansluiting | Ja |
Elektriciteitsaansluiting | Ja |
Internetaansluiting | Ja |
Telefoonaansluiting | Nee |
Zonnepanelen | Ja |
Zonneboiler | Nee |
Alarm | Nee |
Videofoon | Nee |
Grondwaterput | Nee |
Een pand van
Casteels vastgoed
Vastgoedmakelaardij met een verfrissende aanpak.
Authentiek, ongedwongen en met een communicatie van mens tot mens. Als moderne vastgoedmakelaar begeleiden we jou zo naar een vlotte aankoop of verkoop van je woning. Door het verkoopproces zoveel mogelijk te optimaliseren, profiteer jij als koper of verkoper van een uitstekende dienstverlening aan een scherpe prijs. Casteels vastgoed, vastgoed dat raakt.
VL25_008_Ronseweg33_9700
Leer meer over vastgoed
11 June 2025
Huis kopen met bouwovertreding? Dit moet je weten
11 May 2025
Renoveren? Vraag je Mijn VerbouwPremie aan
22 April 2025
Je allereerste renovatieproject selecteren én budgetteren: met de praktische hulp van Spotto
17 February 2025