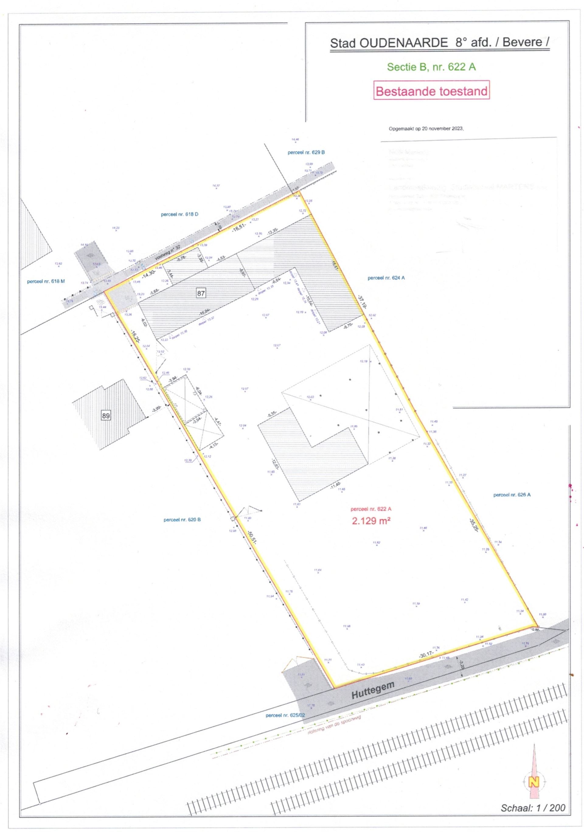
2129m² grond met bouwvallig hoevetje en bijgebouwen.
€ 299.000
Overzicht
- 2129 m² grond
Overstromingsgevaar perceel
Beschrijving
Te koop, perceel grond met een oppervlakte van 2129m², helemaal in woongebied gelegen. Kan dienen om de woning van uw dromen te bouwen, of voor de bouw van méér dan één woning. Gunstige ligging nabij centrum Oudenaarde, uitstekende verbindingen ook per fiets, te voet,... Scholen, winkels, treinstation, markt, alles nabij... Uitzicht op de plaatselijke Donkvijver. Op dit perceel staan een bouwvallig hoevetje en enkele bijgebouwen, misschien nog bruikbaar. Contacteer ons voor een bezoek ter plaatse, het loont de moeite!
Energie
![]() |
- EPC Certificaat: 20240120-0003114023-RES-1
- Energieverbruik: 920 kWh/m²/jaar
- E-peil: E0
- Beglazing: Onbekend
Op de kaart

Financieel
| Prijs | |
|---|---|
| Kadastraal inkomen (niet geïndexeerd) | € 622 |
| Kadastraal inkomen (geïndexeerd) | € 0 |
Berekening kosten
Je aankoopkosten? Die heb je snel berekent via de knop hieronder.
Bijkomende info
Gebouw
| Bouwcertificaat | Nee |
|---|
Perceel
| Breedte (m) | 33 |
|---|---|
| Overstromingsgevoelig | Geen |
| P-score | D |
| Voorkeurrecht | Nee |
| Totale oppervlakte (m²) | 2129 |
Uitrusting
| Investeringspand | Nee |
|---|---|
| Rioolaansluiting | Nee |
| Gasaansluiting | Nee |
| Wateraansluiting | Nee |
| Elektriciteitsaansluiting | Nee |
| TV aansluiting | Nee |
| Internetaansluiting | Nee |
| Telefoonaansluiting | Nee |
Leer meer over vastgoed
Nieuw
24 November 2025
Uitgezocht voor jouw gemeente: Hoeveel stijgt de waarde van je woning door een renovatie?
22 October 2025
Hoeveel kan ik lenen om een huis te kopen?
11 June 2025
Huis kopen met bouwovertreding? Dit moet je weten
11 May 2025
