Project op unieke locatie te koop in Sint-Martens-Latem
Een pand van Oranjeberg Vastgoed
Favoriet
Jouw zoektocht
Jouw scoretabel voor dit pand
Aan het laden...
Jouw geplande bezichtigingen
Aan het laden...
Beschrijving
Op zoek naar een charmevol landhuis met tal van mogelijkheden?
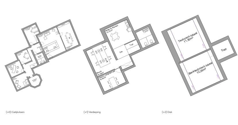
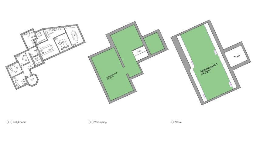
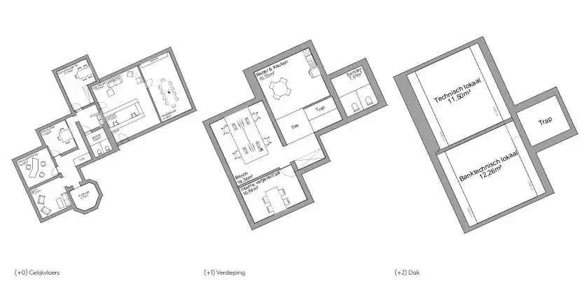
Dit unieke perceel van 1.805 m², gelegen op de Kortrijksesteenweg 69 in Sint-Martens-Latem, biedt u een scala aan opties.
Kantoorgebouw met bijbouw:
Dankzij de ruime oppervlakte is dit landhuis geschikt om te transformeren tot een modern kantoor. U heeft de mogelijkheid om het landhuis te renoveren en uit te breiden met een bijbouw volgens uw eigen wensen en noden. [Zie foto 4]
21 parkeerplaatsen voorzien
Extra troeven:
Unieke locatie
Karaktervol en charmant
Ruime parking
Goede bereikbaarheid
Oppervlaktes:
Perceel: 1.805 m²
Appartement: 85 m²
Footprint huidige situatie: 136,6 m²
Footprint nieuw volume: 80,9 m²
Totale footprint nieuwe situatie: 216 m²
Bebouwbare zone: 273,5 m²
Voor meer info of bezoek gelieve contact op te nemen via mail: info@oranjeberg.be
Dit unieke perceel van 1.805 m², gelegen op de Kortrijksesteenweg 69 in Sint-Martens-Latem, biedt u een scala aan opties.
Kantoorgebouw met bijbouw:
Dankzij de ruime oppervlakte is dit landhuis geschikt om te transformeren tot een modern kantoor. U heeft de mogelijkheid om het landhuis te renoveren en uit te breiden met een bijbouw volgens uw eigen wensen en noden. [Zie foto 4]
21 parkeerplaatsen voorzien
Extra troeven:
Unieke locatie
Karaktervol en charmant
Ruime parking
Goede bereikbaarheid
Oppervlaktes:
Perceel: 1.805 m²
Appartement: 85 m²
Footprint huidige situatie: 136,6 m²
Footprint nieuw volume: 80,9 m²
Totale footprint nieuwe situatie: 216 m²
Bebouwbare zone: 273,5 m²
Voor meer info of bezoek gelieve contact op te nemen via mail: info@oranjeberg.be
Energie
Op de kaart

Financieel
Bijkomende info
Een pand van
Oranjeberg Vastgoed
Oranjeberg - Top in Vastgoed
Uitzonderlijke ervaring gekoppeld aan grote deskundigheid en persoonlijke service: makelaarskantoor Oranjeberg is een echt huis van vertrouwen!
Leer meer over vastgoed
24 April 2026
Duurzaam gelegen woning? Check je Mobiscore
23 March 2026
Op Spotto zoeken als een pro: 10 slimme tips
21 March 2026
Hoeveel kan ik lenen om een huis te kopen?
01 March 2026